vila flora

cupertino arquitetura
status do projeto
obra finalizada
localização
são paulo, sp
tipologia
residencial
área construída
2700
escopo
AUT

EV: Estudo de viabilidade
AUT: Autoria
DES: Desenvolvimento
COM: Compatibilização
COO: Coordenação

autoria
purarquitetura
incorporação
fernando schutt e cupertino arquitetura
construção
fernando schutt
conclusão do projeto
2014
conclusão da construção
2016

A Vila Flora é um conjunto residencial de cinco casas implantadas em um terreno densamente arborizado em São Paulo. O projeto foi conduzido pela Purarquitetura, responsável pela autoria e por etapas técnicas — do estudo preliminar ao as built — em parceria com a incorporação e construção de Fernando Schutt e Cupertino Arquitetos.

Desenvolvido entre 2014 e 2016, o projeto nasce a partir da missão de preservar 78 árvores já existentes no terreno, que orientaram a implantação das casas e a configuração da rua interna, transformada em um percurso sombreado que acompanha os desníveis do antigo jardim.

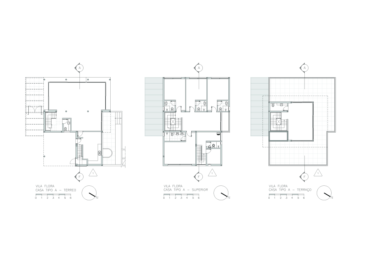
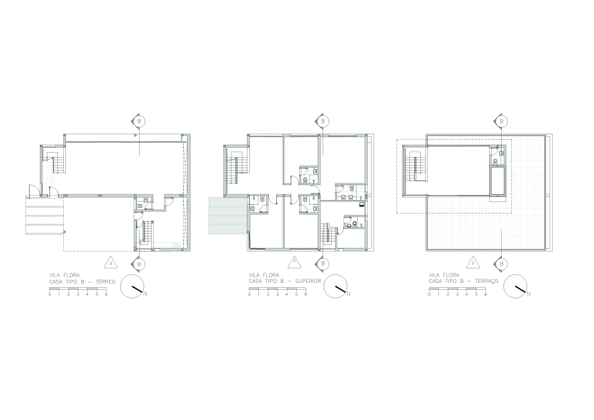
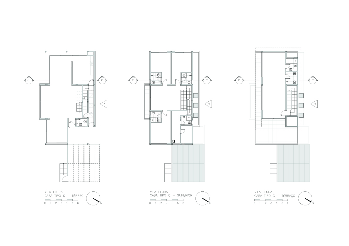
As residências foram planejadas com três configurações diferentes de planta, adequadas às condições do terreno e ao diálogo com a vegetação preservada. No térreo, as áreas sociais se integram aos jardins privativos. A escada, posicionada de forma estratégica, conecta a área íntima ao salão da cobertura, uma varanda elevada envolvida pelas copas das árvores.

Um projeto em que arquitetura e paisagem se estruturam de maneira conjunta, mantendo o caráter de parque como princípio da implantação.

especifidades

– Vila residencial com preservação de 78 árvores existentes

– Implantação das casas em forma de parque

etapas de projeto envolvidas

APEPEXPL

LD: Levantamento de dados
PN: Programa de necessidades
EV: Estudo de viabilidade
EP: Estudo preliminar
AP: Anteprojeto
PR: Pré-executivo
EX: Executivo
DT: Detalhamento
LO: Liberado para obra
PL: Projeto legal
AO: atendimento a obra
AB: As built
PB: projeto básico

ficha técnica