universidade presbiteriana mackenzie | prédio 38

universidade mackenzie
status do projeto
projeto finalizado
localização
são paulo, sp
tipologia
institucional
área construída
62617
escopo
COMCOODES

EV: Estudo de viabilidade
AUT: Autoria
DES: Desenvolvimento
COM: Compatibilização
COO: Coordenação

autoria
francisco petraco, valter caldana e sami bussab
incorporação
mackenzie
construção
-
conclusão do projeto
2014
conclusão da construção
-

especifidades

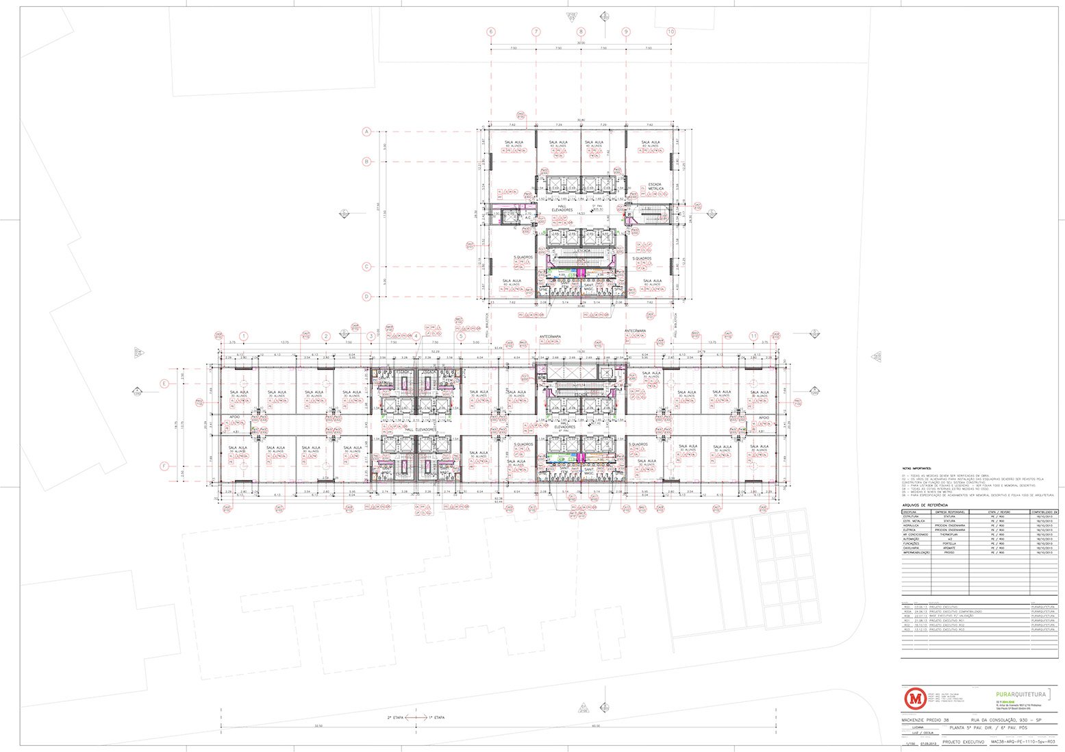
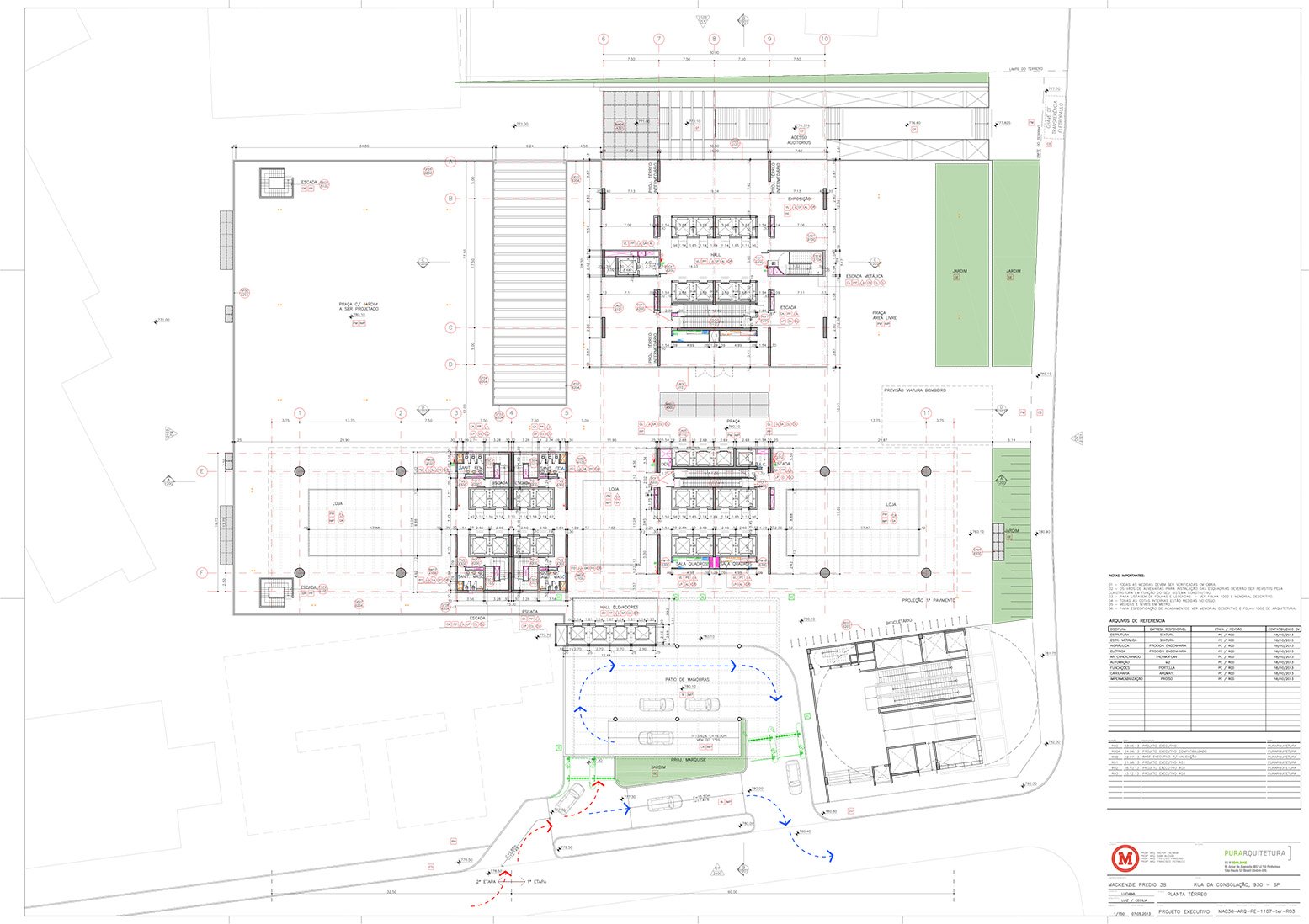
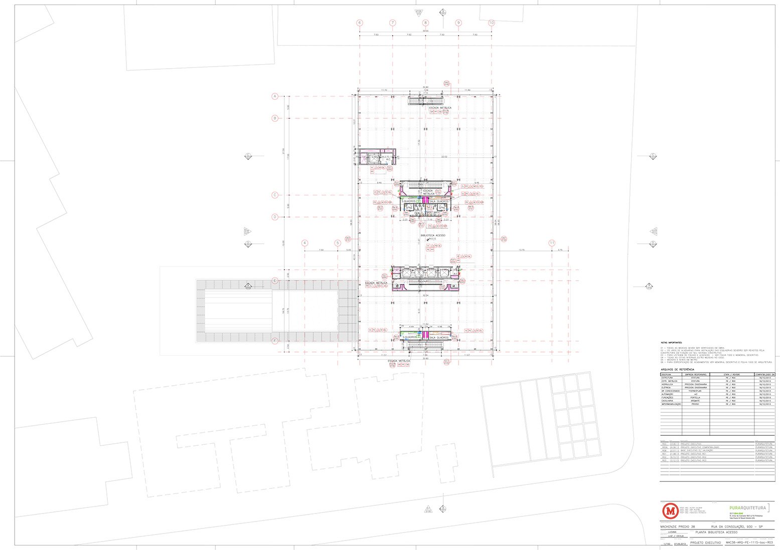
– Desafio de executar um edifício bastante vertical com uso universátio

– Composição volumétrica previa, sobre os edifícios, uma estrutura em formato de ponte com a biblioteca do mackenzie apoiada nos dois prédios

folhas de projetos analisadas

3113

etapas de projeto envolvidas

APEPEXPL

LD: Levantamento de dados
PN: Programa de necessidades
EV: Estudo de viabilidade
EP: Estudo preliminar
AP: Anteprojeto
PR: Pré-executivo
EX: Executivo
DT: Detalhamento
LO: Liberado para obra
PL: Projeto legal
AO: atendimento a obra
AB: As built
PB: projeto básico

disciplinas envolvidas

ficha técnica

ar-condicionado
thermoplan

automação predial
si2

caixilharia
arqmate

consultor geotécnico
nouh engenharia

drenagem
drenatec

elétrica / hidráulica
procion engenharia

estrutura
statura engenharia e projetos

fundações
portella alarcon engenheiros associados

impermeabilização
proiso

levantamento planiáltimétrico
promap

prefeitura / projeto legal
criativa engenharia

sondagem
spt

sustentabilidade
inovatech – aqua

transporte vertical
empro