teatro

associação sociedade cultura artística
status do projeto
projeto finalizado
localização
são paulo, sp
tipologia
institucional
área construída
7543
escopo
COMCOODES

EV: Estudo de viabilidade
AUT: Autoria
DES: Desenvolvimento
COM: Compatibilização
COO: Coordenação

autoria
paulo bruna
incorporação
a s cultura artística
construção
-
conclusão do projeto
2015
conclusão da construção
-

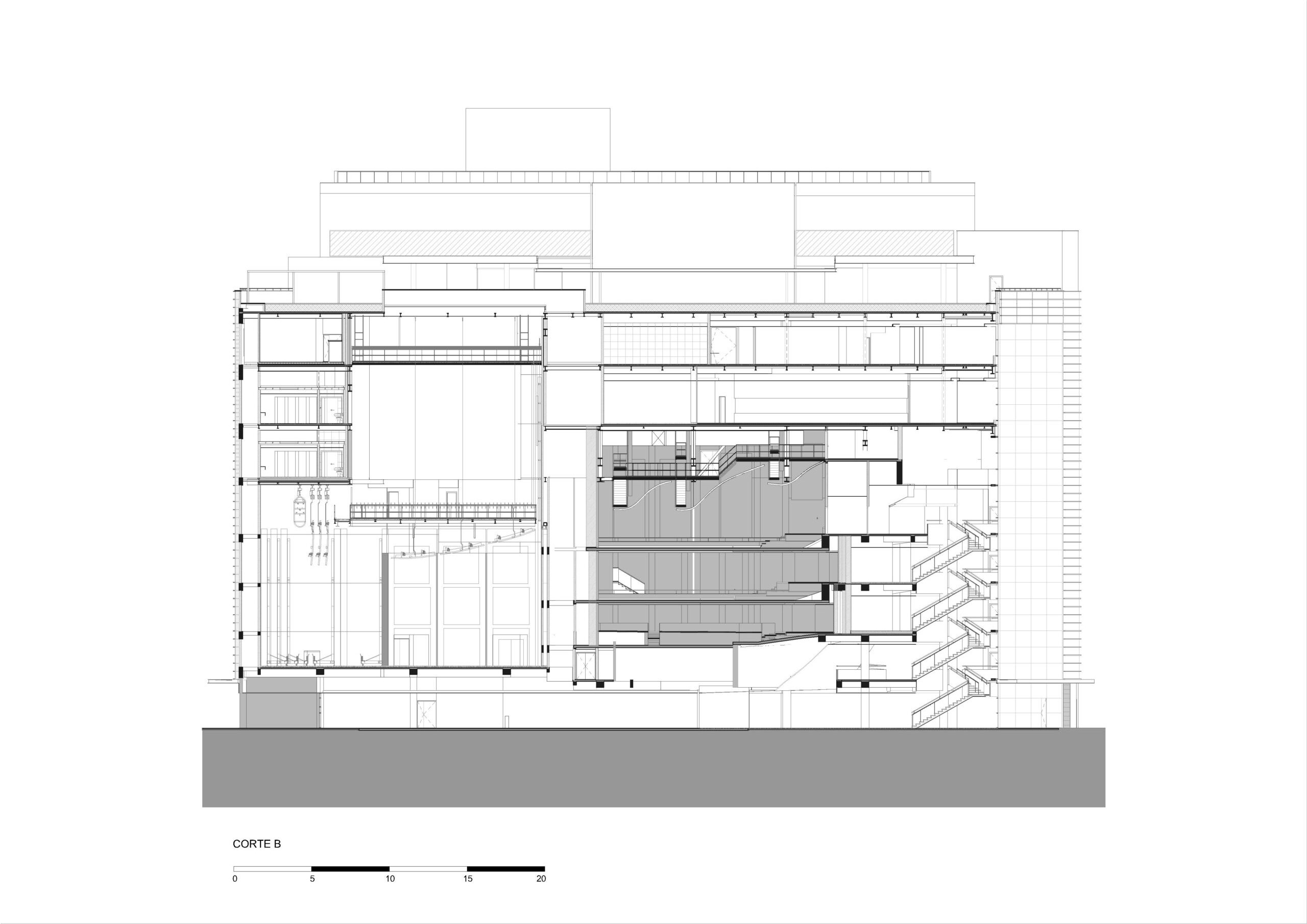
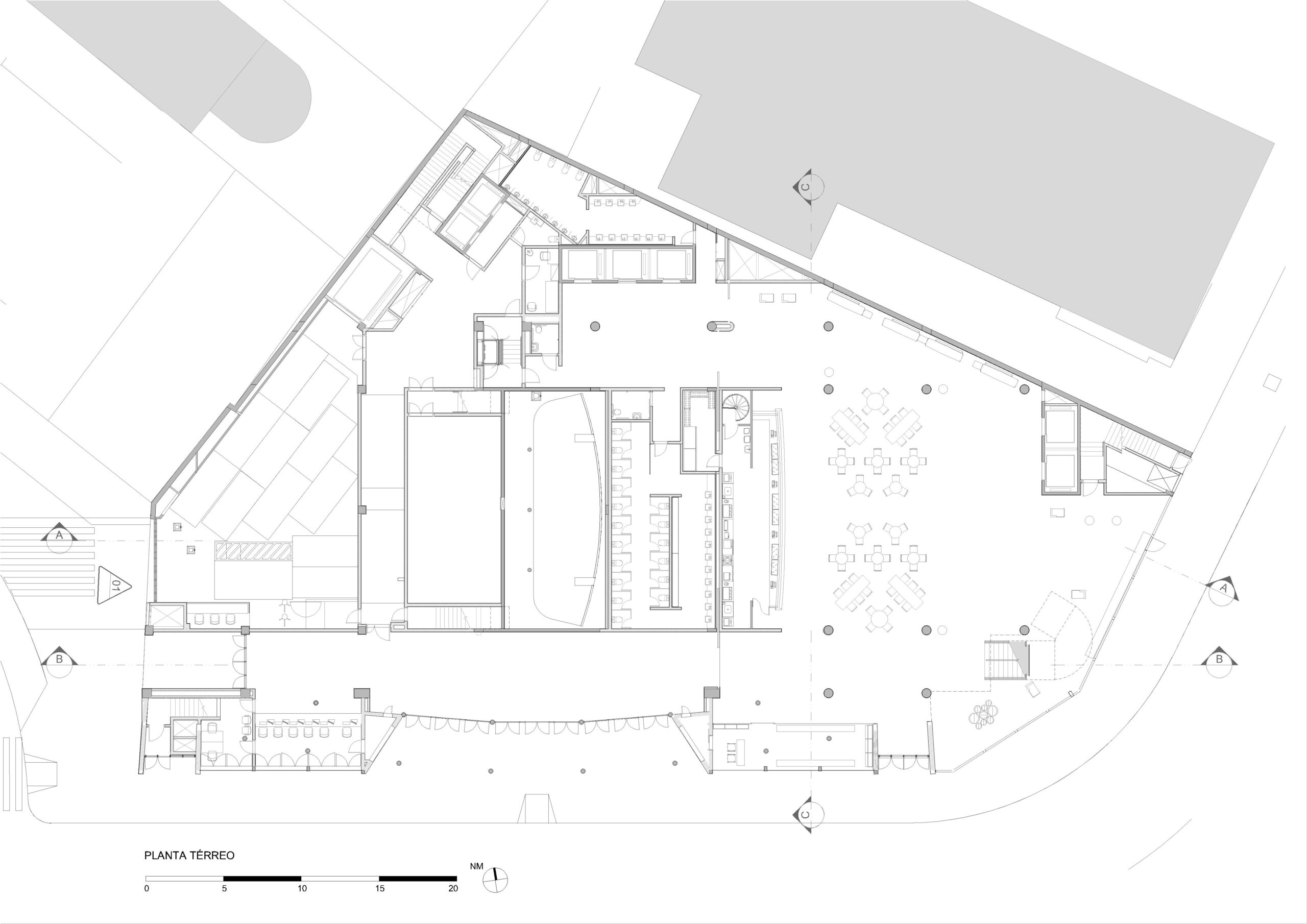
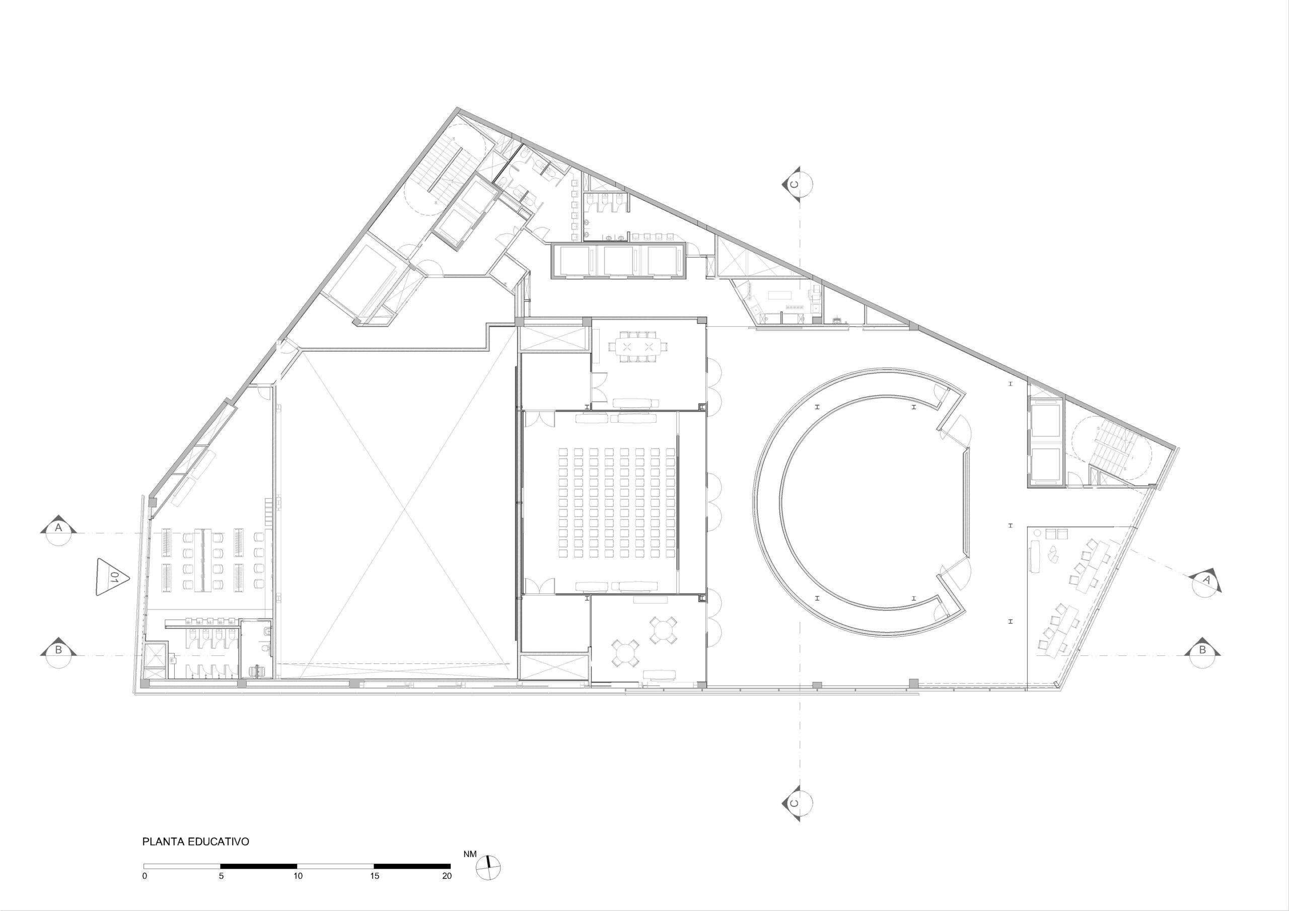
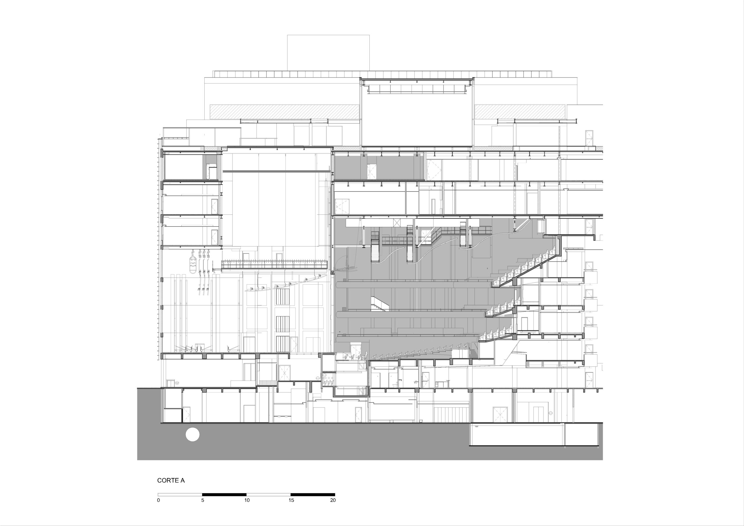
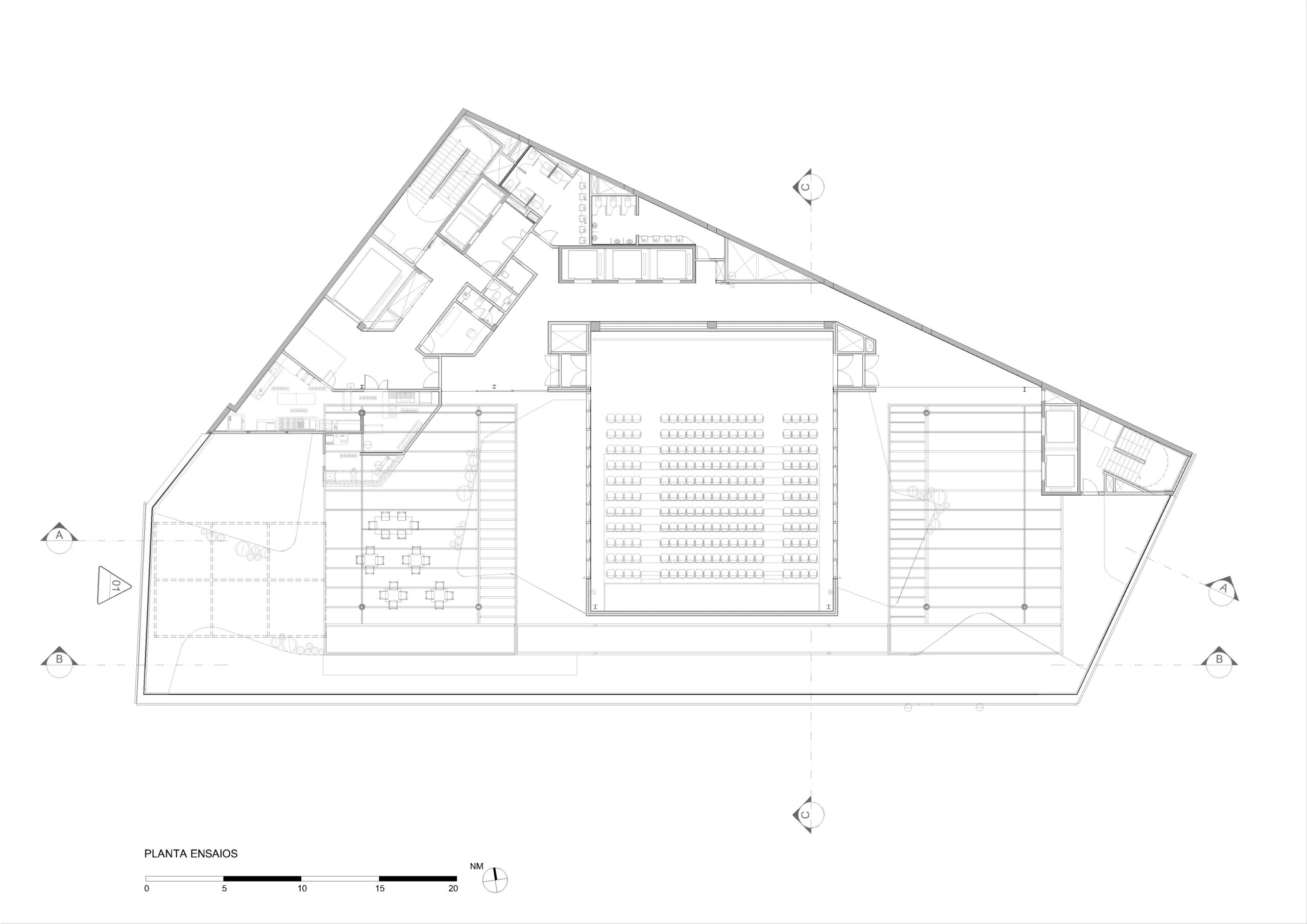
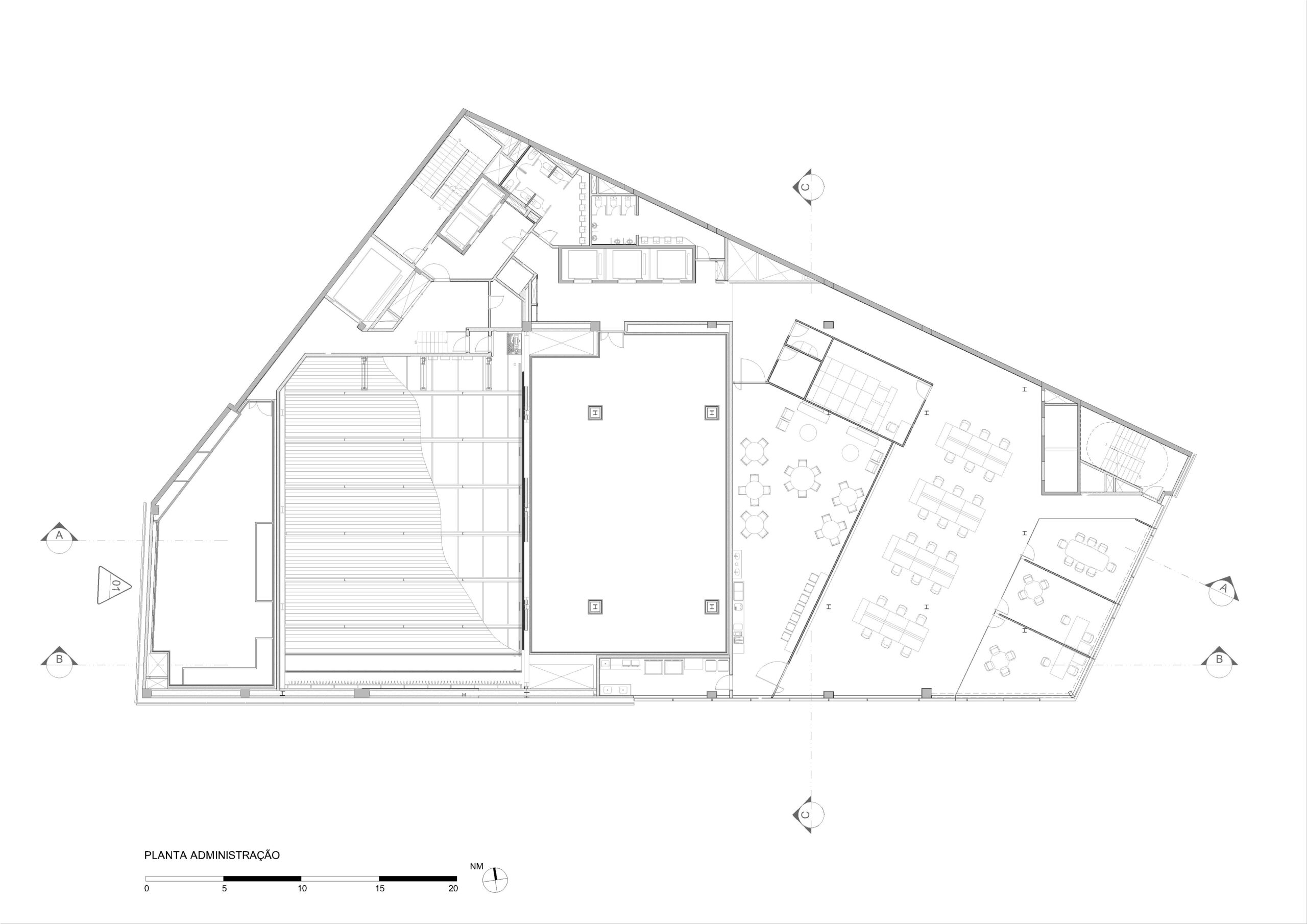
Após o incêndio que destruiu o tradicional Teatro Cultura Artística, o arquiteto Paulo Bruna desenvolveu um projeto para uma nova sala com capacidade para 1.400 pessoas, concebida para oferecer flexibilidade e atender tanto apresentações teatrais quanto musicais. Além desses usos, o programa previa espaços para recepções, uma sala adaptável para concertos, ambientes para eventos e áreas administrativas.

O extenso programa, aliado ao pequeno terreno disponível, foi viabilizado por meio de um edifício vertical com 12 pavimentos. A partir desse projeto arquitetônico, fomos responsáveis pelo desenvolvimento completo em padrão BIM, incluindo a coordenação e compatibilização de todos os projetos complementares.

Todo o trabalho foi concluído com alto nível de detalhamento e integração, porém, sua execução foi interrompida devido ao contexto de crise política e econômica, que inviabilizou a construção naquele momento.

especifidades

– Projeto em BIM

– Uso diferenciado trouxe desafios ao projeto

– Conceito arquitetônico diferenciado

– Soluções estruturais desafiadoras

– Sistema estrutural misto (concreto moldado in loco, metálica)

– Fachada como bem tombado

folhas de projetos analisadas

538

etapas de projeto envolvidas

APEVEXPL

LD: Levantamento de dados
PN: Programa de necessidades
EV: Estudo de viabilidade
EP: Estudo preliminar
AP: Anteprojeto
PR: Pré-executivo
EX: Executivo
DT: Detalhamento
LO: Liberado para obra
PL: Projeto legal
AO: atendimento a obra
AB: As built
PB: projeto básico

disciplinas envolvidas

ficha técnica

acessibilidade
pimenta associados

acústica
acustica & sonica

ar-condicionado / automação / elétrica / hidráulica / incêndio
mha engenharia

caixilharia
paulo duarte consultores

cenotecnia
tpc e grupo corpo

consultores bombeiro
focus

copiadora
da vinci

espaço multimídia
estúdio gru

estrutura
jzkjf-kurdjian fruchtengarten

fundações
mg&a

gerenciamento de obra
visão gerenciamento de obras

impermeabilização
proassp

interiores mobiliário
ovo'

luminotécnica
lit arquitetura de iluminação

paisagismo
rodrigo oliveira

sustentabilidade
otec

transporte vertical
empro