surf side

jhsf
status do projeto
projeto finalizado, obra em andamento
localização
porto feliz, sp
tipologia
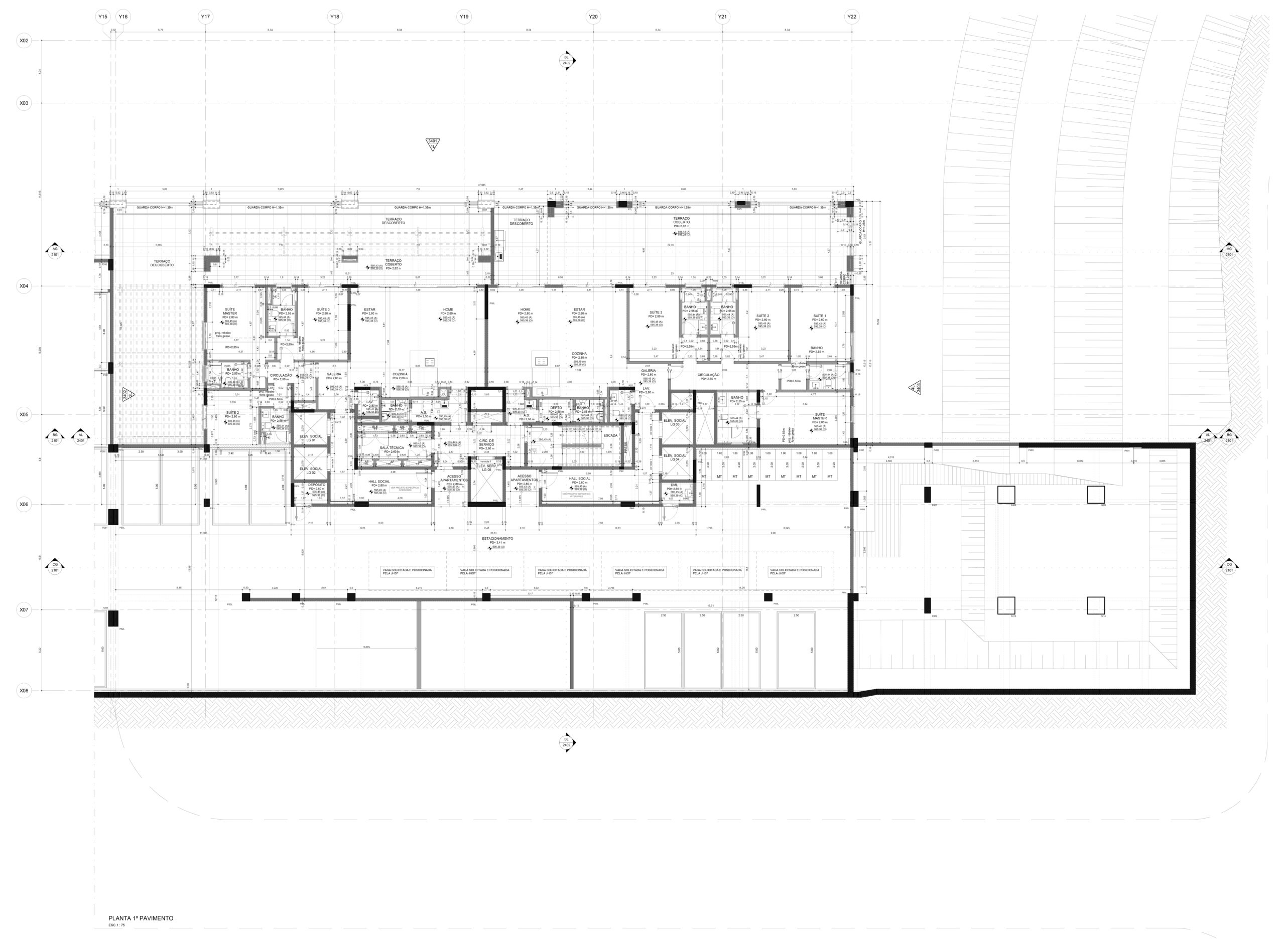
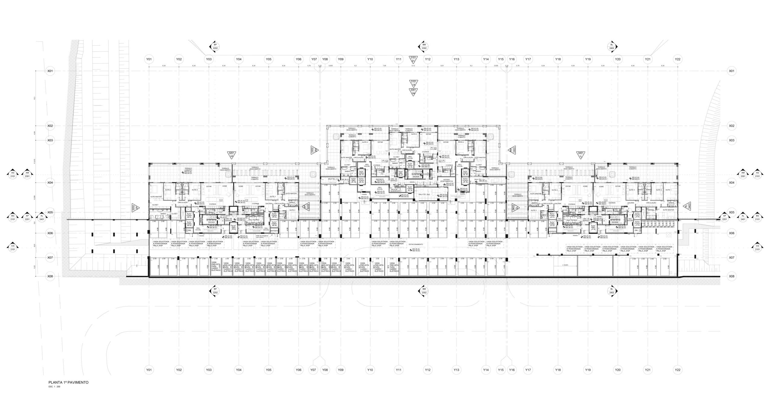
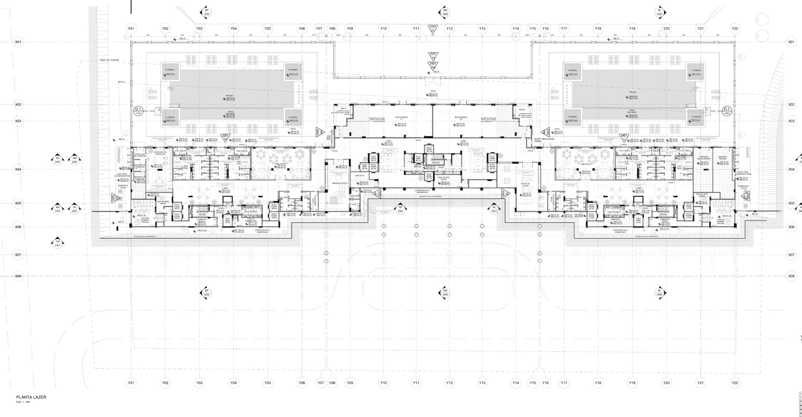
residencial
área construída
25159
escopo
COMCOODES

EV: Estudo de viabilidade
AUT: Autoria
DES: Desenvolvimento
COM: Compatibilização
COO: Coordenação

autoria
psa arquitetura
incorporação
jhsf
construção
jhsf
conclusão do projeto
2025
conclusão da construção
-

especifidades

– Padrão AAA

– Projeto em BIM

– Grande porte

folhas de projetos analisadas

5429

etapas de projeto envolvidas

APDTEXLOPR

LD: Levantamento de dados
PN: Programa de necessidades
EV: Estudo de viabilidade
EP: Estudo preliminar
AP: Anteprojeto
PR: Pré-executivo
EX: Executivo
DT: Detalhamento
LO: Liberado para obra
PL: Projeto legal
AO: atendimento a obra
AB: As built
PB: projeto básico

disciplinas envolvidas

ficha técnica

acústica
harmonia

automação / elétrica / hidráulica / segurança
pqrma2

consultores - norma de desempenho
gp&d

climatização
value

estrutura de concreto
ng engenharia

fundações
gebase

impermeabilização
gti

incêndio
engepoint

interiores
giro

luminotécnica
estudio carlos fortes

piscina
innovatori

sondagem
walter storch

terraplanagem
geasa engenharia

transporte vertical
atlas schindler

vedação
idea