spression congonhas apartments

marcos acayaba
status do projeto
obra finalizada
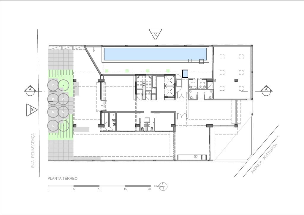
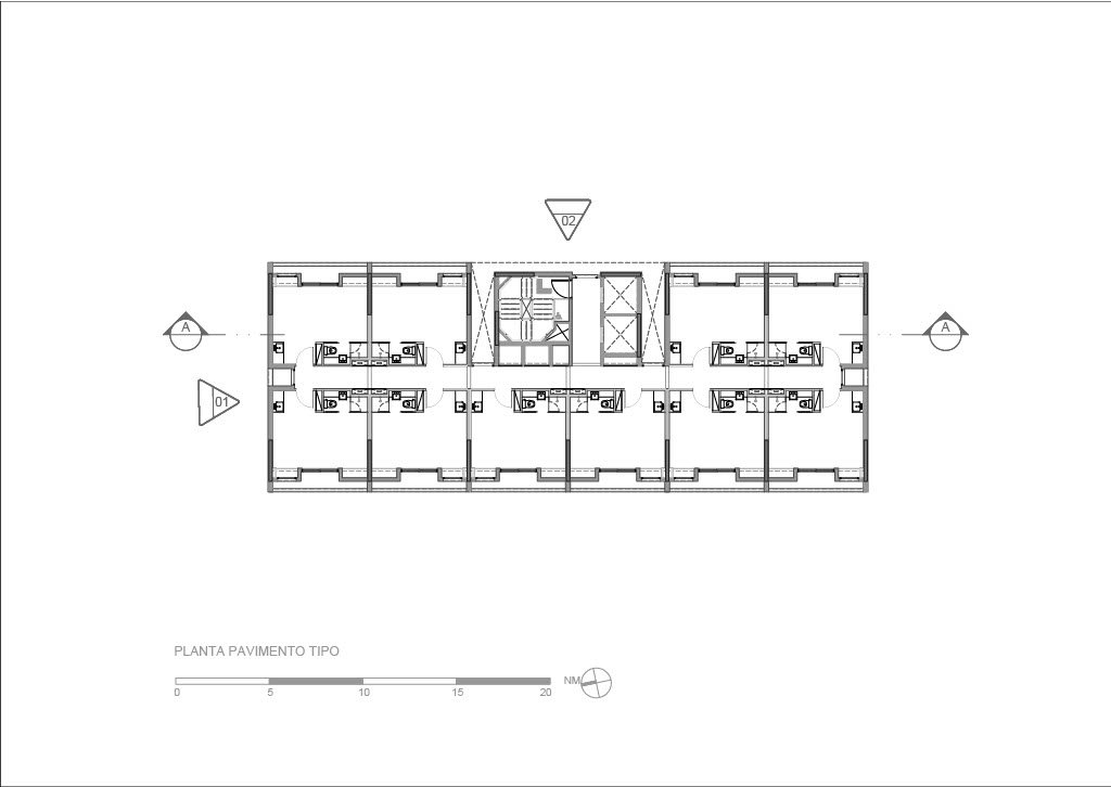
localização
são paulo, sp
tipologia
residencial
área construída
8253
escopo
DES

EV: Estudo de viabilidade
AUT: Autoria
DES: Desenvolvimento
COM: Compatibilização
COO: Coordenação

autoria
marcos acayaba
incorporação
r. yazbek e rofer
construção
r.yazbek
conclusão do projeto
2016
conclusão da construção
2023

especifidades

– Arquitetura com conceito diferenciado

folhas de projetos analisadas

1512

etapas de projeto envolvidas

APEPEXLOPL

LD: Levantamento de dados
PN: Programa de necessidades
EV: Estudo de viabilidade
EP: Estudo preliminar
AP: Anteprojeto
PR: Pré-executivo
EX: Executivo
DT: Detalhamento
LO: Liberado para obra
PL: Projeto legal
AO: atendimento a obra
AB: As built
PB: projeto básico

disciplinas envolvidas

ficha técnica