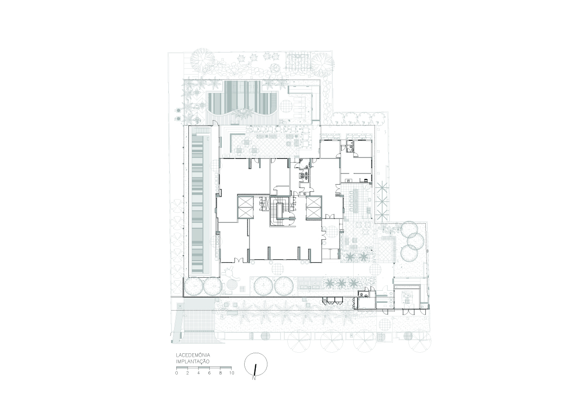
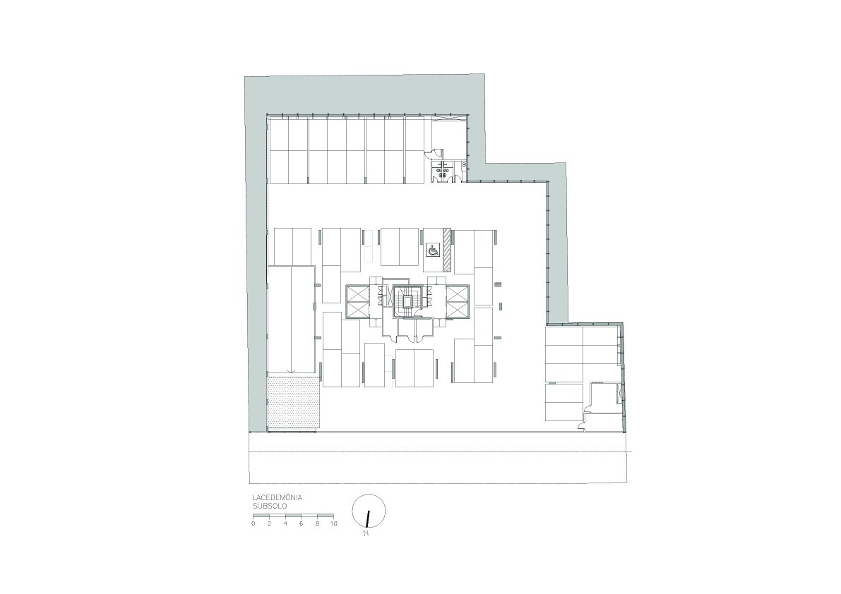
smart vila mascote

gafisa
status do projeto
obra finalizada
localização
são paulo, sp
tipologia
residencial
área construída
19188
escopo
COMCOODES

EV: Estudo de viabilidade
AUT: Autoria
DES: Desenvolvimento
COM: Compatibilização
COO: Coordenação

autoria
mcaa
incorporação
gafisa
construção
gafisa
conclusão do projeto
2012
conclusão da construção
2014

especifidades

folhas de projetos analisadas

677

etapas de projeto envolvidas

EPEXPLPR

LD: Levantamento de dados
PN: Programa de necessidades
EV: Estudo de viabilidade
EP: Estudo preliminar
AP: Anteprojeto
PR: Pré-executivo
EX: Executivo
DT: Detalhamento
LO: Liberado para obra
PL: Projeto legal
AO: atendimento a obra
AB: As built
PB: projeto básico

disciplinas envolvidas

ficha técnica

aquecimento solar
m3trocúbico projetos e consultoria hidráulica e solar

ar-condicionado
willen scheepmaker

consultor elétrica
josé luiz

consultor hidráulica
rosana petrella

elétrica / hidráulica
sphe - engenharia hidráulica e elétrica

estrutura
monteiro linardi engenharia

fundações
damasco penna

impermeabilização
proassp

interiores
camila klein

paisagismo
roberta ventura

vedação
arco