edifício site

cupertino arquitetura
status do projeto
obra finalizada
localização
são paulo, sp
tipologia
residencial
área construída
4250
escopo
AUTCOMCOODES

EV: Estudo de viabilidade
AUT: Autoria
DES: Desenvolvimento
COM: Compatibilização
COO: Coordenação

autoria
purarquitetura e jaime cupertino
incorporação
buriti
construção
buriti
conclusão do projeto
1998
conclusão da construção
2004

Contratados pelo arquiteto Jaime Cupertino para desenvolver o projeto deste edifício, cuja residência ocuparia os últimos pavimentos, buscamos uma solução arquitetônica que traduzisse sua proposta: unidades duplex, simplex e triplex, permitindo aproveitar ao máximo a vista privilegiada para a região noroeste de São Paulo.
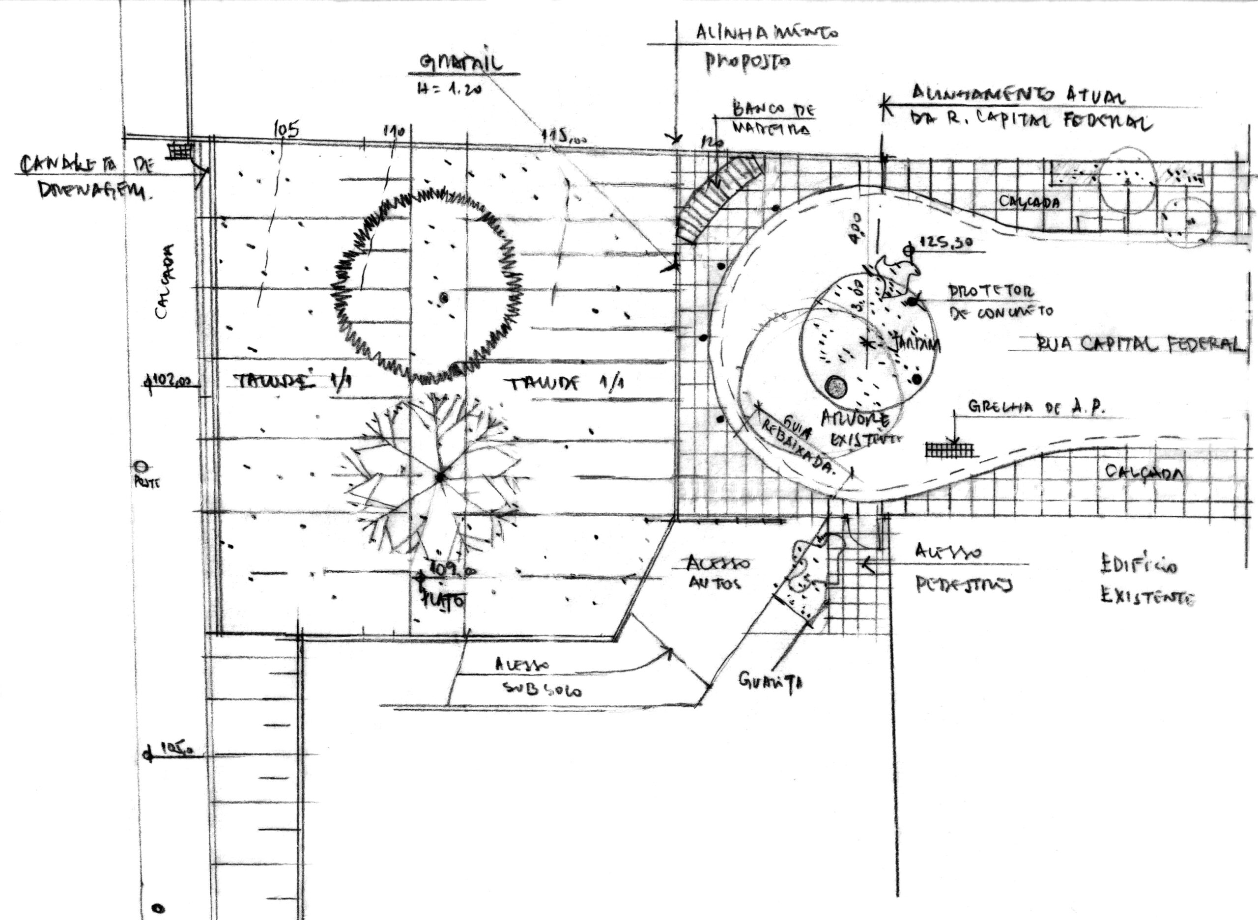
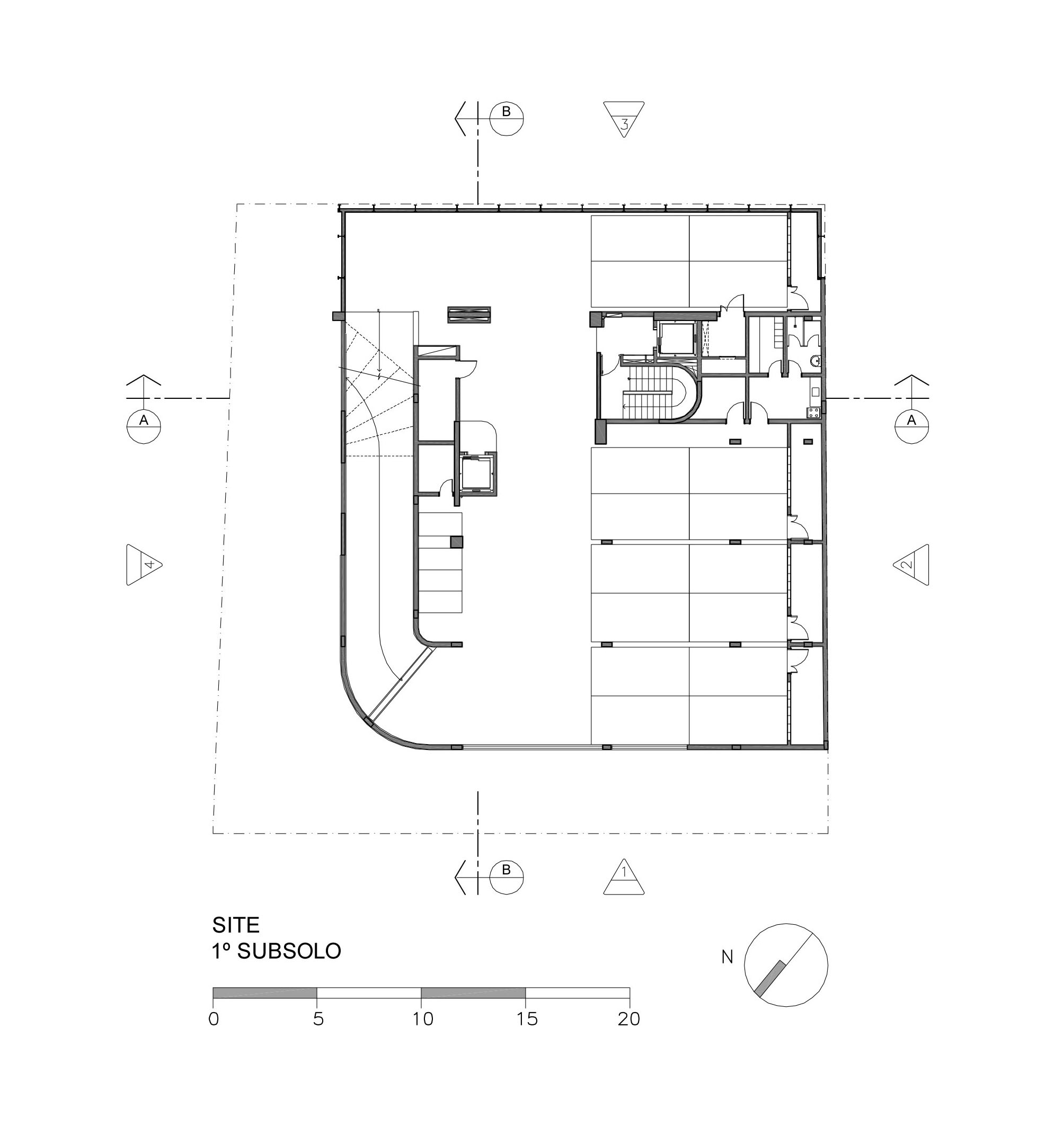
O terreno, com dimensões de 30 x 30 metros e um desnível acentuado de 30 metros, exigiu uma solução especial. Para viabilizar o acesso, foi projetada uma rotatória em torno de uma árvore existente, conciliando a preservação do elemento natural com a adequação ao desnível da rua, garantindo funcionalidade e integração ao contexto urbano.
O resultado é um edifício que alia complexidade técnica e expressão plástica, atendendo às demandas do cliente e às condicionantes do terreno.

especifidades

– Terreno de 30 x 30 m, com desnível também de 30 m

– Desnível grande na rua do edifício exigiu solução para acesso na rua, originando uma rotatória em torno de uma árvore preservada

– Solicitação do cliente de grande altura do edifício, com unidades simples, duplex e quadriplex

etapas de projeto envolvidas

APDTEPEVEXLOPLPR

LD: Levantamento de dados
PN: Programa de necessidades
EV: Estudo de viabilidade
EP: Estudo preliminar
AP: Anteprojeto
PR: Pré-executivo
EX: Executivo
DT: Detalhamento
LO: Liberado para obra
PL: Projeto legal
AO: atendimento a obra
AB: As built
PB: projeto básico

ficha técnica