senac | registro

aflalo/gasperini arquitetos
status do projeto
obra finalizada
localização
registro, sp
tipologia
institucional
área construída
3381
escopo
COMCOODES

EV: Estudo de viabilidade
AUT: Autoria
DES: Desenvolvimento
COM: Compatibilização
COO: Coordenação

autoria
aflalo/gasperini arquitetos
incorporação
senac
construção
senac
conclusão do projeto
2015
conclusão da construção
2015

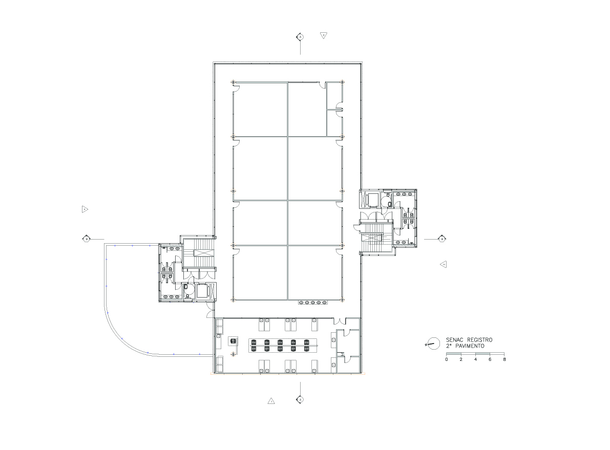
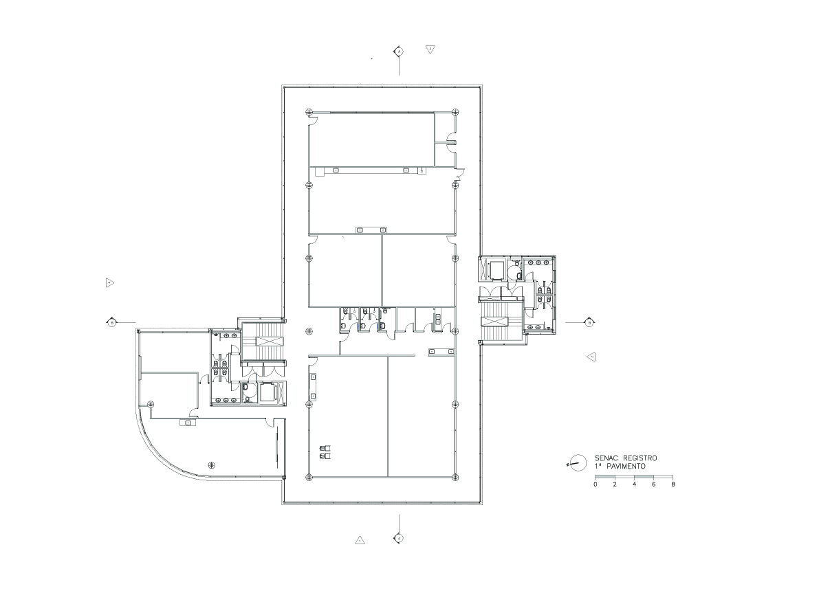
Esta unidade do Senac foi dirigida à cidade com menor IDH do estado, com um clima bem tropical. Onde se esperava um público vindo de atividades rurais. O terreno oferecido era um lote Urbano numa área em desenvolvimento vizinha a rodovia e a bairro residencial. O primeiro item considerado foi o problema de mão de obra e insumos para a construção. A solução foi propor uma obra toda pré-fabricada evitando a construção convencional in loco. O projeto foi desenvolvido em estrutura metálica, lajes pré-fabricadas e fachadas pré-moldadas. Inaugurava também uma nova visão de ocupação de layout, destacando a biblioteca do conjunto. A ideia foi fazer as circulações pelos perímetros de modo a trazer os usuários para o contato com o exterior, fugindo do interior dos andares.

especifidades

– Construção totalmente pré-fabricada em estrutura metálica

folhas de projetos analisadas

3486

etapas de projeto envolvidas

APEPEVEXPL

LD: Levantamento de dados
PN: Programa de necessidades
EV: Estudo de viabilidade
EP: Estudo preliminar
AP: Anteprojeto
PR: Pré-executivo
EX: Executivo
DT: Detalhamento
LO: Liberado para obra
PL: Projeto legal
AO: atendimento a obra
AB: As built
PB: projeto básico

disciplinas envolvidas

ficha técnica

acessibilidade
rogério romeiro arquitetura

acústica
harmonia acústica

ar-condicionado
teknika

automação
bettoni

caixilharia
aec consultores de arquitetura e construção

comb. à incêndio
rodrigo dib

comunicação visual
univers design

copiadora
vilipel

drenagem
drenatec

elevador
empro

elétrica / comb. à incêndio / força-energia / hidráulica / telecom. e dados
ma2

estrutura
etcpl

fundação / sondagem
damasco penna

impermeabilização
proassp

instalações de cozinha
consult food

interiores
sá marques

levantamento planialtimétrico
ancec agrimensura

luminotécnica
cia de iluminação

maquete
kenji maquetes

orçamento
petrucci

paisagismo
benedito abbud arquitetura paisagística