senac | campus santo amaro

aflalo/gasperini arquitetos
status do projeto
obra finalizada
localização
são paulo, sp
tipologia
institucional
área construída
104887
escopo
COMCOODES

EV: Estudo de viabilidade
AUT: Autoria
DES: Desenvolvimento
COM: Compatibilização
COO: Coordenação

autoria
aflalo/gasperini arquitetos
incorporação
senac
construção
senac
conclusão do projeto
2004
conclusão da construção
2006

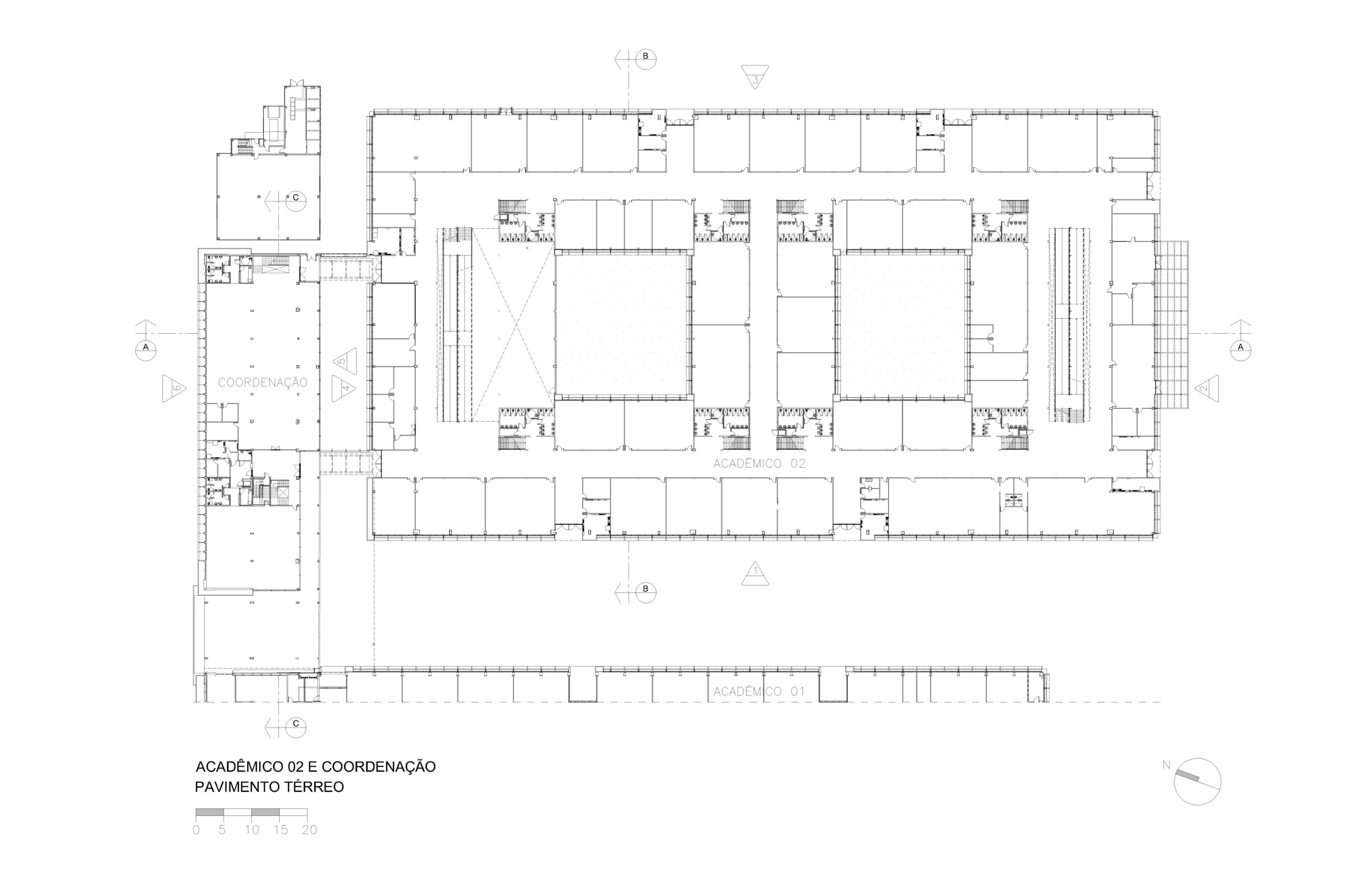
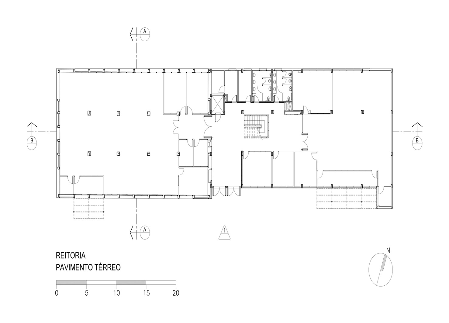
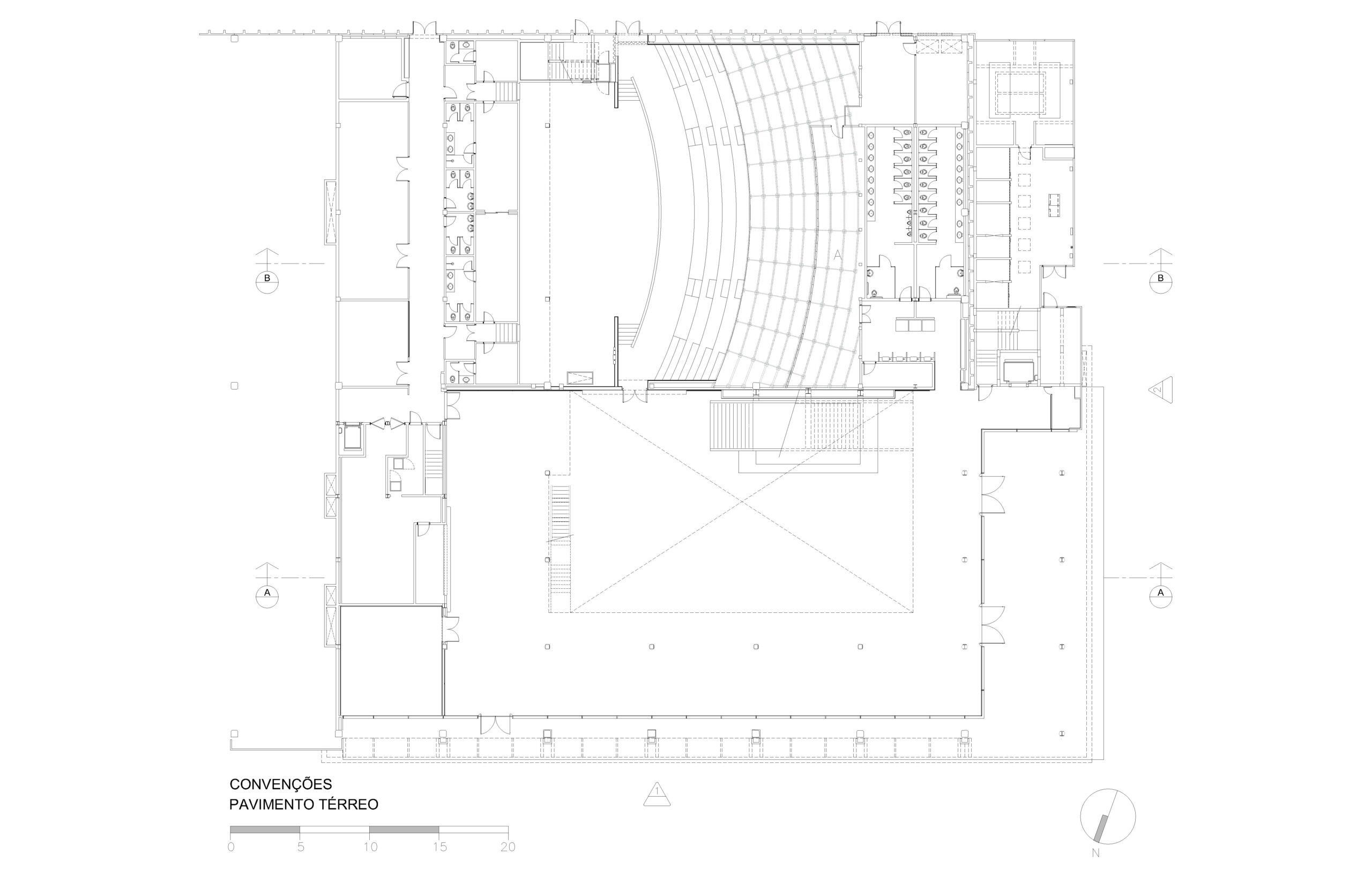
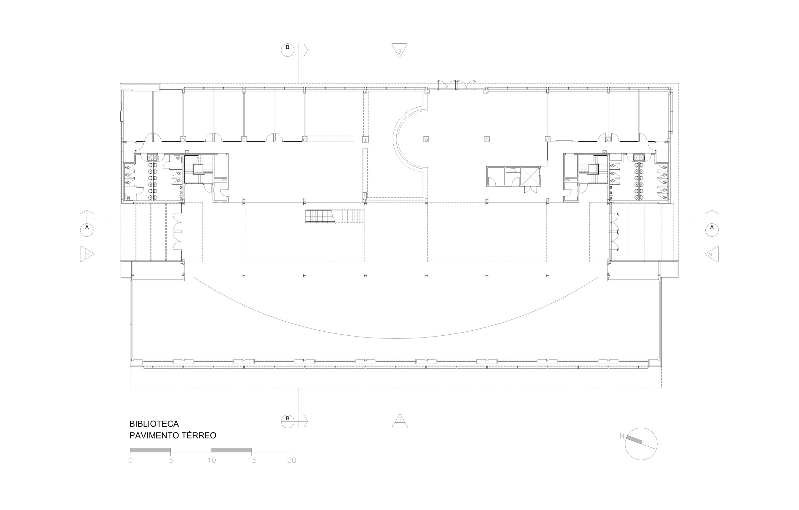
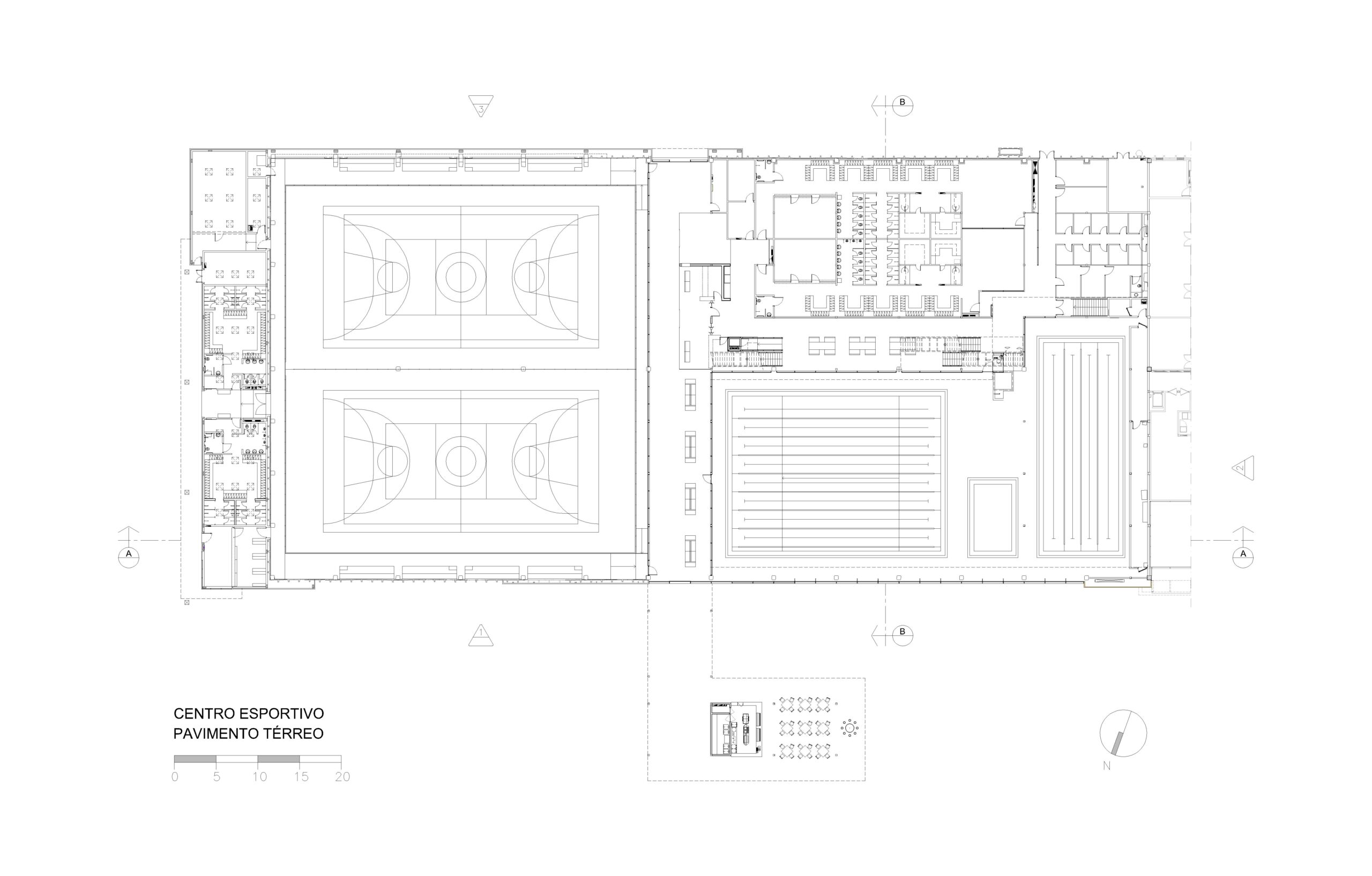
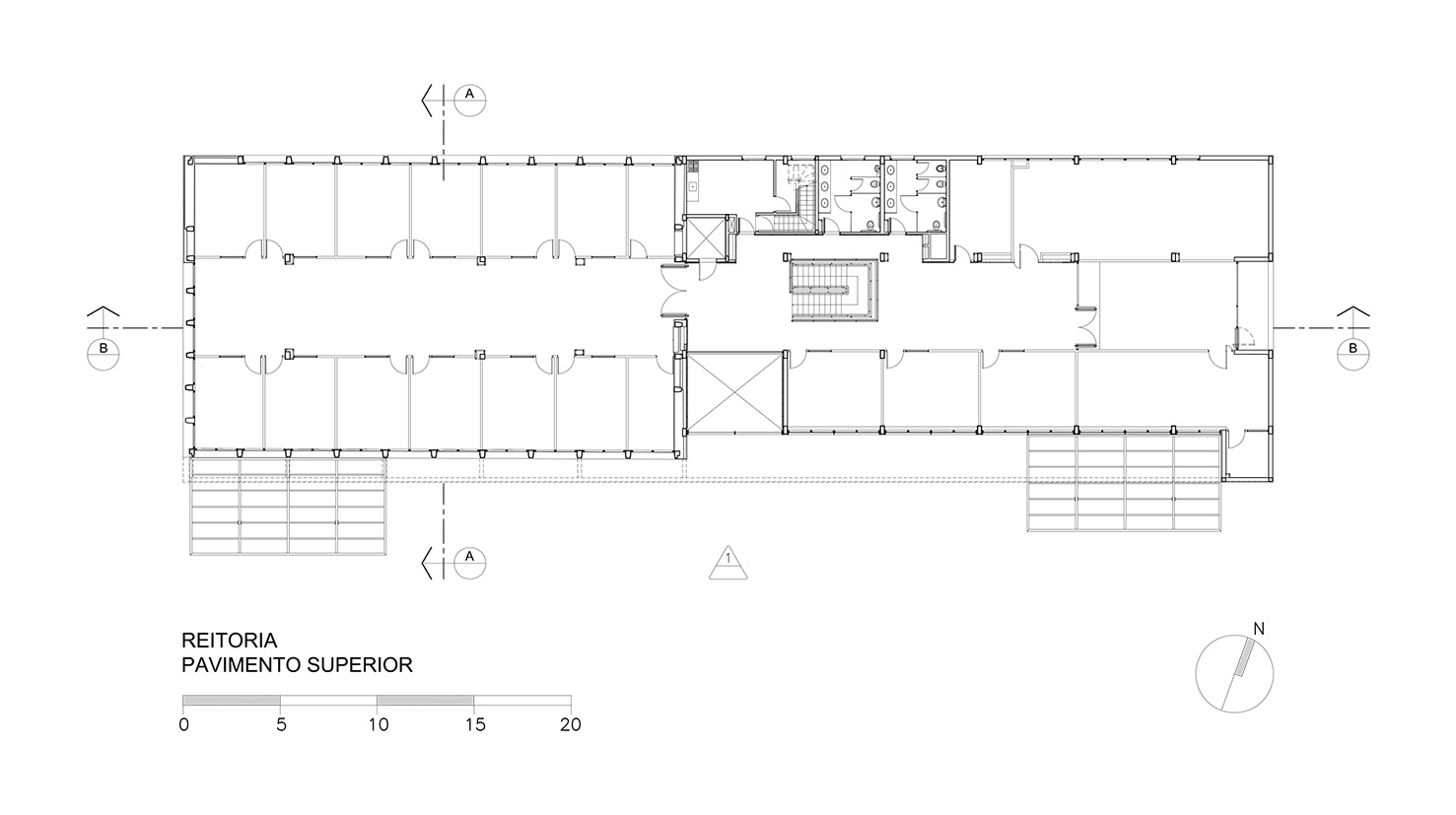
Este projeto teve origem na transformação da antiga fábrica da Walita, adquirida pelo Senac, em um campus universitário. O escritório Aflalo/Gasperini realizou os estudos iniciais, propondo a reciclagem dos edifícios industriais para abrigar a nova universidade. Após a aprovação do conceito e do plano diretor, nossa equipe ficou responsável pelo desenvolvimento do projeto completo, além da coordenação e compatibilização das disciplinas envolvidas. A integração com a equipe do Senac foi essencial para garantir agilidade e qualidade, especialmente diante da urgência da obra, que exigiu um processo colaborativo com a equipe de construção. A recuperação e o restauro das construções existentes definiram a adoção de soluções como estrutura metálica, estrutura de concreto pré-fabricado e fachadas compostas por painéis arquitetônicos de concreto pré-moldados. Os sistemas prediais foram planejados para aproveitar a configuração horizontal dos edifícios, garantindo eficiência e racionalidade. Em conjunto com a equipe pedagógica do Senac, definimos um modelo funcional que organiza os cursos nas grandes áreas horizontais, permitindo em regime escalonado o uso compartilhado das salas por diferentes faculdades. O resultado é um campus que nasceu com identidade visual marcante, que valoriza a memória industrial e consolida fisicamente a proposta educacional.

especifidades

– Conceito arquitetônico diferenciado

– Reciclagem/retrofit de um complexo industrial para uma universidade

folhas de projetos analisadas

1249

etapas de projeto envolvidas

APDTEPEXLOPLPR

LD: Levantamento de dados
PN: Programa de necessidades
EV: Estudo de viabilidade
EP: Estudo preliminar
AP: Anteprojeto
PR: Pré-executivo
EX: Executivo
DT: Detalhamento
LO: Liberado para obra
PL: Projeto legal
AO: atendimento a obra
AB: As built
PB: projeto básico

disciplinas envolvidas

ficha técnica

acústico
acústica engenharia

ar-condicionado
teknika projetos e consultoria

audiovisual
sky alm

automação predial
bosco & associados

caixilharia
aec consultores

cozinha
senac

drenagem
drenatec - regea

elétrica / hidráulica / incêndio
phe – projetos hidráulicos e elétricos

elevadores
empro – engenharia de produção

energia solar
agência energia

esculturas
chico niedzielski

estrutural
escritório técnico césar pereira lopes

interiores
sá marques const. e programação visual

luminotécnica
franco & fortes

paisagismo
agroarte serviços técnicos em agropecuária e paisagismo

pré-moldados
stamp

segurança
estratégica

telemática
ábaco sylex networking

tráfego
michel sola consultoria e engenharia

biblioteca
centro esportivo
convenções e design
gastronomia e restaurante
portaria e reitoria