senac | campos do jordão

aflalo/gasperini arquitetos
status do projeto
projeto finalizado
localização
campos do jordão, sp
tipologia
institucional
área construída
4565
escopo
COMCOODES

EV: Estudo de viabilidade
AUT: Autoria
DES: Desenvolvimento
COM: Compatibilização
COO: Coordenação

autoria
aflalo/gasperini arquitetos
incorporação
senac
construção
-
conclusão do projeto
2011
conclusão da construção
-

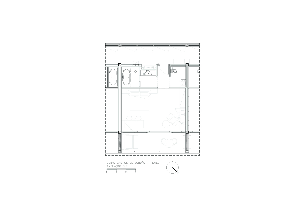
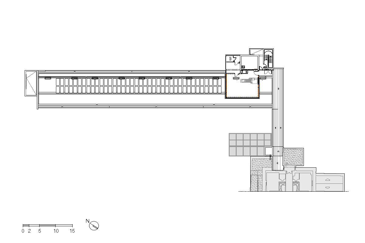
O tradicional hotel de Campos de Jordão precisava aumentar sua capacidade e qualificá-la ainda mais. A solicitação ao Aflalo/Gasperini, que nos tinha como parceiros, era a construção de um conjunto vertical de 30 modernas suítes de luxo e 10 suítes independentes de altíssimo luxo, com vistas exclusivas e isoladas do restante do hotel. As restrições para construção eram desviar da grande quantidade de araucárias, proibição de escavações e equacionar a ligação física do novo edifício com as suítes existentes. Conseguimos identificar no morro ao lado da rua interna de acesso, um trecho de pinheiros passiveis de remoção, e idealizamos um prédio elevado em pilotis, sem a necessidade escavações, e propusemos os três pavimentos permitidos com dez suítes de 50 m² cada, todas com varanda e vista para o vale arborizado na frente do casarão do hotel, a conexão se dá por uma ponte metálica de pedestres envidraçada, que conecta com o corredor do último andar do hotel existente. Para as suítes Masters, foi definido um percurso horizontal contornando amontanha oposta aos dois edifícios, onde foram desenhadas construções leves em estrutura metálicas, em dois níveis sem encostar no chão, com suas varandas voltadas para cidade de Campos de Jordão e para o nascer do sol.

especifidades

– Conceito arquitetônico diferenciado

– Reformas em um hotel existente, em uso

– Estruturas metálicas

folhas de projetos analisadas

1022

etapas de projeto envolvidas

APEPEVEXPL

LD: Levantamento de dados
PN: Programa de necessidades
EV: Estudo de viabilidade
EP: Estudo preliminar
AP: Anteprojeto
PR: Pré-executivo
EX: Executivo
DT: Detalhamento
LO: Liberado para obra
PL: Projeto legal
AO: atendimento a obra
AB: As built
PB: projeto básico

disciplinas envolvidas

ficha técnica

acústica
passeri e associados – acústica e arquitetura

ar cond. / pressurização / vent. / exaust.
teknika

automação / detecção / seg. patrim.
bettoni automação e segurança

elétrica / hidráulica / sprinkler
ma2

caixilharia
arqmate

consultor de academia
andré zenga passoni

consultor de acessibilidade
terra arquitetura

consultor de fundações
cepollina engenheiros consultores

comunicação visual
und

copiadora
vilipel

elevador
empro engenharia

estrutura
sis - engenharia de projetos e consultoria estrutural

estrutura metálica
enge brat

impermeabilização
proassp

interiores
gk arquitetura

luminotécnica
franco & fortes lighting design

paisagismo
raul pereira paisagismo

topografia
e. kangi

chalés
fitness
hotel
restaurante