senac | águas de são pedro

aflalo/gasperini arquitetos
status do projeto
obra finalizada
localização
águas de são pedro, sp
tipologia
institucional
área construída
31149
escopo
COMCOODES

EV: Estudo de viabilidade
AUT: Autoria
DES: Desenvolvimento
COM: Compatibilização
COO: Coordenação

autoria
aflalo/gasperini arquitetos
incorporação
senac
construção
senac
conclusão do projeto
2007
conclusão da construção
2008

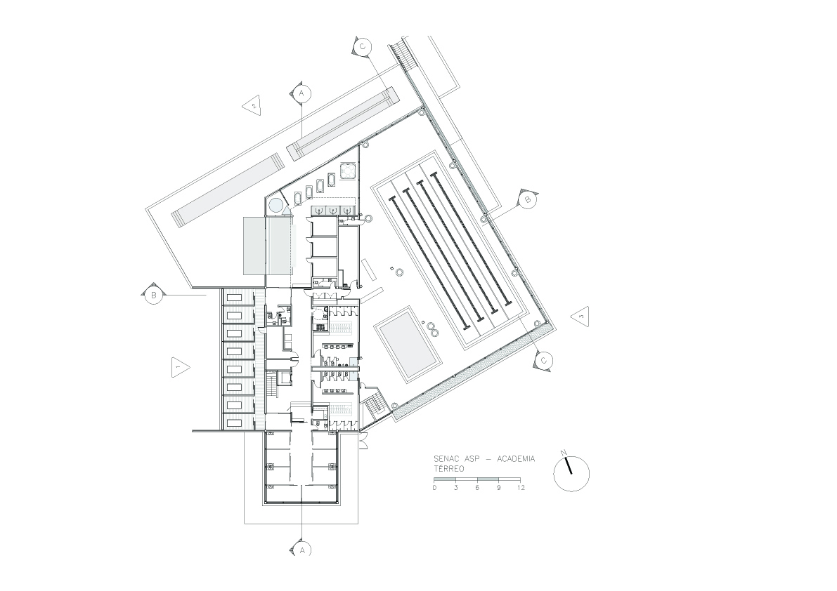
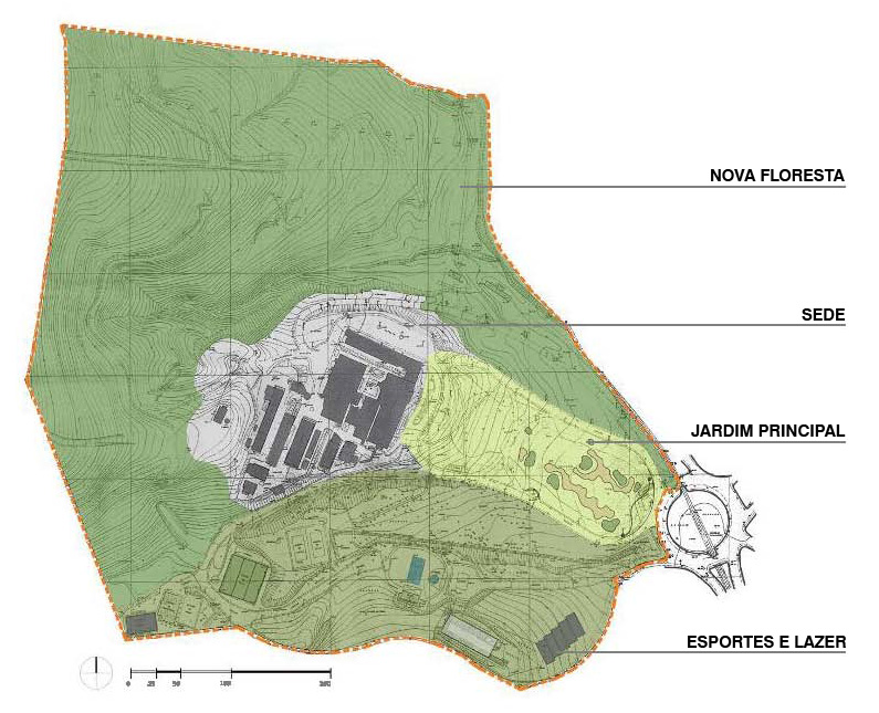
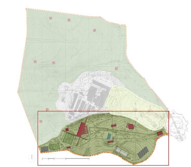
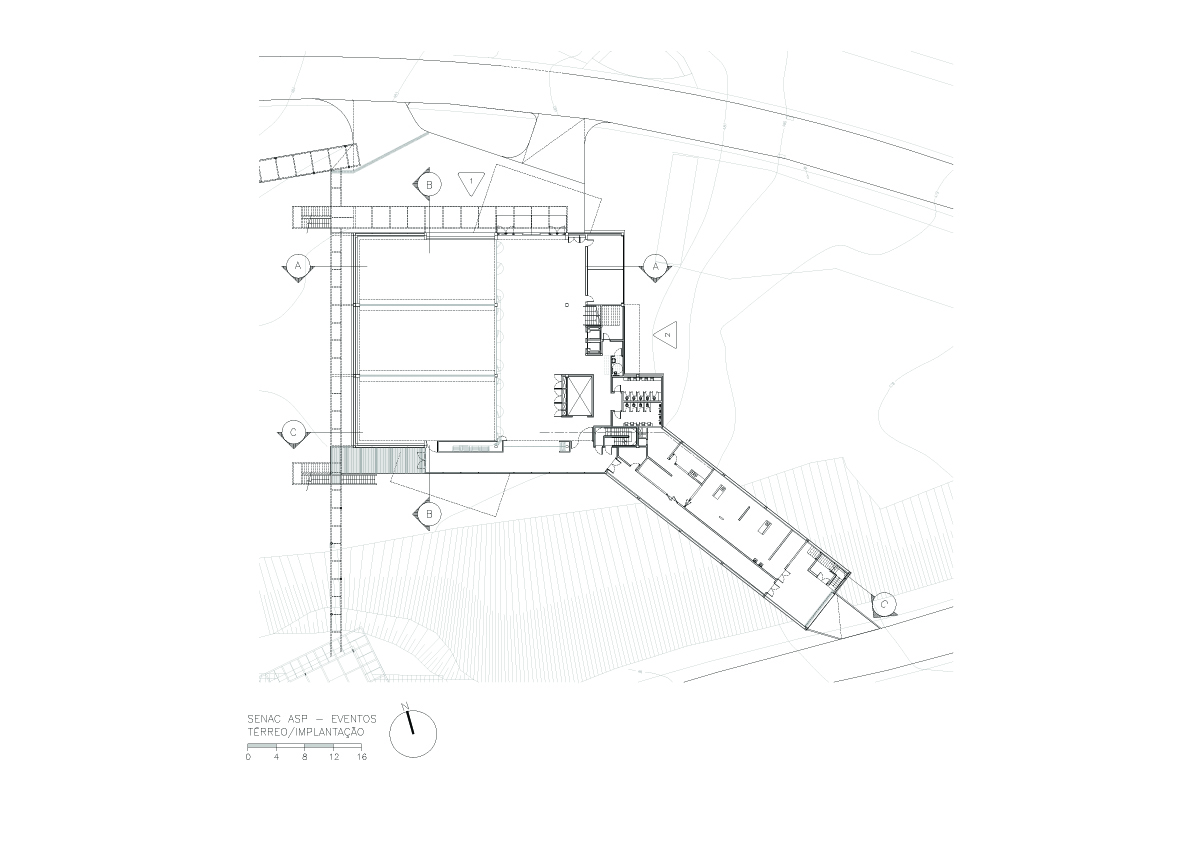
Para modernizar o Grande Hotel São Pedro o Senac contratou a Aflalo/Gasperini, que nos convidou para uma parceria nesse trabalho. Após análise ao tradicional complexo hoteleiro, elaboramos um plano diretor de ocupação elegendo áreas de uso para organizar as futuras modernizações. Desenvolvemos os projetos do novo bar da piscina sob a frondosa arvore existente, da reforma da piscina e seu entorno, da remodelação da quadra coberta, de todo o passeio no entorno do vale, finalizamos também o projeto completo da academia e do sofisticado centro eventos e convenções, que não foram construídos. A conclusão importante do plano diretor foi que: mesmo sendo o motivo da existência do município de Águas de São Pedro, quem visitava a cidade não notava a existência do grande hotel. Isso porque a avenida principal finalizava numa rotatória sem acesso e cuidados paisagísticos. Propusemos então que o Senac transformasse a rotatória numa praça pública, o que foi aceito prontamente. Desenhamos a nova praça como um ambiente de estar e contemplação, incorporamos no desenho o canal intermitente que cruza a cidade, e como atrativo criamos um lago artificial com fontes de vapor. A praça se tornou referência turística na região e o principal ponto turístico da cidade, que é arrematado com a vista do grande hotel.

especifidades

– Conceito arquitetônico diferenciado

– Reformas em um hotel existente e em uso

– Estruturas metálicas

folhas de projetos analisadas

4591

etapas de projeto envolvidas

APEPEVEXPL

LD: Levantamento de dados
PN: Programa de necessidades
EV: Estudo de viabilidade
EP: Estudo preliminar
AP: Anteprojeto
PR: Pré-executivo
EX: Executivo
DT: Detalhamento
LO: Liberado para obra
PL: Projeto legal
AO: atendimento a obra
AB: As built
PB: projeto básico

disciplinas envolvidas

ficha técnica

alwitra
alwitra

assessoria e consultoria paisagista
grupo sacae watanabe

caixilharia
aluparts – engenharia e consultoria

caixilharia 02
dorma

consultor de fundações
cepollina engenheiros consultores

consultoria de projetos esportivos
andré passoni

copiadora
vilipel

elétrica / hidráulica / sprinkler
phe – projetos hidráulicos e elétricos

estrutura
sis - engenharia de projetos e consultoria estrutural

estrutura metálica
enge brat

fontes
hidrofontes

impermeabilização
proassp

luminotécnica
studio ix

monobeton
monobeton

nucleora
nucleora

orçamento
dfg engenharia e participações

paisagismo
raul pereira

pedras
ox piso
pedras paraíso

topografia
engeo - engenharia geomática

academia
eventos
praça da figueira
praça de entrada