quality inn hotel | sao international square

aflalo/gasperini arquitetos
status do projeto
obra finalizada
localização
são caetano do sul, sp
tipologia
comercial
área construída
4729
escopo
COMCOODES

EV: Estudo de viabilidade
AUT: Autoria
DES: Desenvolvimento
COM: Compatibilização
COO: Coordenação

autoria
aflalo/gasperini arquitetos
incorporação
gafisa
construção
gafisa
conclusão do projeto
2012
conclusão da construção
2017

especifidades

– Projeto em BIM

folhas de projetos analisadas

4729

etapas de projeto envolvidas

APEPEVEXPBPL

LD: Levantamento de dados
PN: Programa de necessidades
EV: Estudo de viabilidade
EP: Estudo preliminar
AP: Anteprojeto
PR: Pré-executivo
EX: Executivo
DT: Detalhamento
LO: Liberado para obra
PL: Projeto legal
AO: atendimento a obra
AB: As built
PB: projeto básico

disciplinas envolvidas

ficha técnica

acústica
acústica engenharia

ait – torres c e d
carlos rossi

alvenaria modulada
arco

ar cond. / pressurização / vent. / exaust.
thermoplan

automação
si2

comunicação visual – torres a e b
consorcio visual geac

consultoria alumínio
mario newton leme consultoria esquadrias

consultor catracas
controller bms

consultor certificação ambiental
cte

consultor elétrica
engenharia gerencial

consultoria garagens
ghoubar & ghobar

consultor hidráulica
metro cúbico

consultor incêndio
stf –assessoria e consultoria

cozinha industrial
lima sales – consultoria e projetos

drenagem
paulo roberto aguiar

efeitos d’água
kolorines

elevadores
empro consultoria

elétrica / hidráulica / sprinkler – torres a e b
fator engenharia e projetos

elétrica / hidráulica / sprinkler – torres c e d
skk

estrutura – torres a e b
jkmf

estrutura – torres c e d
frança & associados

estrutura metálica
vmc projetos mecânicos e estruturais

fornecedores fachadas
cecrisa
gmm
glassec

fundação
mg&a

gestão de resíduos
multilixo remoções de lixo

gestão de resíduos sólidos (pgrs) – torres a e b
tania miyazaki

impermeabilização
proassp

interiores – torres a e b
uni.h

irrigação
jorge ishida

luminotécnica
esther stiller

paisagismo
ekf paisagismo

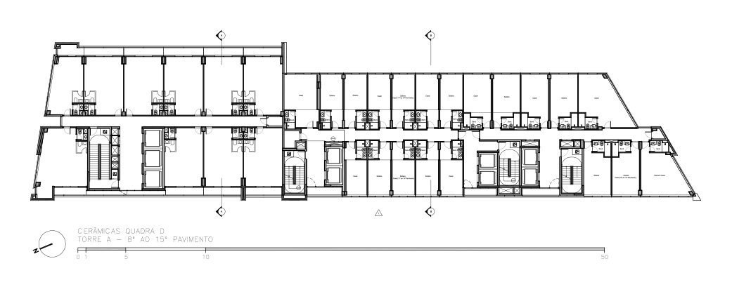
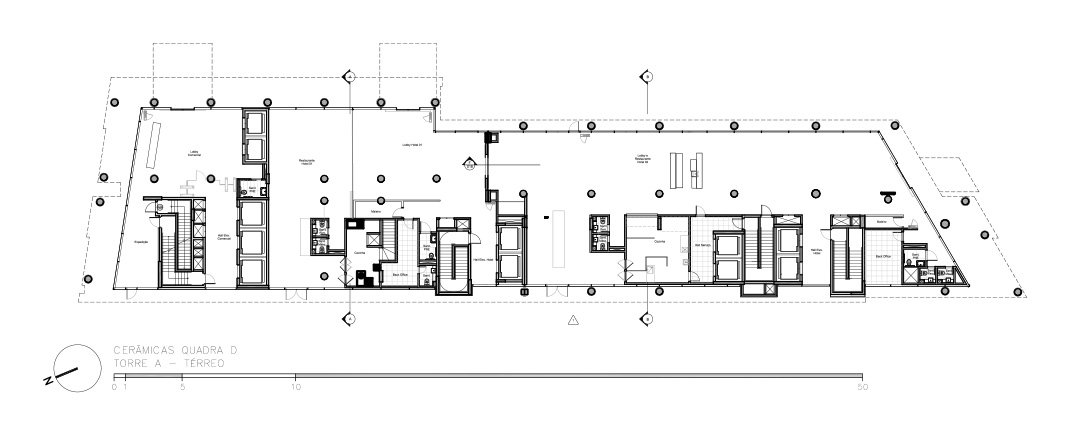
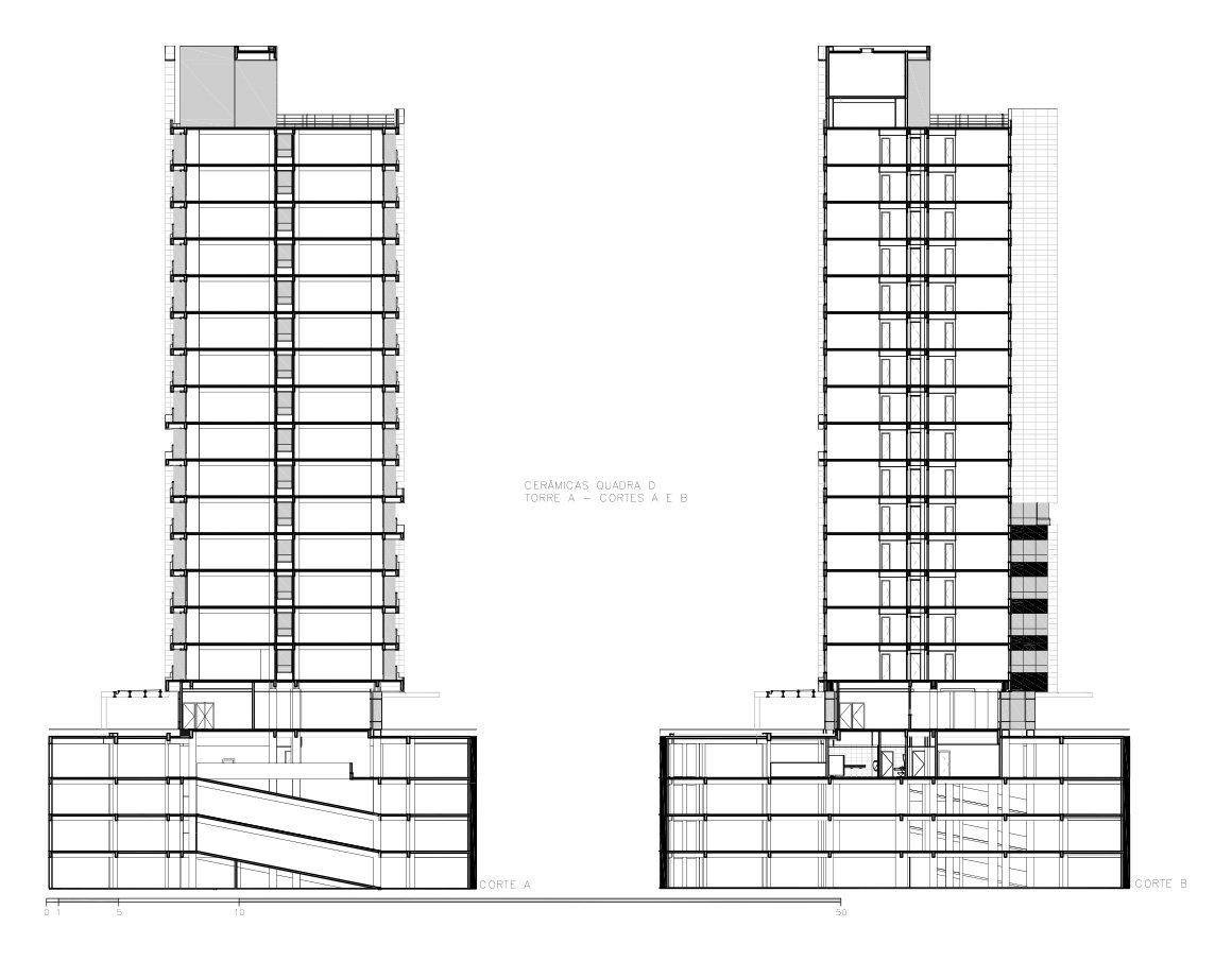
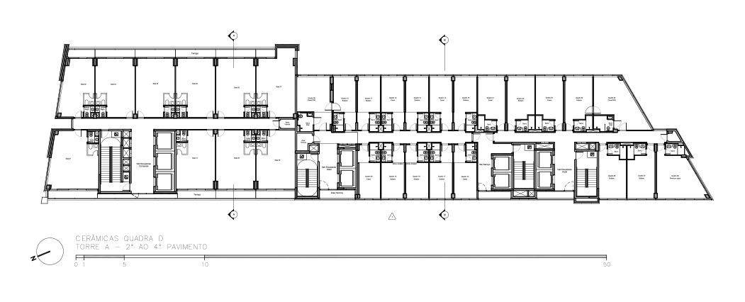
torre a
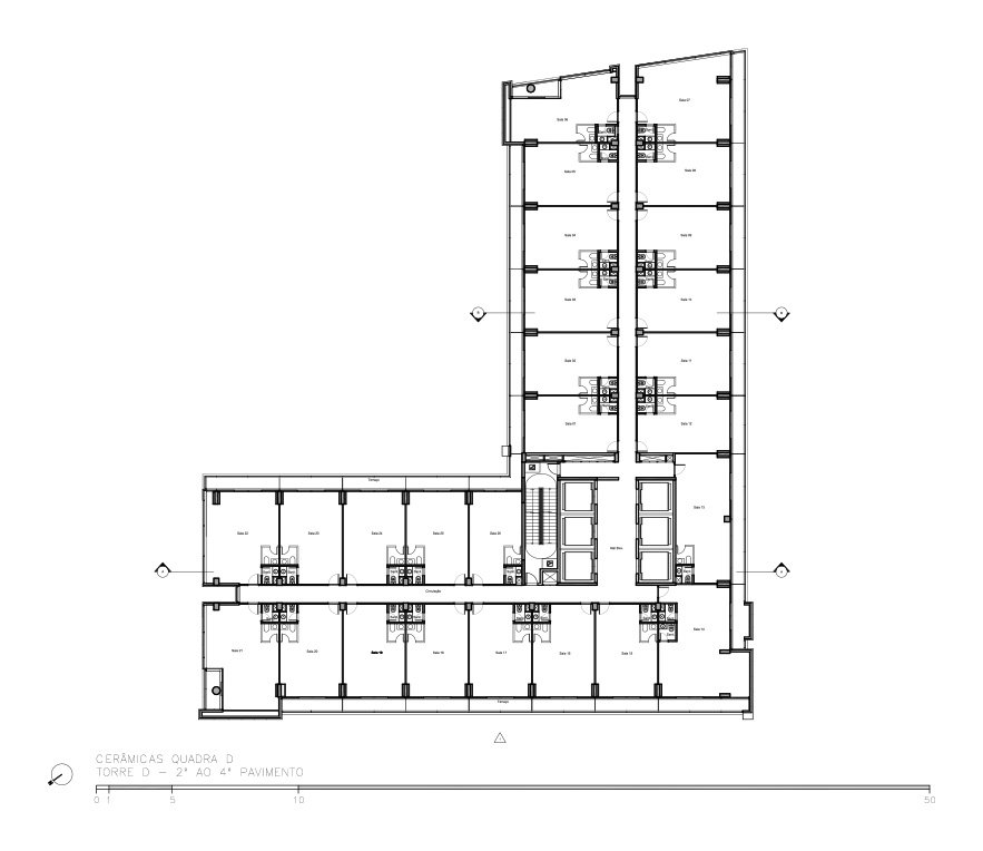
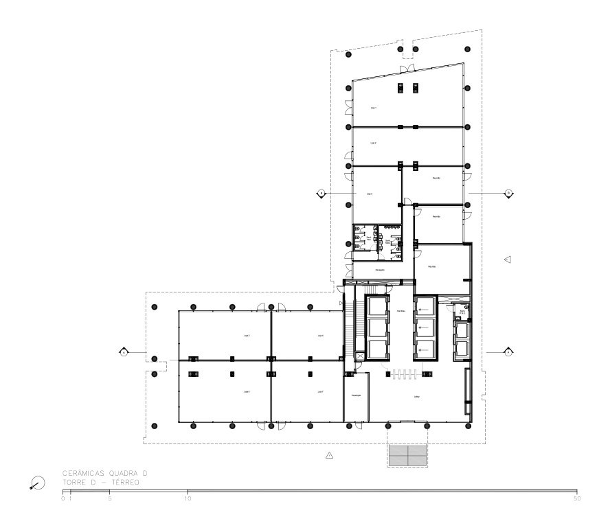
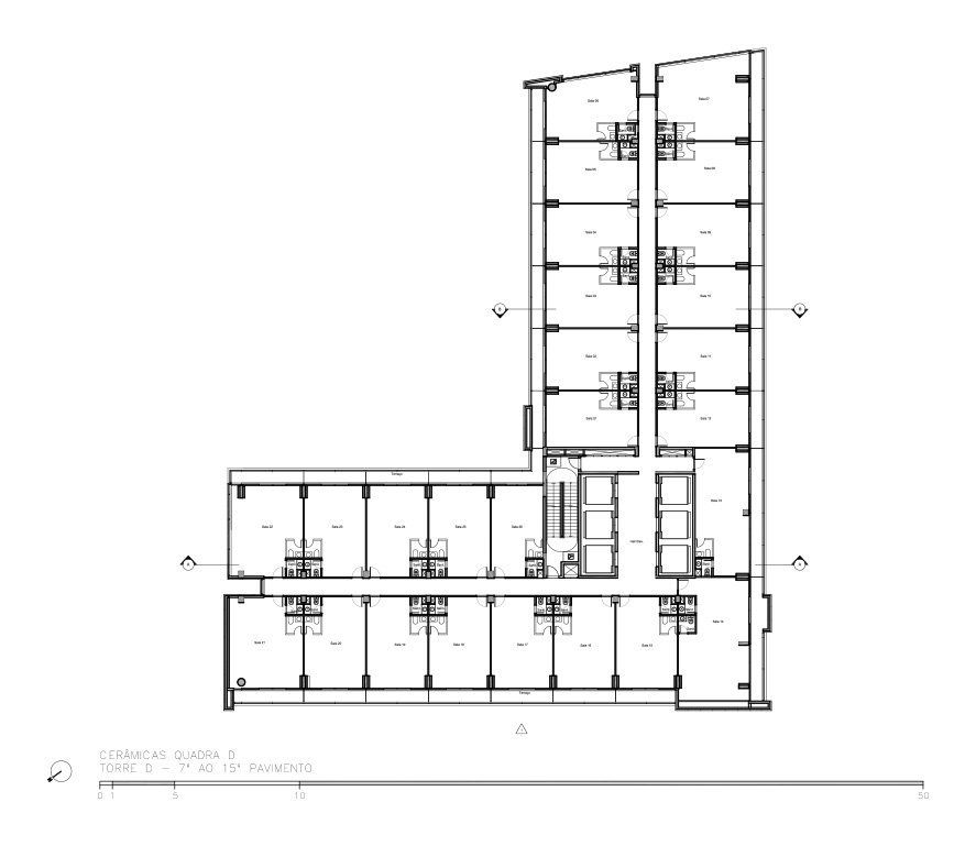
torre d