sala de concertos

associação sociedade cultura artística
status do projeto
obra finalizada
localização
são paulo, sp
tipologia
institucional
área construída
6442
escopo
COMCOODES

EV: Estudo de viabilidade
AUT: Autoria
DES: Desenvolvimento
COM: Compatibilização
COO: Coordenação

autoria
paulo bruna
incorporação
a s cultura artística
construção
htb
conclusão do projeto
2018
conclusão da construção
2024

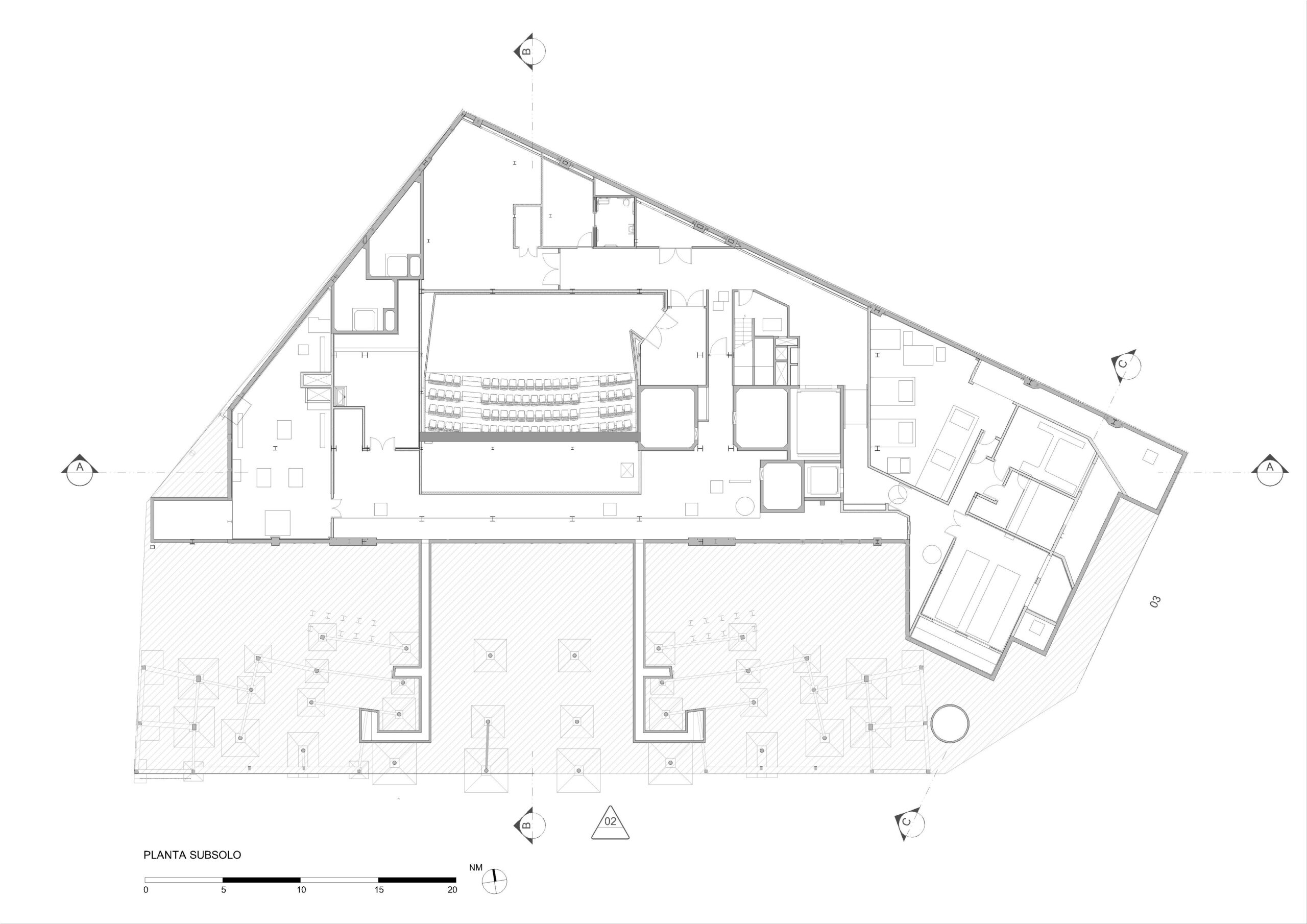
O projeto consistiu na criação de uma sala de concertos para 750 pessoas, preservando o painel de fachada de Di Cavalcanti já restaurado, além do hall de entrada no térreo e o foyer superior.

A partir do estudo de ocupação, surgiu um desafio estrutural: a estrutura de reforço necessária para manter o painel não poderia receber cargas horizontais ou verticais. Além disso, o vão de 25 metros da caixa acústica interceptava áreas destinadas ao restauro.

Após análise in loco e estudo das plantas originais, foram identificadas duas antigas saletas de telefone no térreo, posicionadas a 25 metros de distância, nos limites da plateia. Nesses pontos foram implantados dois robustos pilares, permitindo conceber uma estrutura independente para a sala, sem interferir no painel.

Os vãos de 25 metros foram vencidos por treliças de grande porte, que abrigam toda a infraestrutura necessária ao desempenho acústico e funcional da sala. As quatro faces, a cobertura e o piso foram projetados com sistemas de isolamento acústico, garantindo controle sonoro tanto de fora para dentro quanto no sentido inverso.

especifidades

– Projeto em BIM

– Uso diferenciado trouxe desafios ao projeto

– Conceito arquitetônico diferenciado

– Soluções estruturais desafiadoras

– Sistema estrutural misto (concreto moldado in loco, metálica)

– Fachada como bem tombado

– Certificado LEED Gold

folhas de projetos analisadas

566

etapas de projeto envolvidas

ABEPEVLO

LD: Levantamento de dados
PN: Programa de necessidades
EV: Estudo de viabilidade
EP: Estudo preliminar
AP: Anteprojeto
PR: Pré-executivo
EX: Executivo
DT: Detalhamento
LO: Liberado para obra
PL: Projeto legal
AO: atendimento a obra
AB: As built
PB: projeto básico

disciplinas envolvidas

ficha técnica

acústica
acustica & sonica

ar-condicionado
thermoplan engenharia térmica

automação / elétrica / hidráulica / incêndio
soeng eh projetos

caixilharia
paulo duarte consultores

cenotecnia
tdna

comunicação visual
ovo' e estúdio 196

conforto térmico
2m projetos

consultor acessibilidade
pimenta associados

consultores bombeiro
focus

consultor sustentabilidade
otec

consultor restauro
maria luiza dutra & associados

copiadora
da vinci

cozinha
eduardo scott

estrutura
jzkjf-kurdjian fruchtengarten eng. associados

fundações
mg&a

impermeabilização
proassp

interiores mobiliário
ovo'

luminotécnica
studio ix

paisagismo
rodrigo oliveira

transporte vertical
empro