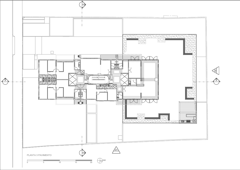
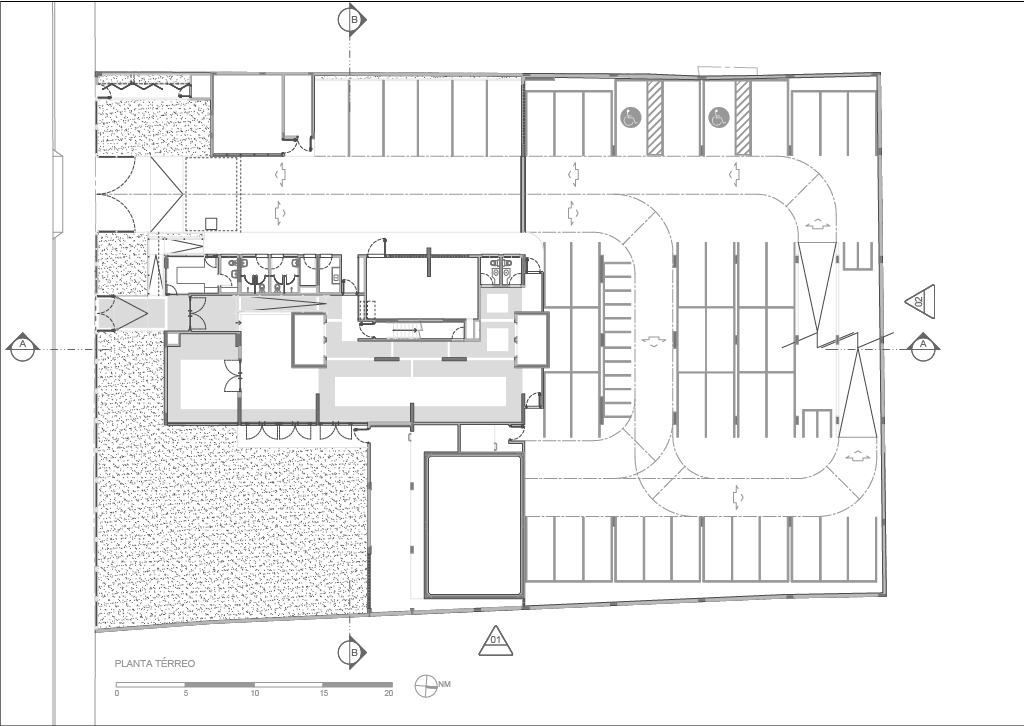
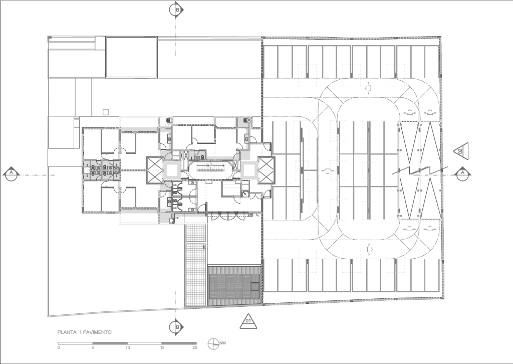
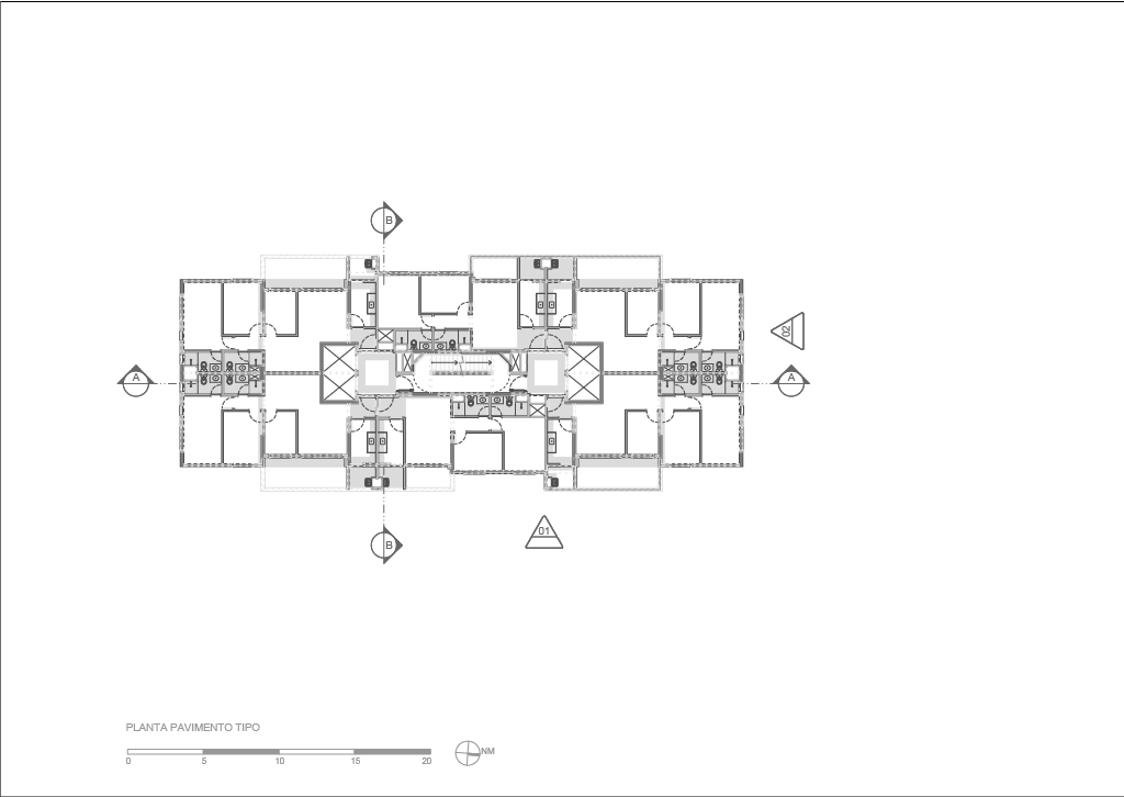
residencial pyetra

mw.arq
status do projeto
obra finalizada
localização
são paulo, sp
tipologia
residencial
área construída
11500
escopo
AUTCOMCOODES

EV: Estudo de viabilidade
AUT: Autoria
DES: Desenvolvimento
COM: Compatibilização
COO: Coordenação

autoria
purarquitetura e moema wertheimer
incorporação
ironfer
construção
ironfer
conclusão do projeto
2010
conclusão da construção
2012

especifidades

– Projeto econômico com seis apartamentos por pavimento

– Empreendimento foi lançado e vendido em apenas uma semana

folhas de projetos analisadas

130

etapas de projeto envolvidas

APEPEVEXLOPLPR

LD: Levantamento de dados
PN: Programa de necessidades
EV: Estudo de viabilidade
EP: Estudo preliminar
AP: Anteprojeto
PR: Pré-executivo
EX: Executivo
DT: Detalhamento
LO: Liberado para obra
PL: Projeto legal
AO: atendimento a obra
AB: As built
PB: projeto básico

disciplinas envolvidas

ficha técnica

consultor ambiental
conam – consultoria ambiental

consultor de prefeitura
moti

estrutura
modus engenharia de estruturas

fundações
solo.net - engenharia de solos e fundações limitada

instalações elétrica / hidráulica
prolux engenharia

pressurização
maperclima