parque da juventude

aflalo/gasperini arquitetos
status do projeto
obra finalizada
localização
são paulo, sp
tipologia
institucional
área construída
9191
escopo
COMCOODES

EV: Estudo de viabilidade
AUT: Autoria
DES: Desenvolvimento
COM: Compatibilização
COO: Coordenação

autoria
aflalo/gasperini arquitetos
incorporação
secretaria de estado da juventude esportes e lazer
construção
engeform
conclusão do projeto
2003, 2005 e 2012
conclusão da construção
2007

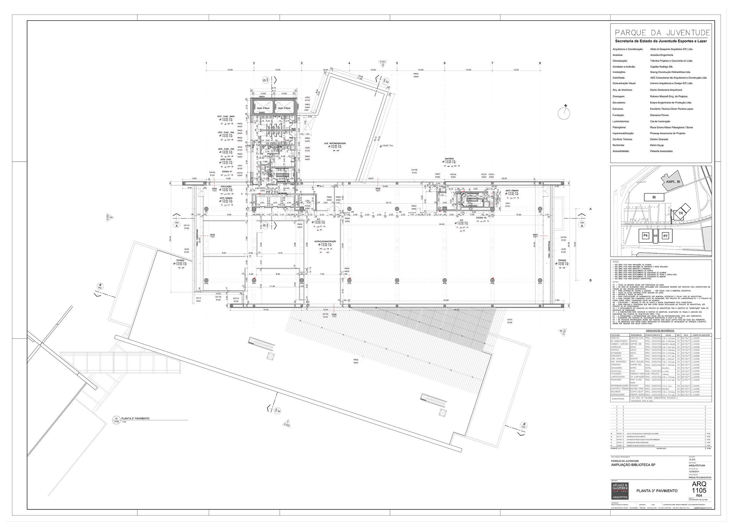
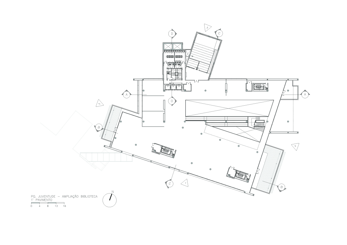
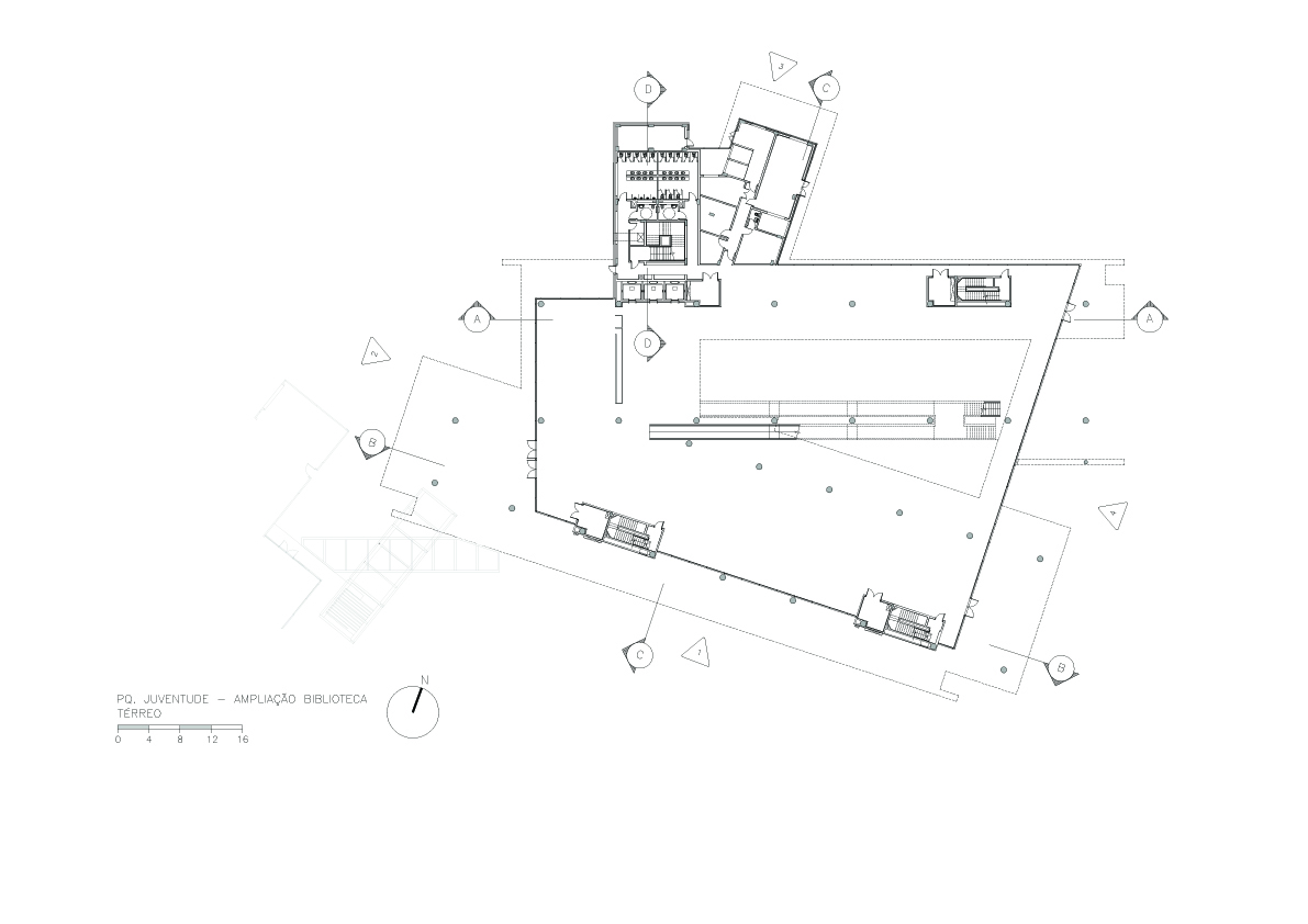
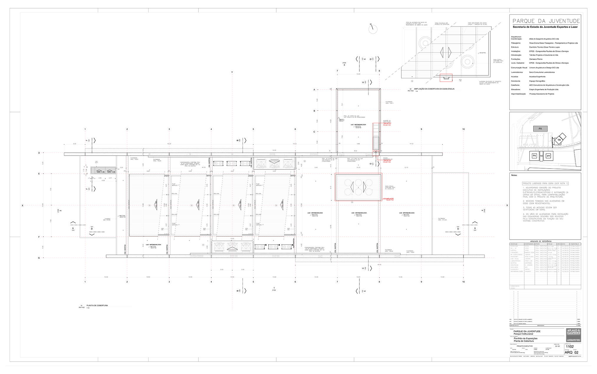
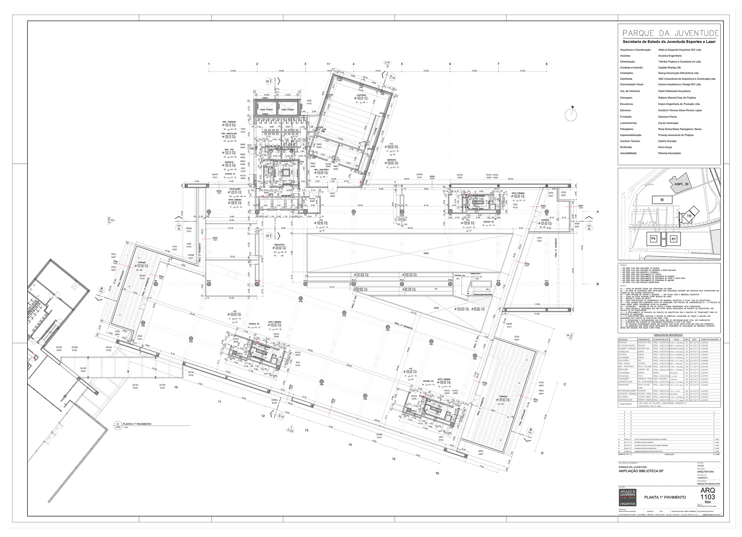
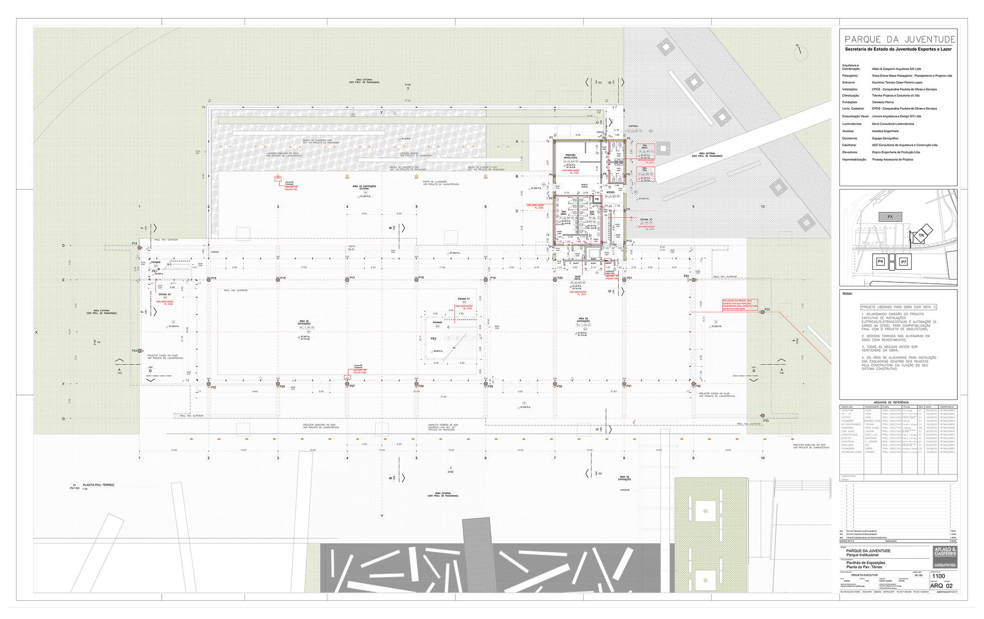
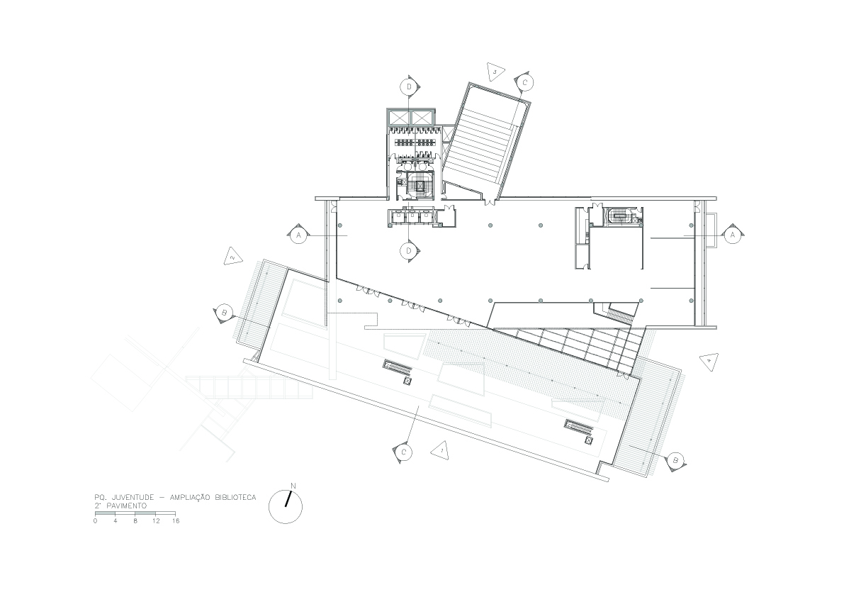
Resultado de um concurso público, o projeto desenvolvido por Aflalo/Gasperini e Rosa Klias foi concebido em duas etapas: inicialmente, o parque esportivo, seguido pelo parque institucional, que abriga os edifícios culturais e educacionais. Nossa equipe foi responsável nesta segunda fase, pelo desenvolvimento do projeto completo, coordenação e compatibilização dos projetos dos demais especialistas. O conceito previa a reciclagem de quatro pavilhões das antigas instalações prisionais, mantendo uma praça central. Na reforma dos pavilhões, preservamos a estrutura original de concreto dos pavilhões e o vazio central como espaço de convívio. Na ocupação dos andares posicionamos as salas de aula voltadas para as fachadas com a circulação interna voltada para o vazio central. Tanto as fachadas internas como as externas foram reconfiguradas com painéis pré-fabricados de concreto, com desenho modular e leve, evocando a dinâmica de luz e sombra das janelas originais, mas sem a carga visual da antiga penitenciária. Após a conclusão do projeto dos quatro pavilhões e do teatro de ópera, os custos ultrapassaram os valores previstos pelo governo. A solução foi reduzir a intervenção para apenas dois pavilhões e acrescentar um novo edifício baixo e horizontal, totalmente pré-fabricado, com área reduzida, garantindo a recomposição da praça principal. Este pavilhão veio ser ocupado pela moderna Biblioteca São Paulo. O resultado é um projeto que equilibra memória e contemporaneidade, transformando um espaço marcado pelo confinamento em um ambiente aberto, voltado ao lazer, cultura e educação.

especifidades

– Conceito arquitetônico diferenciado

– Soluções estruturais desafiadoras

– Estrutura pré-fabricada na biblioteca

– Infraestruturas aparentes na biblioteca

folhas de projetos analisadas

2903

etapas de projeto envolvidas

APEPEVEXPL

LD: Levantamento de dados
PN: Programa de necessidades
EV: Estudo de viabilidade
EP: Estudo preliminar
AP: Anteprojeto
PR: Pré-executivo
EX: Executivo
DT: Detalhamento
LO: Liberado para obra
PL: Projeto legal
AO: atendimento a obra
AB: As built
PB: projeto básico

disciplinas envolvidas

ficha técnica

acústica
akkerman projetos acústicos

ar cond. / elétrica / eletro-acústica / estrutura / fundação / hidráulica / impermeabilização / levantamento cadastral / pressurização / vent. / exaust. / sprinkler
cpos – companhia paulista de obras e serviços

cozinha industrial
amauri pelloso kitchen e laundry solution

caixilharia
aec consult. de arq. e const.

cenotecnia
espaço cenográfico

comunicação visual
univers arquitetura e design

conforto ambiental
daltrini granado

copiadora
da vinci

elevador
empro eng. de produção

interiores
sá marques const. e prog. visual

luminotécnica
senzi consultoria luminotécnica

paisagismo
rosa grená kliass paisagismo

teatro
ampliação da biblioteca