parque catarina

jhsf
status do projeto
obra finalizada
localização
são roque, sp
tipologia
comercial
área construída
29211
escopo
DES

EV: Estudo de viabilidade
AUT: Autoria
DES: Desenvolvimento
COM: Compatibilização
COO: Coordenação

autoria
gui mattos
incorporação
jhsf
construção
jhsf
conclusão do projeto
2014
conclusão da construção
2023

especifidades

– Projeto em BIM

– Arquitetura com conceito diferenciado

folhas de projetos analisadas

2434

etapas de projeto envolvidas

APEXLOPB

LD: Levantamento de dados
PN: Programa de necessidades
EV: Estudo de viabilidade
EP: Estudo preliminar
AP: Anteprojeto
PR: Pré-executivo
EX: Executivo
DT: Detalhamento
LO: Liberado para obra
PL: Projeto legal
AO: atendimento a obra
AB: As built
PB: projeto básico

disciplinas envolvidas

ficha técnica

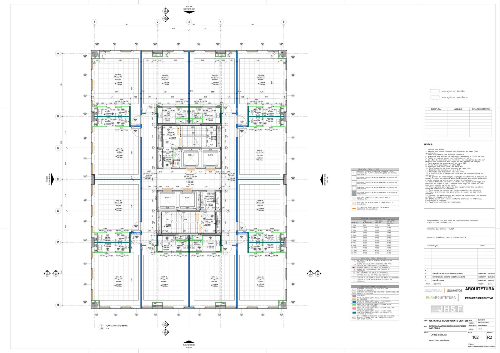
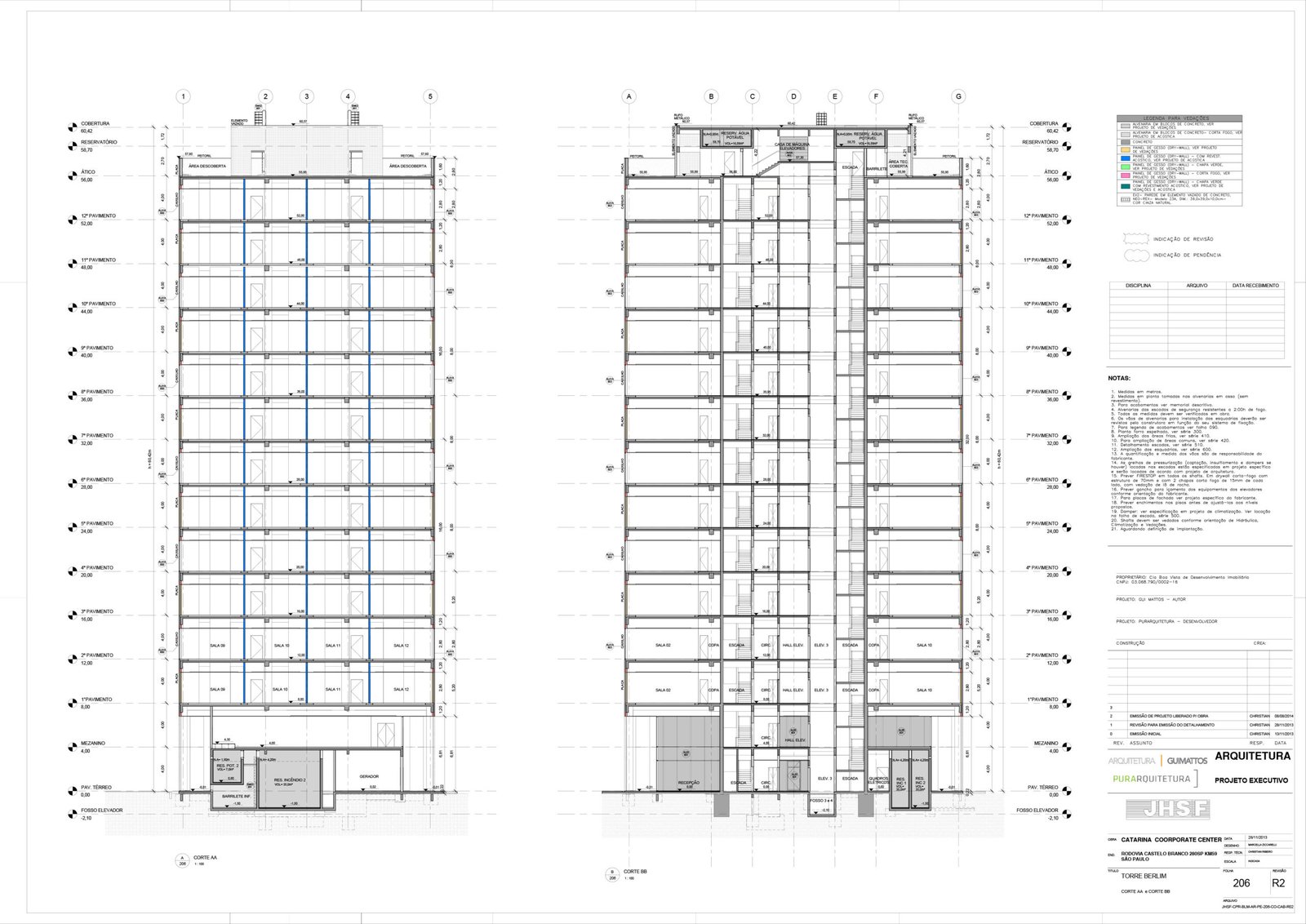
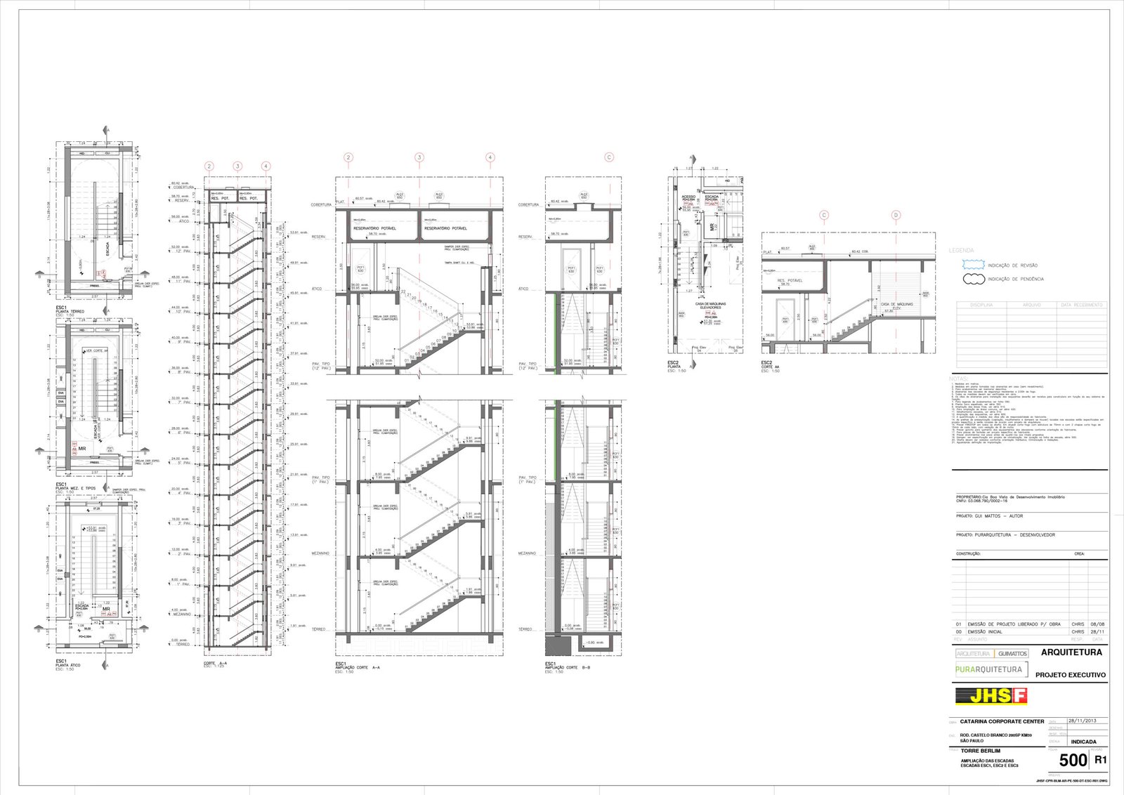
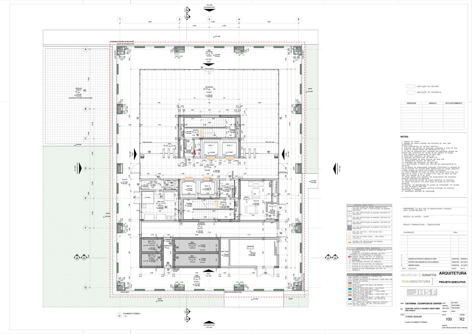
torre berlim
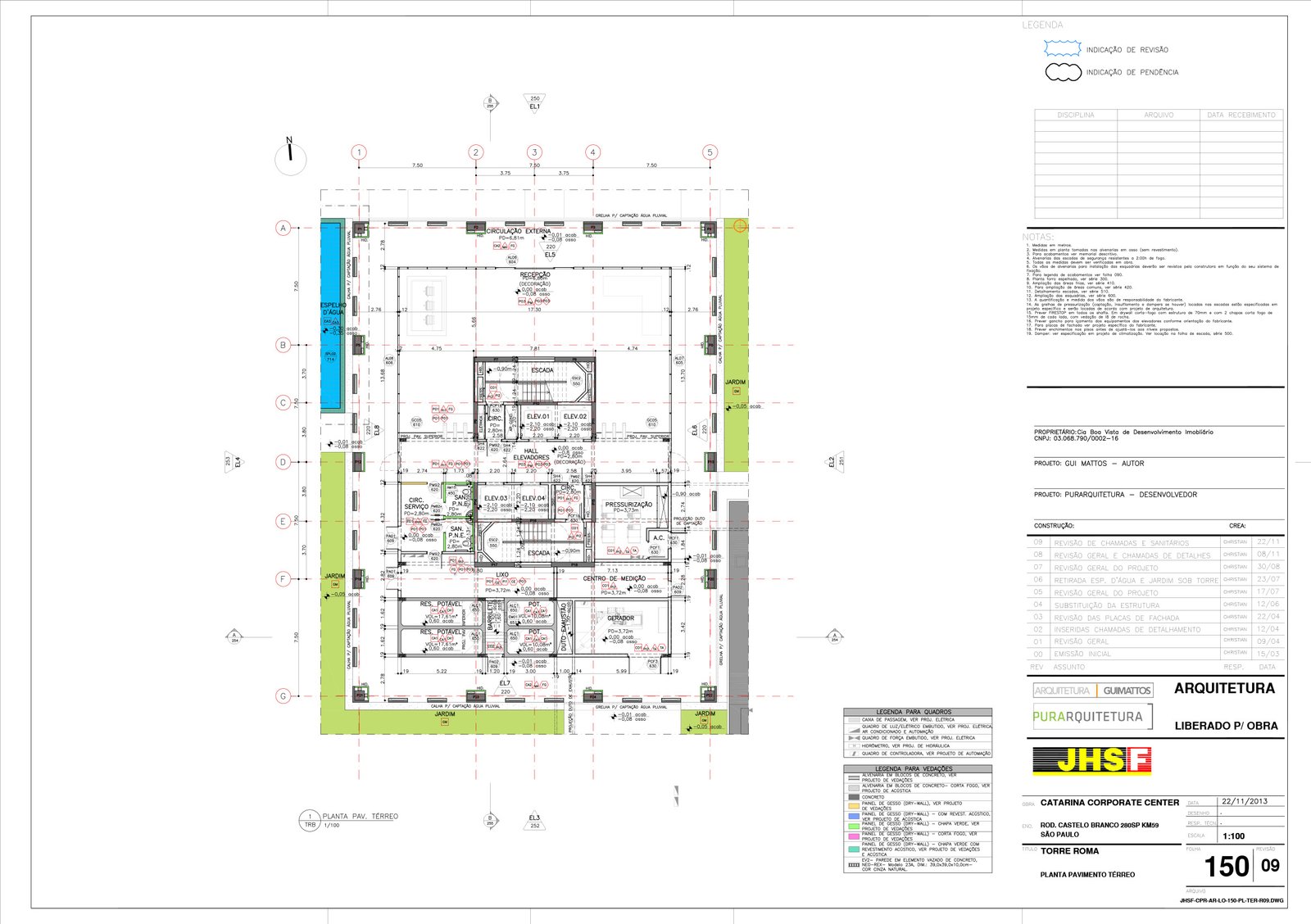
torre roma
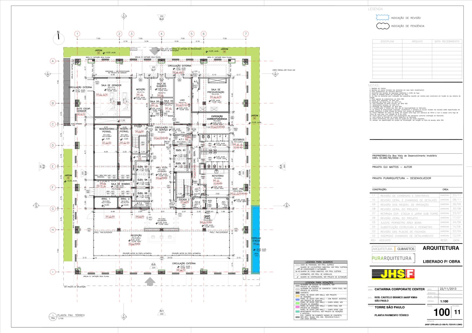
torre são paulo