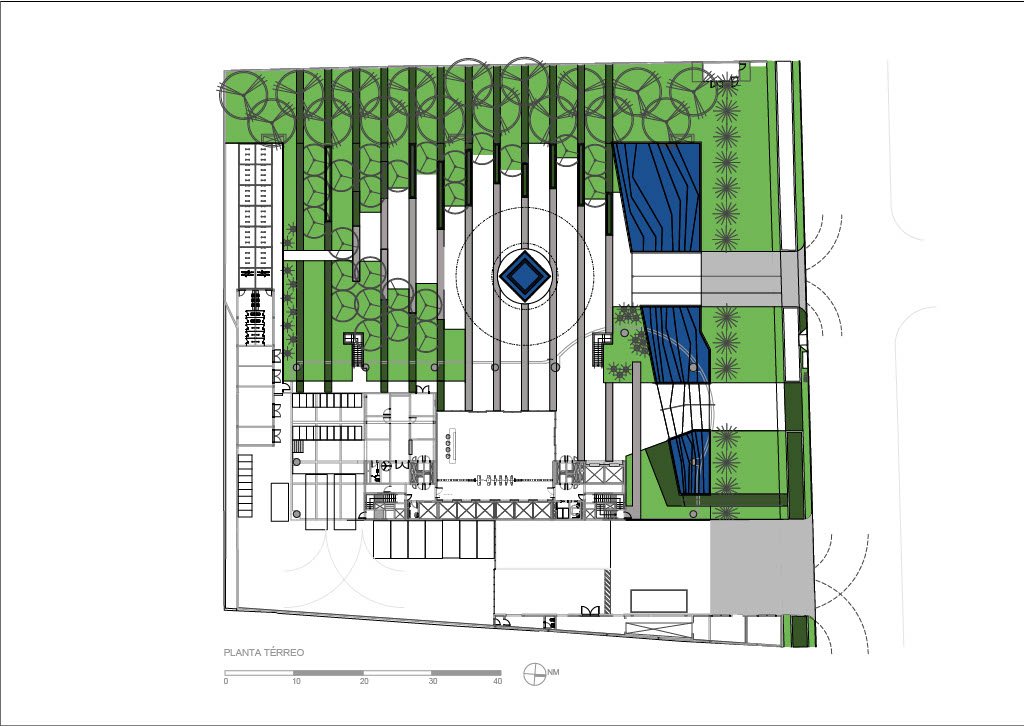
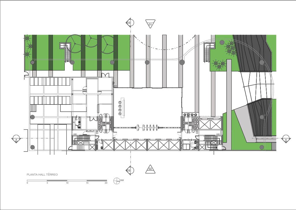
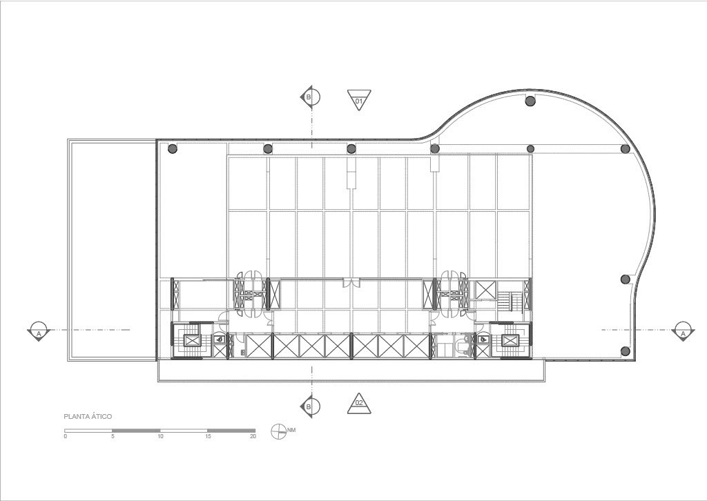
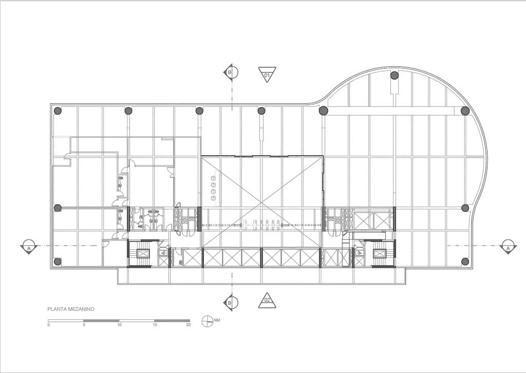
park tower

rocontec
status do projeto
obra finalizada
localização
são paulo, sp
tipologia
institucional
área construída
37000
escopo
COMCOODES

EV: Estudo de viabilidade
AUT: Autoria
DES: Desenvolvimento
COM: Compatibilização
COO: Coordenação

autoria
kv&a arquitetura e anastassiadis arquitetos
incorporação
cbla
construção
rocontec
conclusão do projeto
2019
conclusão da construção
2020

especifidades

– Estudo de adaptação de um projeto que já havia sido concebido

– Padrão AAA

folhas de projetos analisadas

2568

etapas de projeto envolvidas

EXPL

LD: Levantamento de dados
PN: Programa de necessidades
EV: Estudo de viabilidade
EP: Estudo preliminar
AP: Anteprojeto
PR: Pré-executivo
EX: Executivo
DT: Detalhamento
LO: Liberado para obra
PL: Projeto legal
AO: atendimento a obra
AB: As built
PB: projeto básico

disciplinas envolvidas

ficha técnica

acústica
sresnewsky acústica

ancoragem
pb soluções

ar-condicionado
mbs engenharia

automação
bettoni

compatibilização
cecilia levy

consultor legal
celso engenharia

consultoria de acessibilidade
tk engenharia

consultoria anac
dumont

consultoria de ar-condicionado
bueno

consultoria de bombeiro
passoni

consultoria de caixilhos
pcd consultores

consultoria certificação aaa
nre

consultoria certificação leed
ene consultores

consultoria rede distribuição de água
psi engenharia

consultoria de elevadores
service consultoria

consultor de estrutura
carlos leal

consultoria de instalações
gerencial

consultoria óleo diesel
tac engenharia

consultoria de segurança
pinkerton

consultoria de sistemas de instalações prediais
wrs consultoria

dimensionamento espelho cubo'água
aqualink

elétrica / hidráulica / incêndio
australis/procion

estrutura
svs - 11011

estrutura de concreto
sis

fundações
consultrix

impermeabilização
proassp

interiores
anastassiadis arquitetos

irrigação
regatec

laudo de vizinhança
excenge

luminotécnica
mingrone

óleo diesel
was

modelagem bim
engworks

paisagismo
arquitetura da paisagem

pavimentação
monobeton

telefonia de dados
global blue