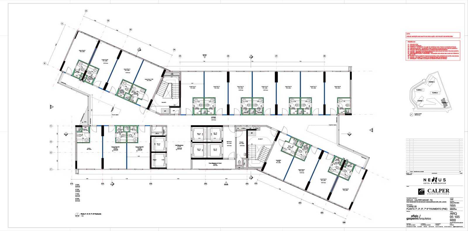
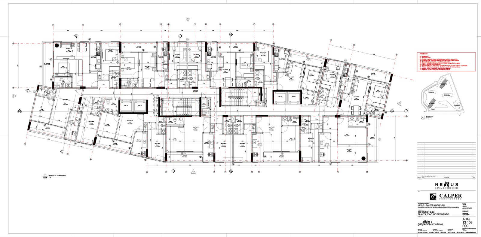
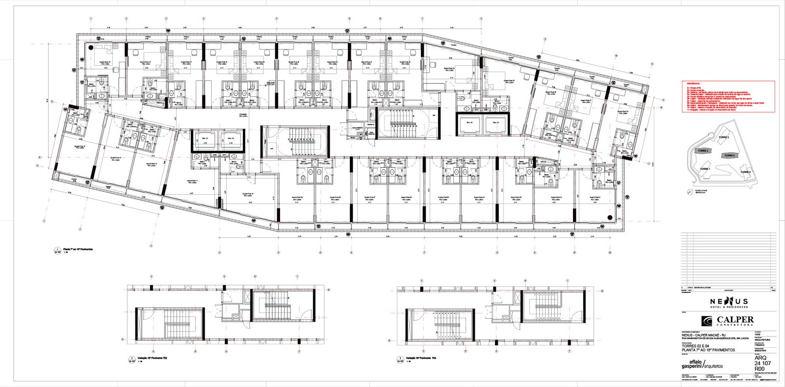
nexus hotel & residences

aflalo/gasperini arquitetos
status do projeto
obra em andamento
localização
são paulo, sp
tipologia
corporativo
área construída
100992
escopo
COMCOODES

EV: Estudo de viabilidade
AUT: Autoria
DES: Desenvolvimento
COM: Compatibilização
COO: Coordenação

autoria
aflalo/gasperini arquitetos
incorporação
nexus
construção
calper
conclusão do projeto
2014
conclusão da construção
-

especifidades

– Projeto em BIM

folhas de projetos analisadas

32

etapas de projeto envolvidas

APEXPBPL

LD: Levantamento de dados
PN: Programa de necessidades
EV: Estudo de viabilidade
EP: Estudo preliminar
AP: Anteprojeto
PR: Pré-executivo
EX: Executivo
DT: Detalhamento
LO: Liberado para obra
PL: Projeto legal
AO: atendimento a obra
AB: As built
PB: projeto básico

disciplinas envolvidas

ficha técnica

acessibilidade
design universal consultoria

acústica
roberto thompsom motta

aquecimento solar e piscina
aqualar water solutions

ar cond. / elétrica / estrutura / estrutura metálica / hidráulica / pressurização / sprinkler / vent. / exaust.
knijnik engenharia integrada

automação
bosco & associados

consultoria alumínio
qmd serviços – projeto e consultoria em alumínio

consultor cálculo estrutural
livio rios

consultoria hotelaria
hotel consulte

consultor incêndio
firetech

cozinha industrial
bechara aziz ibrahim

dry wall
dramm soluções tecnicas em dry wall

elevadores
hertech consultoria

fundação
abs-02 corporate offices

hotelaria
blue tree hotel

impermeabilização
proassp

interiores
ar arquitetura & design

irrigação
hidro sistemas

luminotécnica
lit arquitetura de iluminação

paisagismo
sergio santana planejamento e desenho de paisagem