mistral patriani sbc

patriani
status do projeto
obra em andamento
localização
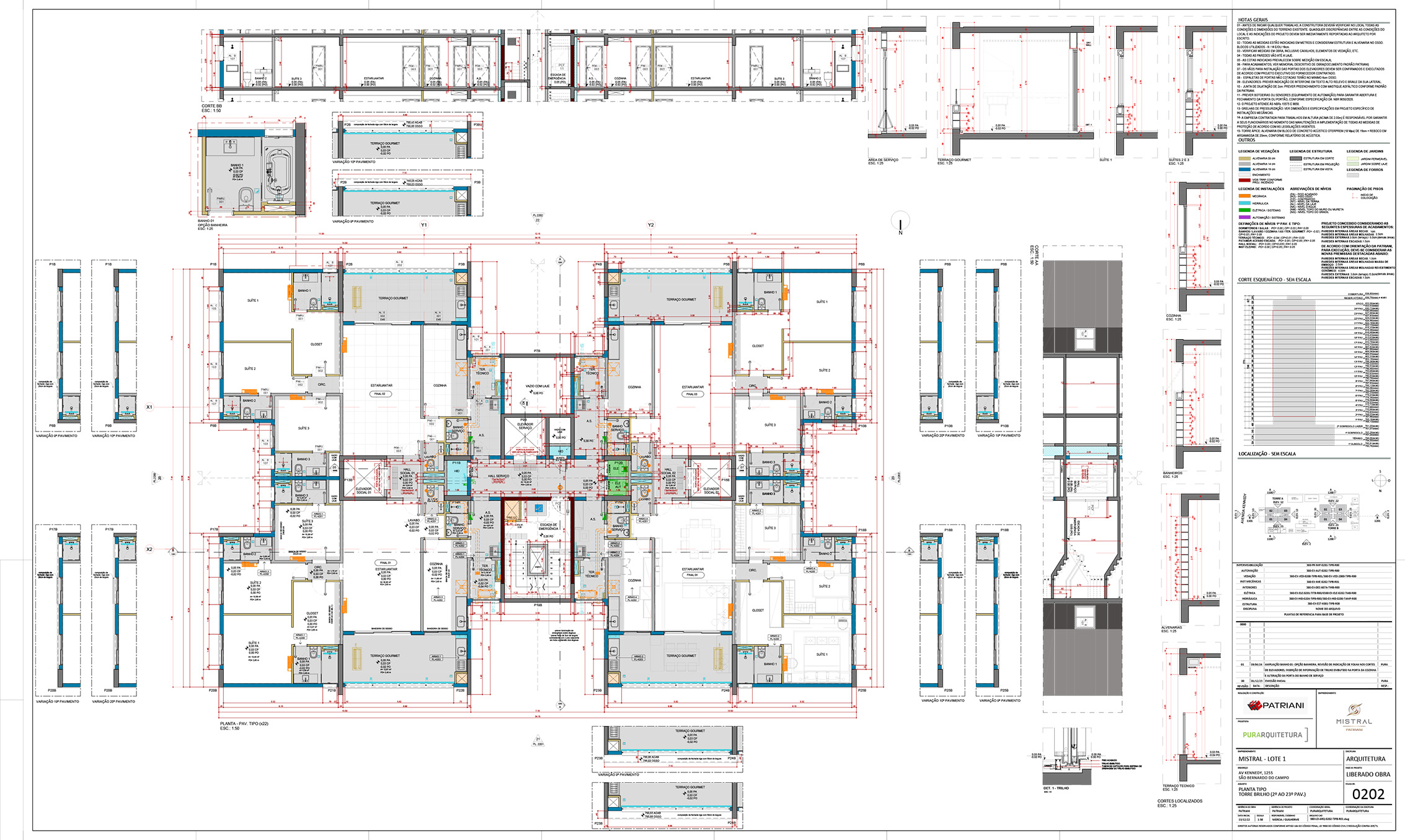
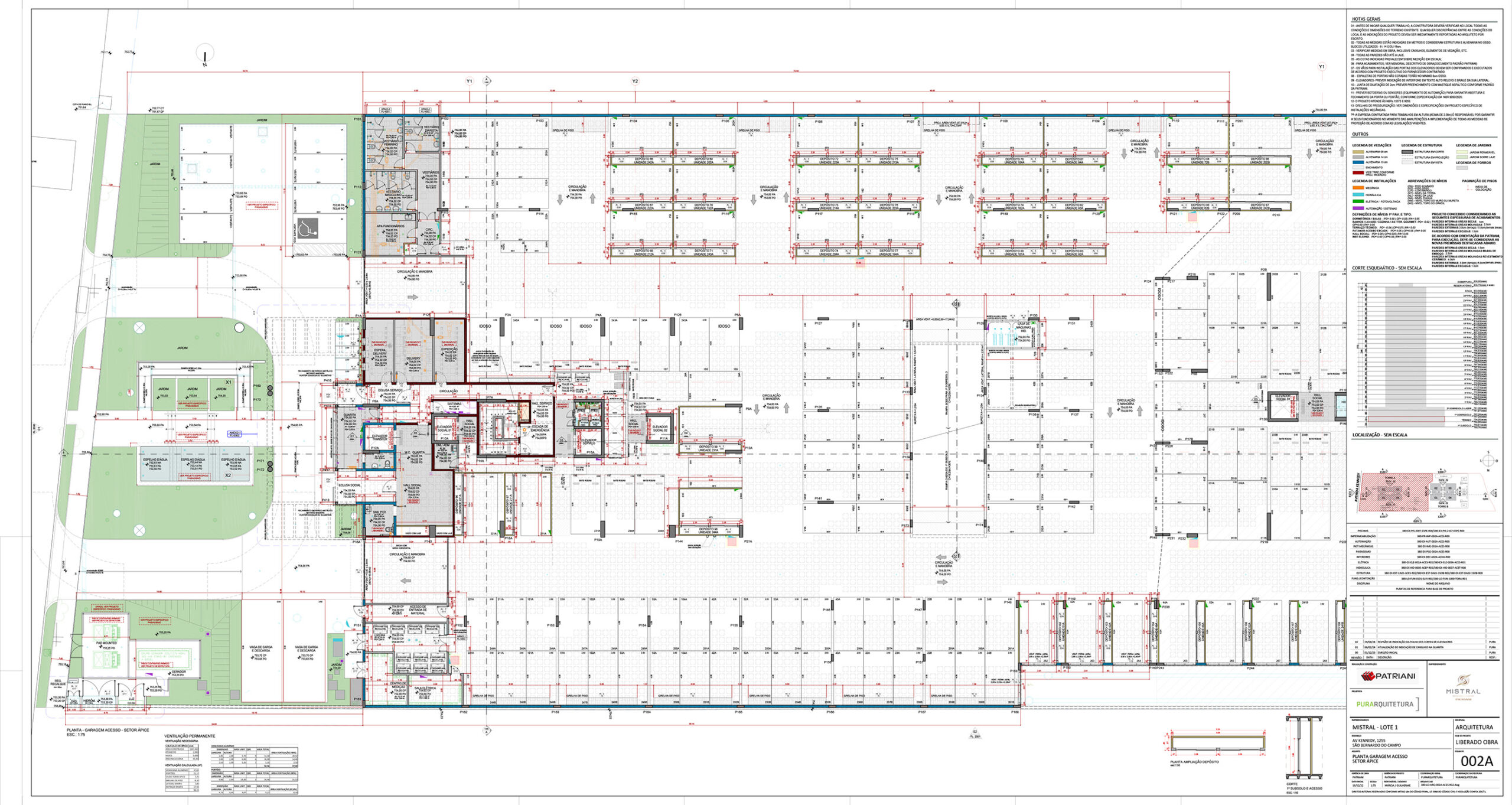
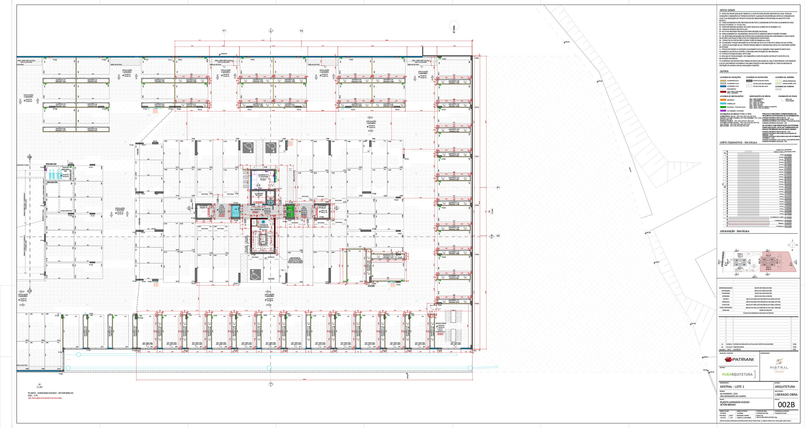
são bernardo, sp
tipologia
residencial
área construída
22436
escopo
COMCOODES

EV: Estudo de viabilidade
AUT: Autoria
DES: Desenvolvimento
COM: Compatibilização
COO: Coordenação

autoria
ianseé arquitetura
incorporação
patriani
construção
patriani
conclusão do projeto
2022
conclusão da construção
-

especifidades

folhas de projetos analisadas

2474

etapas de projeto envolvidas

EXLOPR

LD: Levantamento de dados
PN: Programa de necessidades
EV: Estudo de viabilidade
EP: Estudo preliminar
AP: Anteprojeto
PR: Pré-executivo
EX: Executivo
DT: Detalhamento
LO: Liberado para obra
PL: Projeto legal
AO: atendimento a obra
AB: As built
PB: projeto básico

disciplinas envolvidas

ficha técnica

ancoragem
acesse equipamentos

caixilharia
sergio ciampi
michel gomes

cons. acústica / cons. lumínica / cons. térmica
c e rodrigues acústica

elétrica
hf

estrutura
benvenga & associados engenharia

fundações
ebs

hidráulica / incêndio
netak

interiores
patriani

instalação mecânicas
kac

luminotécnica
construlux

paisagismo
beth miyazaki paisagismo

piscina
kolorines

segurança
prosil

vedações
atomo