meraki patriani

patriani
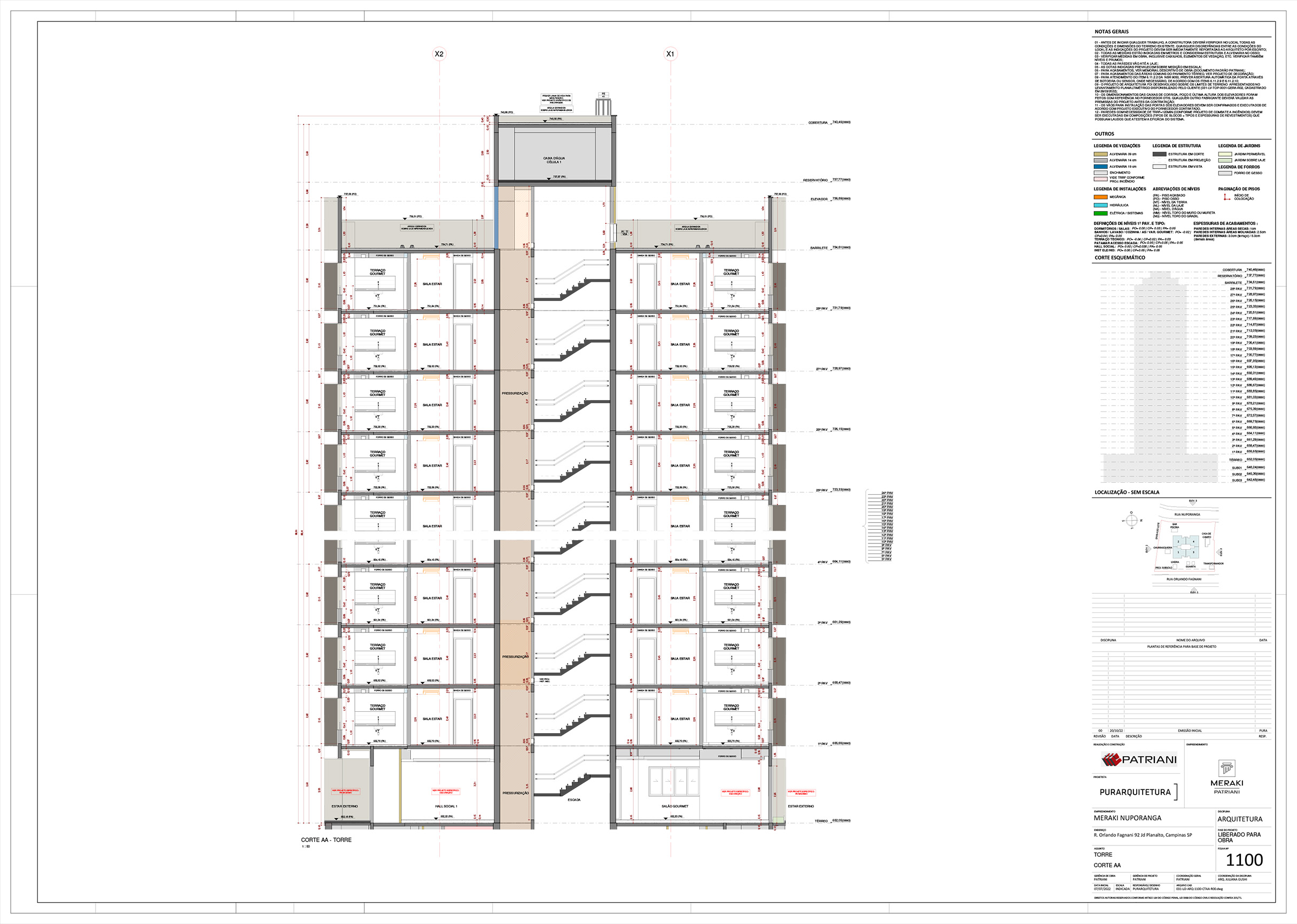
status do projeto
obra finalizada
localização
campinas, sp
tipologia
residencial
área construída
19320
escopo
COMDES

EV: Estudo de viabilidade
AUT: Autoria
DES: Desenvolvimento
COM: Compatibilização
COO: Coordenação

autoria
xok arquitetura
incorporação
patriani
construção
patriani
conclusão do projeto
2022
conclusão da construção
2023

especifidades

– Projeto em BIM

folhas de projetos analisadas

1045

etapas de projeto envolvidas

EXLOPR

LD: Levantamento de dados
PN: Programa de necessidades
EV: Estudo de viabilidade
EP: Estudo preliminar
AP: Anteprojeto
PR: Pré-executivo
EX: Executivo
DT: Detalhamento
LO: Liberado para obra
PL: Projeto legal
AO: atendimento a obra
AB: As built
PB: projeto básico

disciplinas envolvidas

ficha técnica