itaú unibanco | escola politécnica de engenharia de produção

itaú
status do projeto
projeto finalizado
localização
são paulo, sp
tipologia
institucional
área construída
8326
escopo
AUTCOMCOODES

EV: Estudo de viabilidade
AUT: Autoria
DES: Desenvolvimento
COM: Compatibilização
COO: Coordenação

autoria
purarquitetura
incorporação
itaú
construção
-
conclusão do projeto
2013
conclusão da construção
-

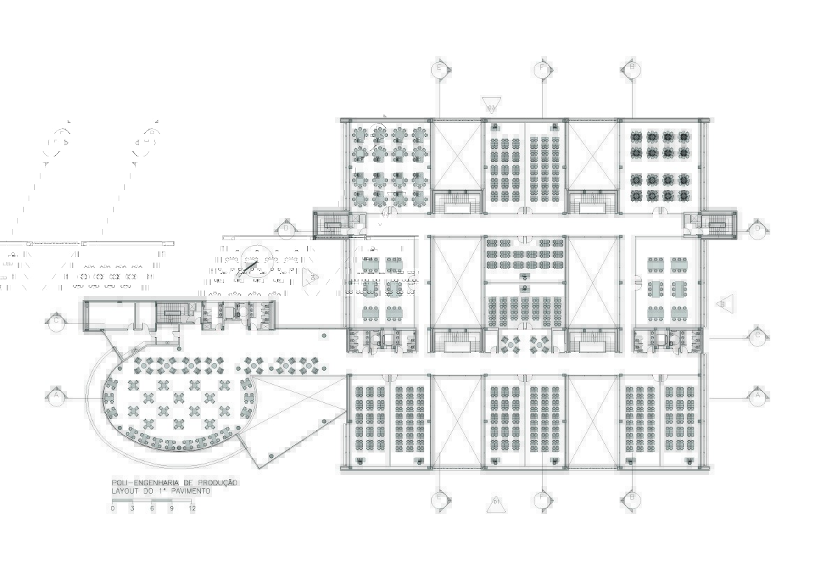
Fomos contratados pelo Itaú para fazer o projeto de reforma e ampliação da escola de engenharia de produção da USP, instalada em três galpões térreos e espalhada por outros edifícios. A solicitação foi para reunir todos seus departamentos em um único conjunto, aproveitando o existente. Após análise criteriosa do local e do funcionamento da escola, projetamos um segundo andar em construções com estruturas independentes a serem vestidas por sobre os três galpões existentes. Isto permite uma logística de obra que atende a demanda de preservação do existente. Ao final, esta solução engloba os três galpões e seus dois pátios internos preservados, formando um único e moderno conjunto. A demanda incluía a construção de um auditório e uma biblioteca, que foram projetadas em um novo bloco com formas arredondadas, que valorizam as novas instalações e situado de maneira a ter um acesso diretamente da escola e outro mais generoso, voltado para a avenida professor Almeida Prado, marcando assim a identidade da escola, sem descaracterizar a integração com os tradicionais edifícios da escola Politécnica.

especifidades

– Reforma e ampliação dos atuais galpões de aulas da escola, constituindo um novo conjunto arquitetônico

folhas de projetos analisadas

310

etapas de projeto envolvidas

APDTEPEVEXLOPLPR

LD: Levantamento de dados
PN: Programa de necessidades
EV: Estudo de viabilidade
EP: Estudo preliminar
AP: Anteprojeto
PR: Pré-executivo
EX: Executivo
DT: Detalhamento
LO: Liberado para obra
PL: Projeto legal
AO: atendimento a obra
AB: As built
PB: projeto básico

disciplinas envolvidas

ficha técnica

ar cond. / pressurização / vent. / exaust.
fundament ar

automação
bettoni automação

elétrica
ma2

estrutura
frança & associados

hidráulica
enprel

fundação
cepollina engenheiros consultores

iluminação
foco e luz

levantamento planialtimétrico
terena topografia informatizada