igreja mórmon

aflalo/gasperini arquitetos
status do projeto
projeto finalizado
localização
são paulo, sp
tipologia
institucional
área construída
3420
escopo
AUTCOMDES

EV: Estudo de viabilidade
AUT: Autoria
DES: Desenvolvimento
COM: Compatibilização
COO: Coordenação

autoria
purarquitetura
incorporação
even
construção
even
conclusão do projeto
2025
conclusão da construção
-

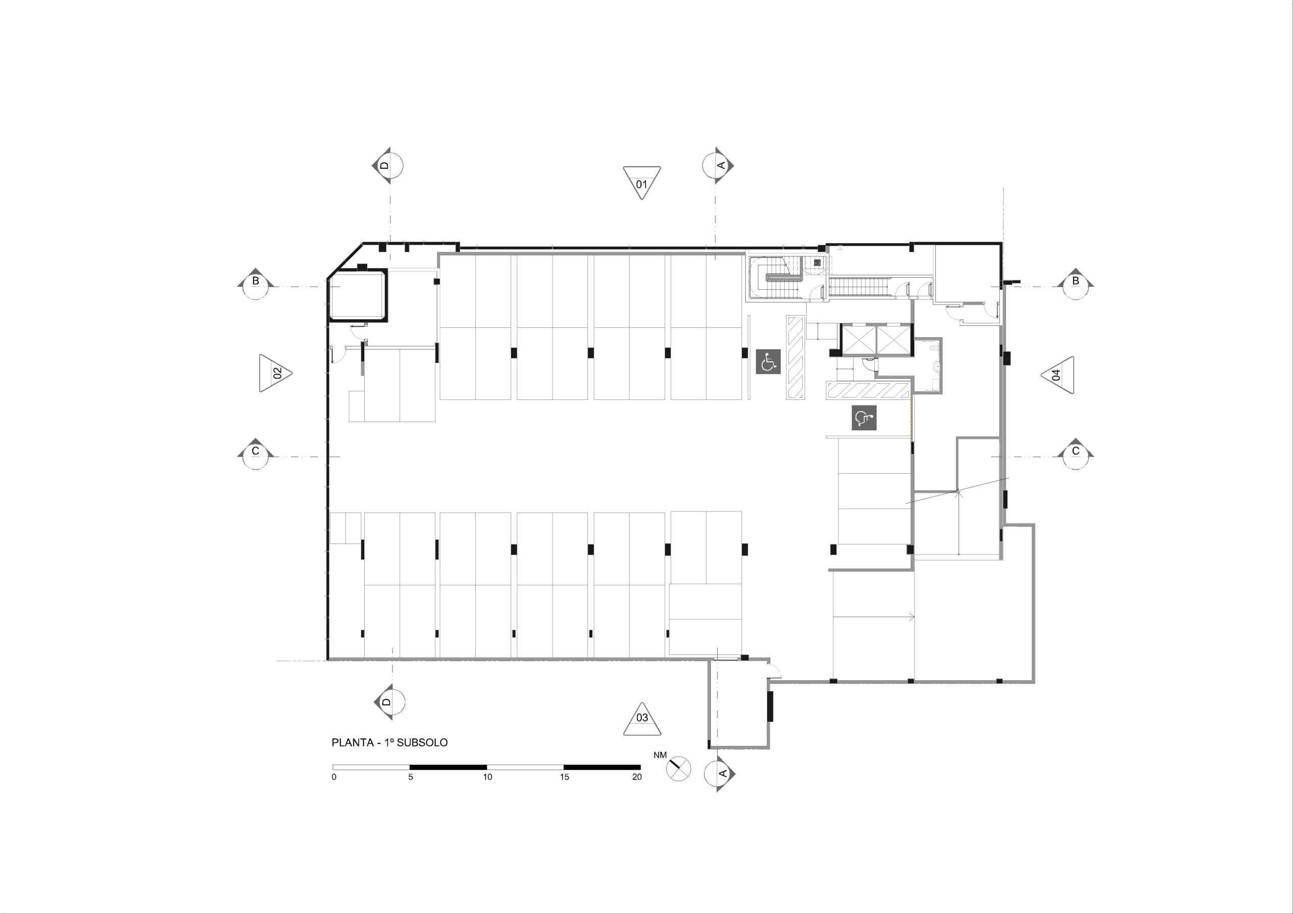
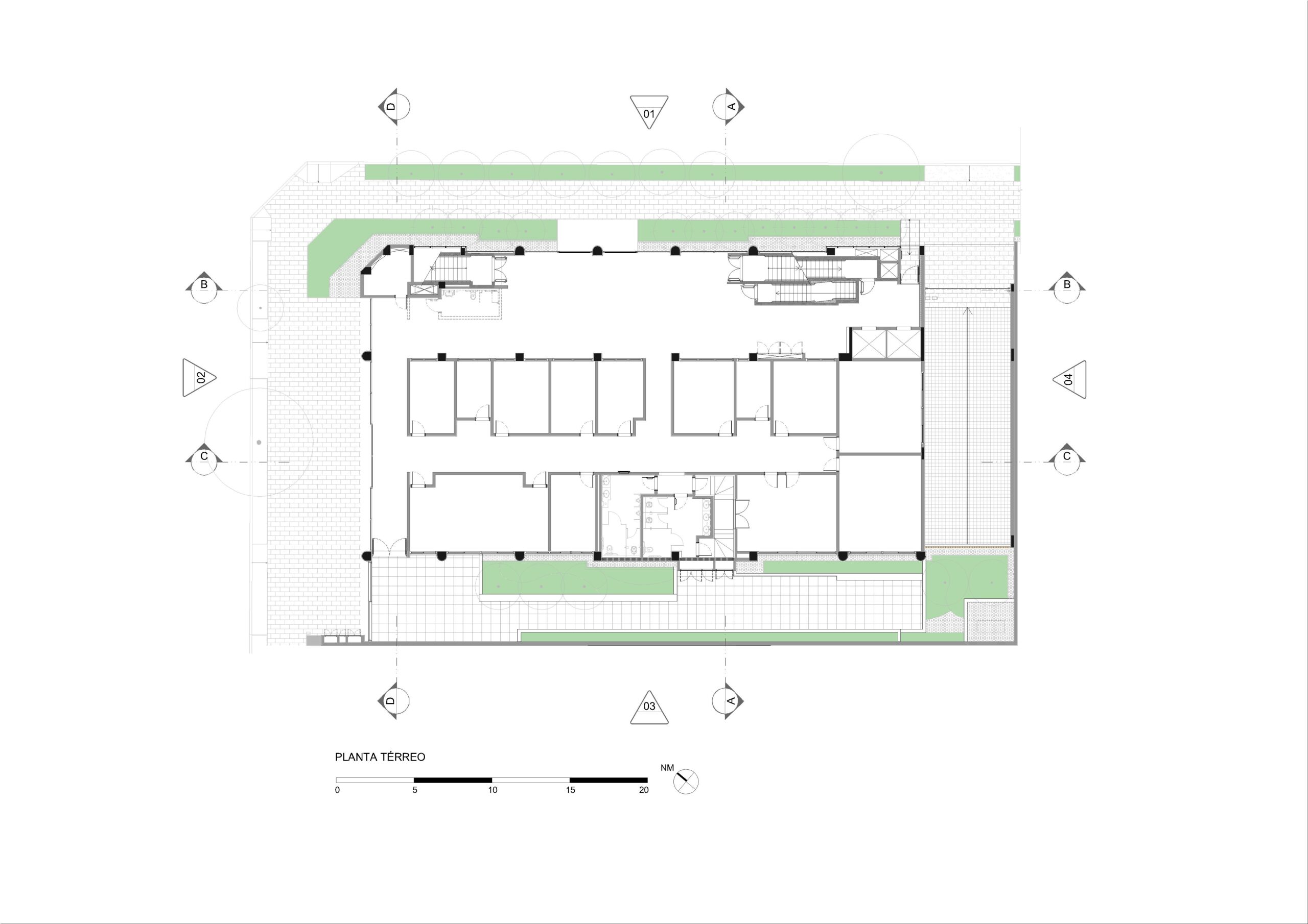
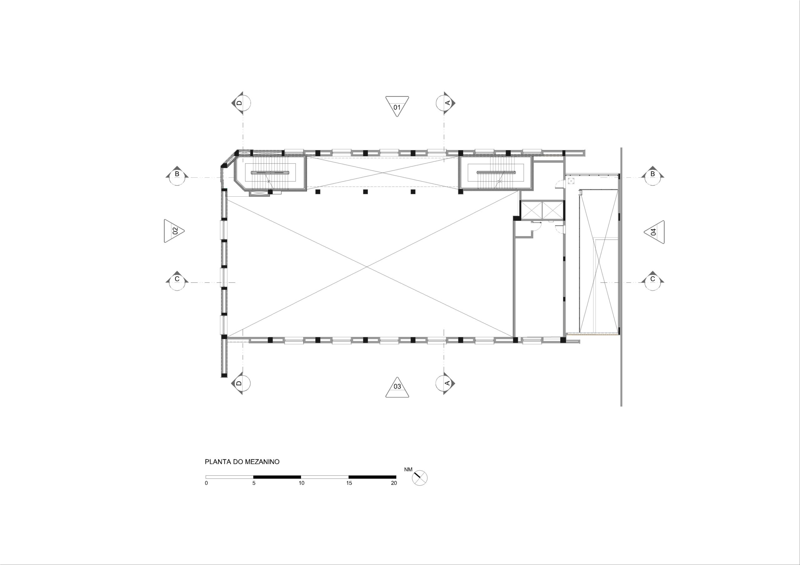
Dentro do grande empreendimento Sabiá da EVEN, no Bairro de Moema, fomos convidados pela A/G arquitetos para desenvolver o projeto de uma nova Capela, para A Igreja de Jesus Cristo dos Santos dos últimos dias. Dada as características do bairro foi permitida que a concepção arquitetônica fosse moderna, diferente do padrão tradicional das capelas da Igreja. Por outro lado, mesmo sendo parte integrante do moderno e grande complexo comercial e residencial da Even, sua arquitetura deveria se compor, porém com sua identidade própria. Desse modo desenvolvemos um edifício a partir de estudo de unidades com características similares nos EUA. No entanto atendemos a regida distribuição em todos os detalhes, utilizadas pela cultura da Igreja, aqui no Brasil. A diferenciação acontece nos ambientes dos halls de ligações e fundamentalmente na concepção do seu volume exterior, na composição dos desenhos das fachadas, que marcarão sua presença no Bairro.

especifidades

– O uso religioso trouxe particularidades ao projeto

etapas de projeto envolvidas

EX

LD: Levantamento de dados
PN: Programa de necessidades
EV: Estudo de viabilidade
EP: Estudo preliminar
AP: Anteprojeto
PR: Pré-executivo
EX: Executivo
DT: Detalhamento
LO: Liberado para obra
PL: Projeto legal
AO: atendimento a obra
AB: As built
PB: projeto básico

ficha técnica