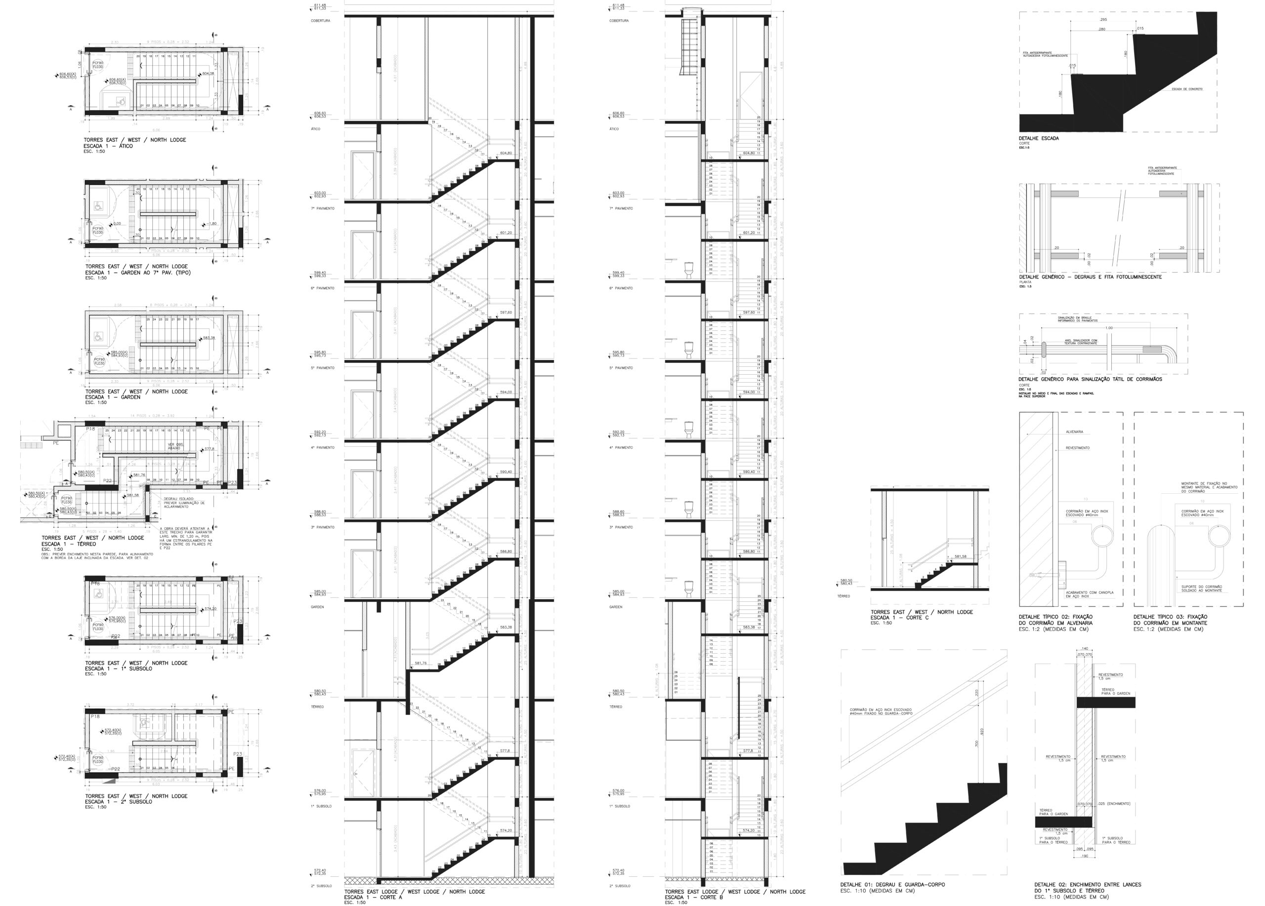
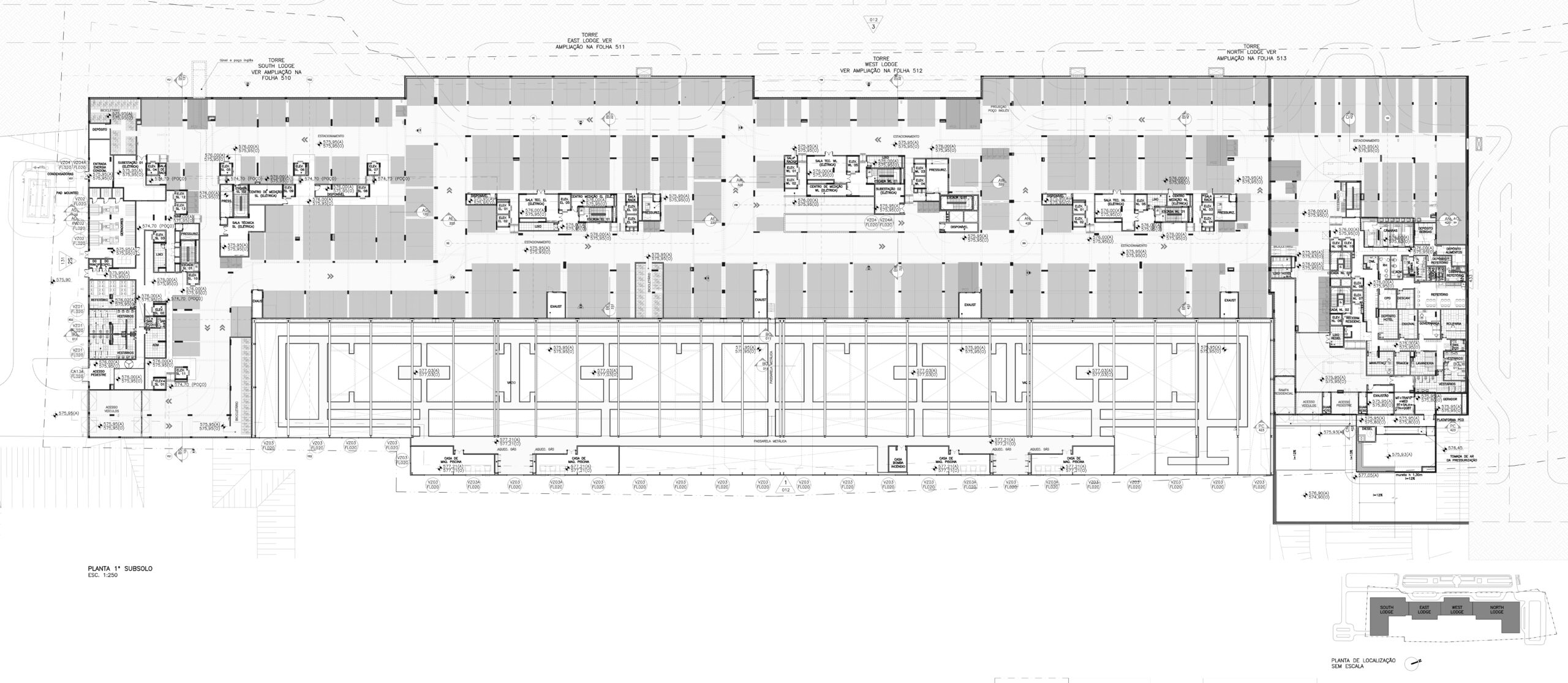
grand lodge

jhsf
status do projeto
projeto finalizado, obra em andamento
localização
porto feliz, sp
tipologia
residencial
área construída
80254
escopo
COMDES

EV: Estudo de viabilidade
AUT: Autoria
DES: Desenvolvimento
COM: Compatibilização
COO: Coordenação

autoria
psa arquitetura
incorporação
jhsf
construção
jhsf
conclusão do projeto
2025
conclusão da construção
-

especifidades

– Padrão AAA

– Grande porte

folhas de projetos analisadas

10060

etapas de projeto envolvidas

APDTEPEXLOPR

LD: Levantamento de dados
PN: Programa de necessidades
EV: Estudo de viabilidade
EP: Estudo preliminar
AP: Anteprojeto
PR: Pré-executivo
EX: Executivo
DT: Detalhamento
LO: Liberado para obra
PL: Projeto legal
AO: atendimento a obra
AB: As built
PB: projeto básico

disciplinas envolvidas

ficha técnica