eaesp | r. prof. picarolo

fundação getúlio vargas
status do projeto
obra finalizada
localização
são paulo, sp
tipologia
educacional
área construída
9353
escopo
AUTCOMCOODES

EV: Estudo de viabilidade
AUT: Autoria
DES: Desenvolvimento
COM: Compatibilização
COO: Coordenação

autoria
purarquitetura e cupertino arq.
incorporação
fundação getúlio vargas
construção
mpd
conclusão do projeto
2024
conclusão da construção
2024

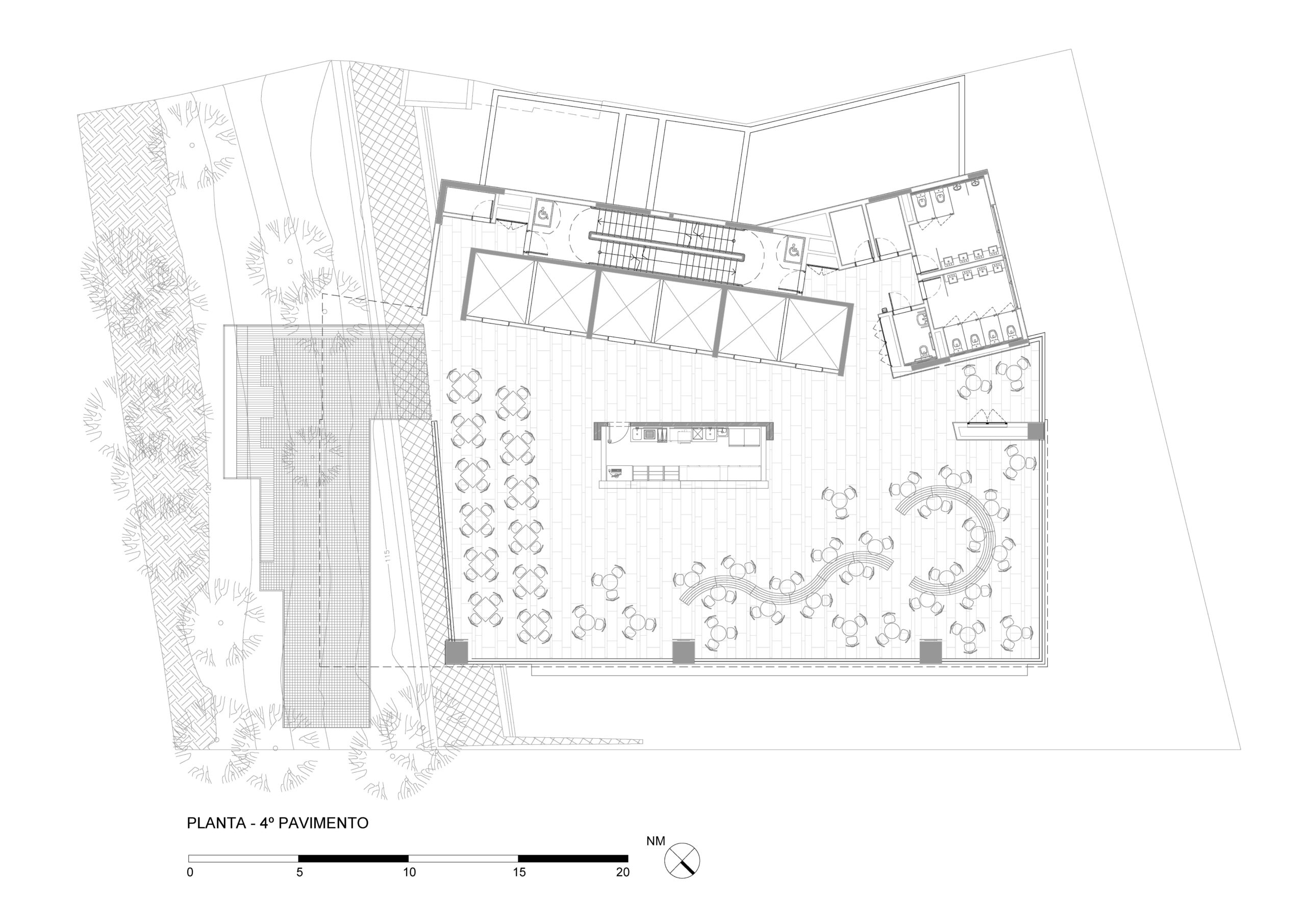
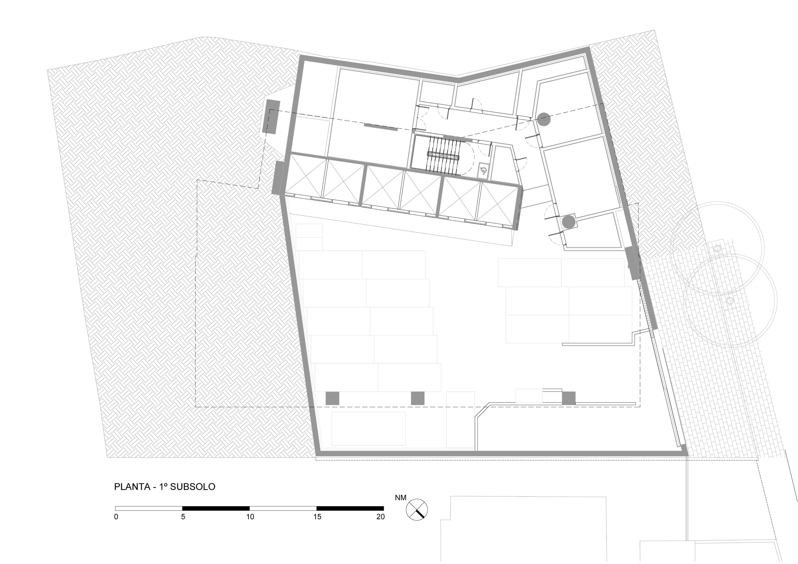
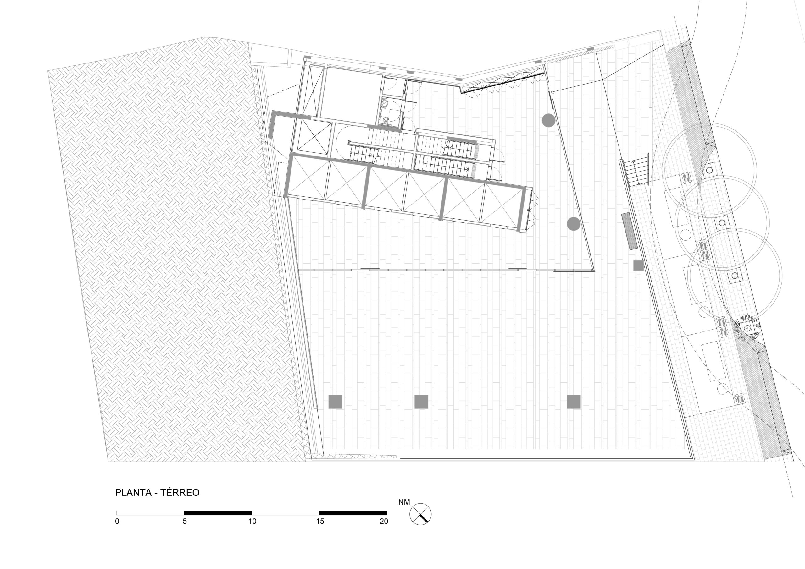
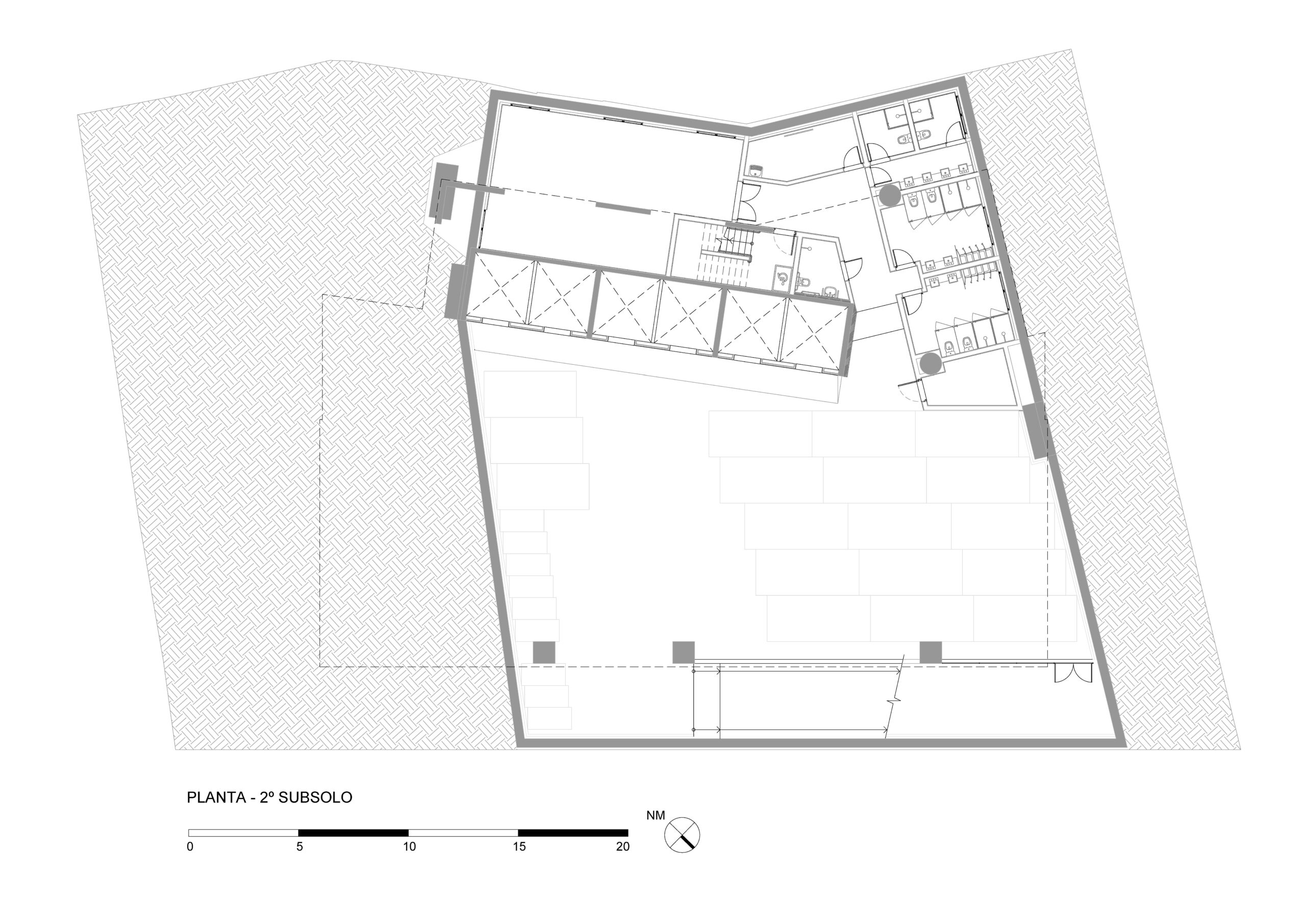
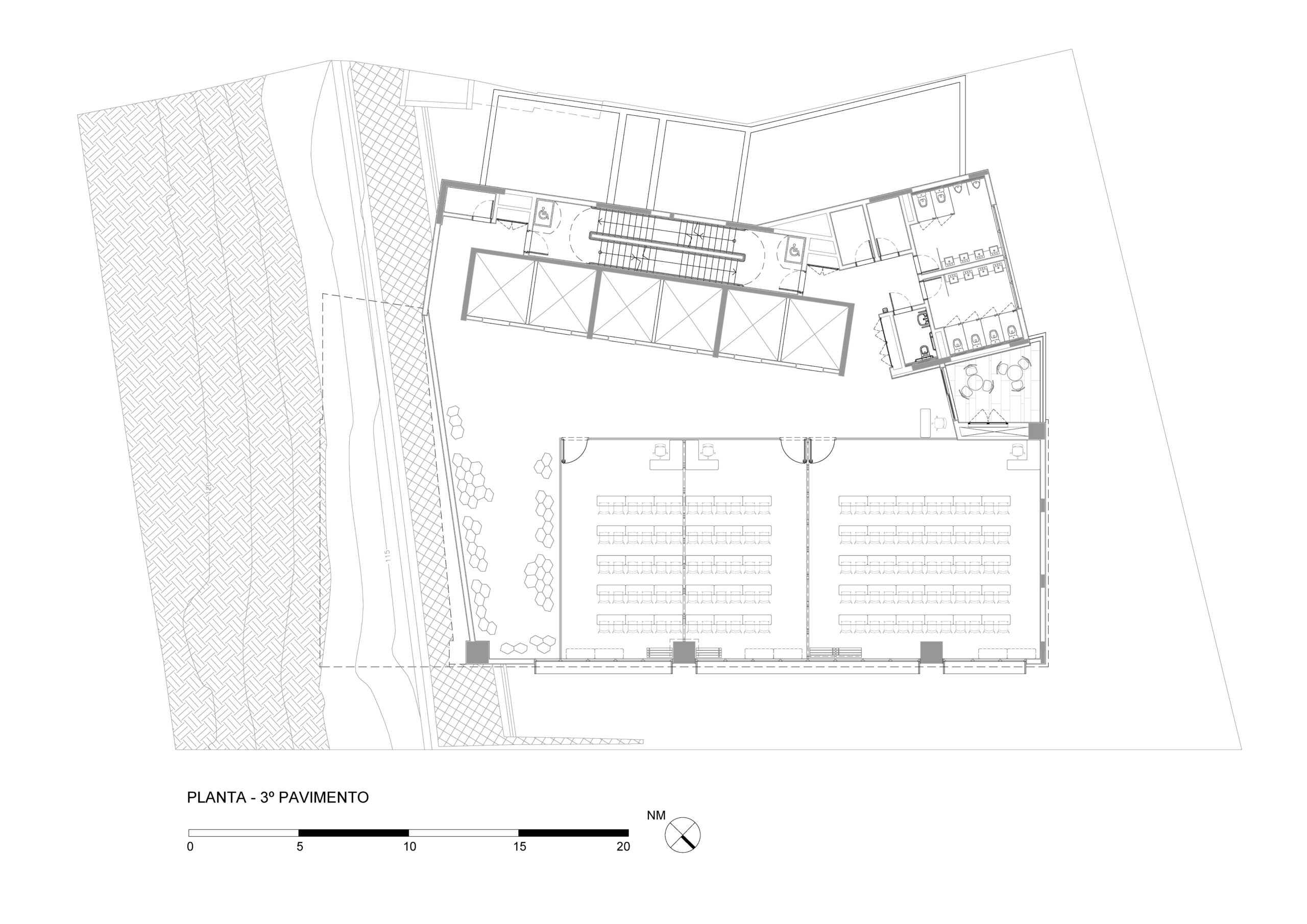
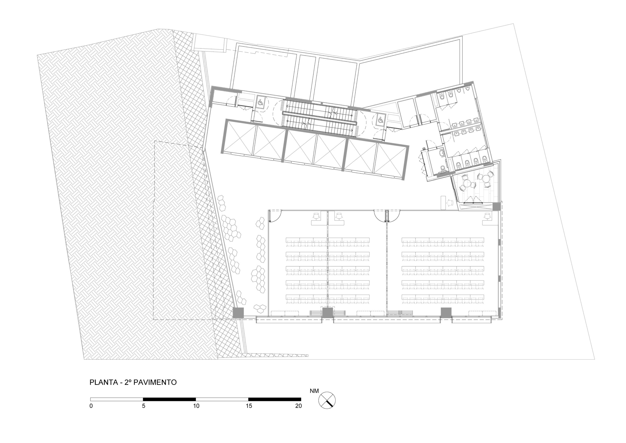
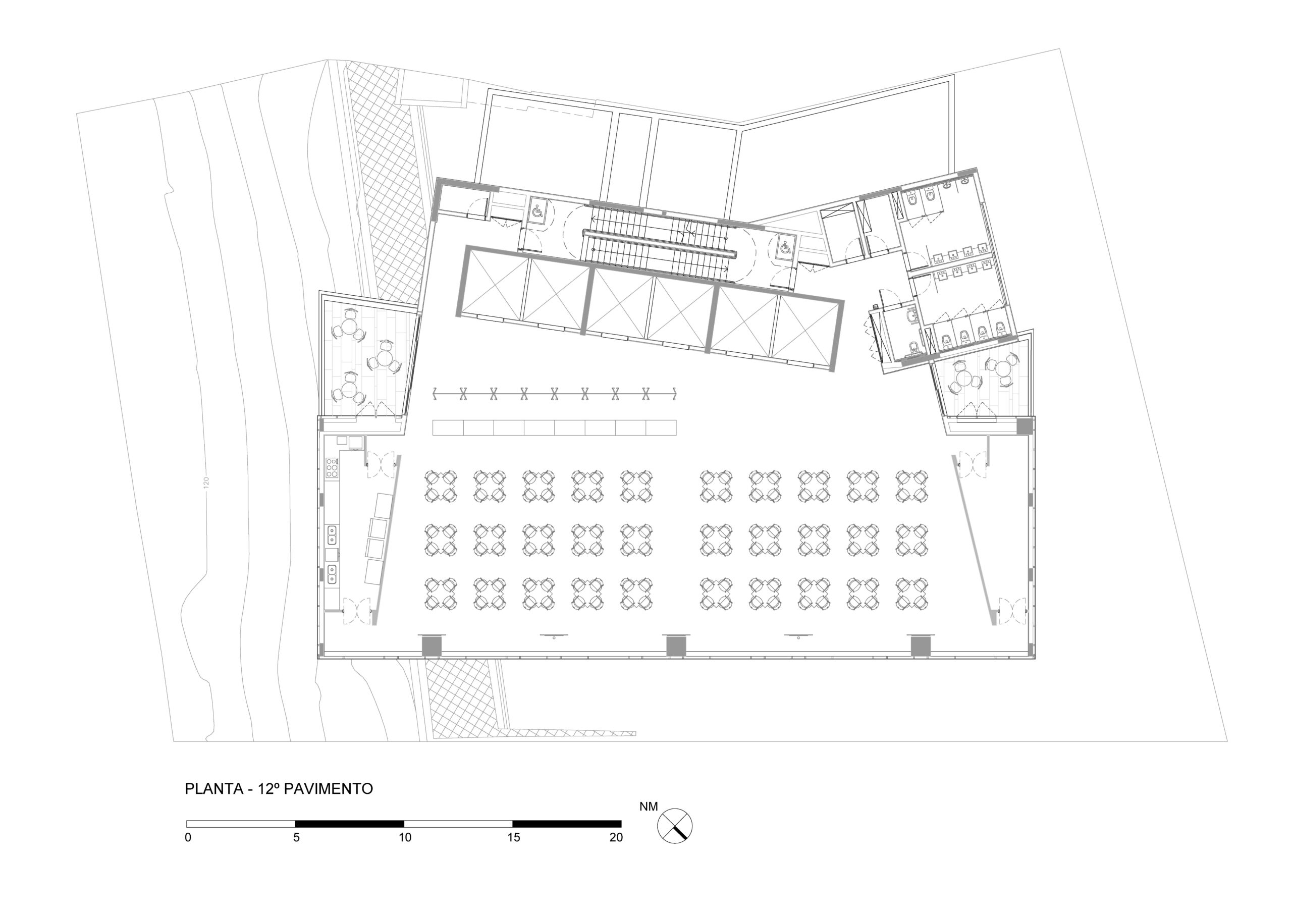
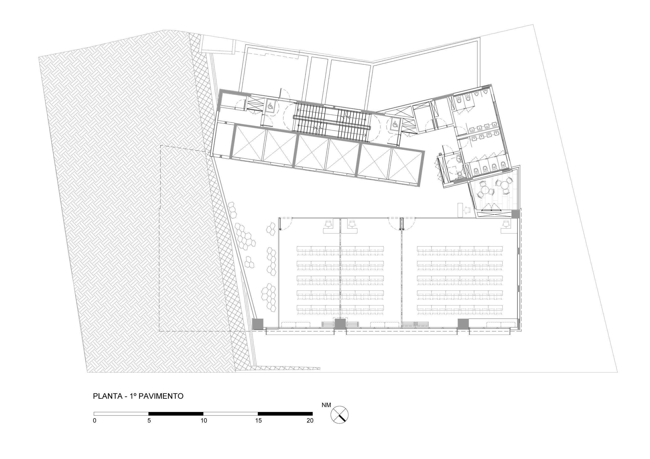
Para modernizar as instalações da Escola de Administração, a FGV solicitou o projeto de um edifício em um terreno bastante restrito, localizado ao lado da biblioteca. O desafio começou com um desnível de aproximadamente 30 metros em relação aos vizinhos de fundo, contido por um talude e um grande muro de contenção, o que reduziu a área útil a apenas dois terços do terreno plano.
A estrutura vertical da torre foi implantada nesse espaço limitado, mas para atender à demanda de quase 2.000 alunos, grande parte do volume avançou em balanço sobre o talude existente.
Como a maioria dos pavimentos abriga três salas para 60 alunos cada — totalizando cerca de 180 pessoas por andar. Para garantir circulação eficiente e segura, foram projetados seis elevadores com capacidade para 32 pessoas cada, compatíveis com o fluxo simultâneo previsto entre os andares.
O desenho da torre buscou integrar-se à identidade dos volumes existentes, incorporando elementos contemporâneos que reforçam a linguagem arquitetônica da instituição.

especifidades

– Topografia com desnível de 30 metros contido por um talude e contenções atirantadas

– Escavação de dois subsolos abaixo do desnível

– Salões de ensino do edifício avançam sobre o desnível, forçando um corte no edifício e impactando diretamente sua solução estrutural

– 6 elevadores de 32 pessoas atendem a complexa demanda de circulação da escola de administração

– Solução plástica do edifício compõe com os demais existentes da FGV

folhas de projetos analisadas

1847

etapas de projeto envolvidas

APEPEXLOPL

LD: Levantamento de dados
PN: Programa de necessidades
EV: Estudo de viabilidade
EP: Estudo preliminar
AP: Anteprojeto
PR: Pré-executivo
EX: Executivo
DT: Detalhamento
LO: Liberado para obra
PL: Projeto legal
AO: atendimento a obra
AB: As built
PB: projeto básico

disciplinas envolvidas

ficha técnica

acústica
harmonia acustica

ancoragem
fhx soluções

ar-condicionado
teknika

automação predial
bettoni

caixilharia
crescencio petrucci consultoria

consultor combate à incêndio
passoni

consultor projeto legal
h2 arquitetura

consultor verificação estrutura
bc engenharia

consultor transporte vertical
empro

elétrica / hidráulica
mha

estrutura
frança e associados

fundações
consultrix

impermeabilização
imper consultores

interiores
ddm

levantamento planiáltimétrico
relevo topografia

luminotécnica
studio ix

paisagismo
benedito abbud

sondagem
spt sondagens