eldorado business tower

aflalo/gasperini arquitetos
status do projeto
obra finalizada
localização
são paulo, sp
tipologia
corporativo
área construída
145000
escopo
COMCOODES

EV: Estudo de viabilidade
AUT: Autoria
DES: Desenvolvimento
COM: Compatibilização
COO: Coordenação

autoria
aflalo/gasperini arquitetos
incorporação
gafisa
construção
gafisa
conclusão do projeto
2003
conclusão da construção
2007

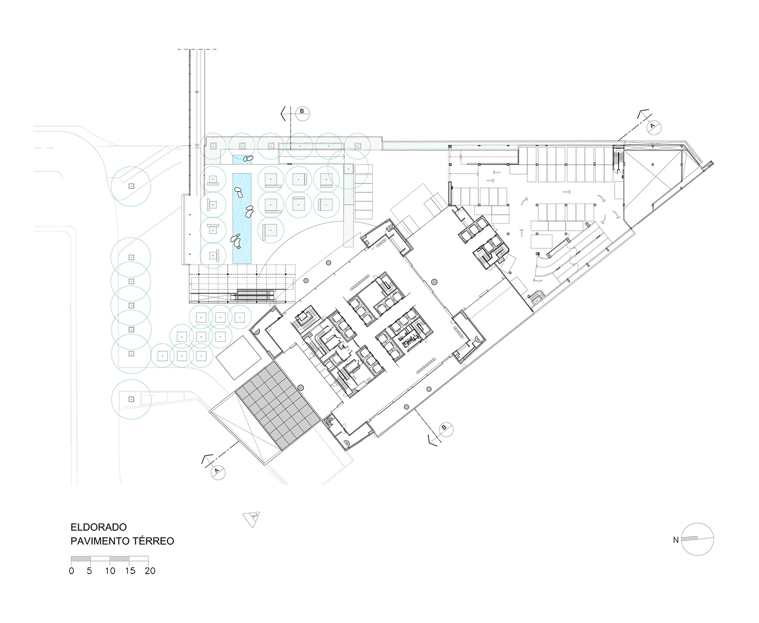
A partir da operação Faria Lima, em 2001, a Eldorado Tower marcou o início do mercado de lajes corporativas de 2.000 m² em São Paulo, com foco em eficiência energética. O objetivo da Gafisa era criar um edifício que permanecesse atual mesmo após duas décadas, algo comprovado hoje e também pela conquista da primeira Certificação LEED Platinum no Brasil.

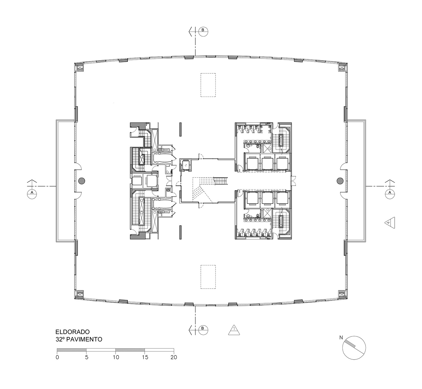
Tendo como base no estudo sintético aprovado e imagens em 3D, o escritório Aflalo/Gasperini nos convidou para em parceria desenvolver o projeto, coordenar e compatibilizar todas as especialidades. As soluções adotadas foram extremamente inovadoras para a época: lajes protendidas maciças sem vigas, a primeira aplicação de ar-condicionado em sistema split para edifícios desse porte com condensadoras a 150 metros de distância, e fachadas com quadros unitizados de alumínio e vidro, montados industrialmente nos subsolos da torre e fixados no perímetro das lajes, formando um conjunto único de caixilharia. O projeto também incorporou sistemas de reaproveitamento de energia e controle de insolação por meio de vidros de alta performance, que bloqueiam calor e radiação solar sem perder transparência tanto de dia quanto à noite, garantindo assim luminosidade e conforto térmico. Além disso, um sistema de automação integrado controla a iluminação artificial e as cortinas conforme a variação da luz natural.

especifidades

– Padrão AAA

– Certificado LEED Platinum, sendo o primeiro edifício nacional a receber um Certificado LEED

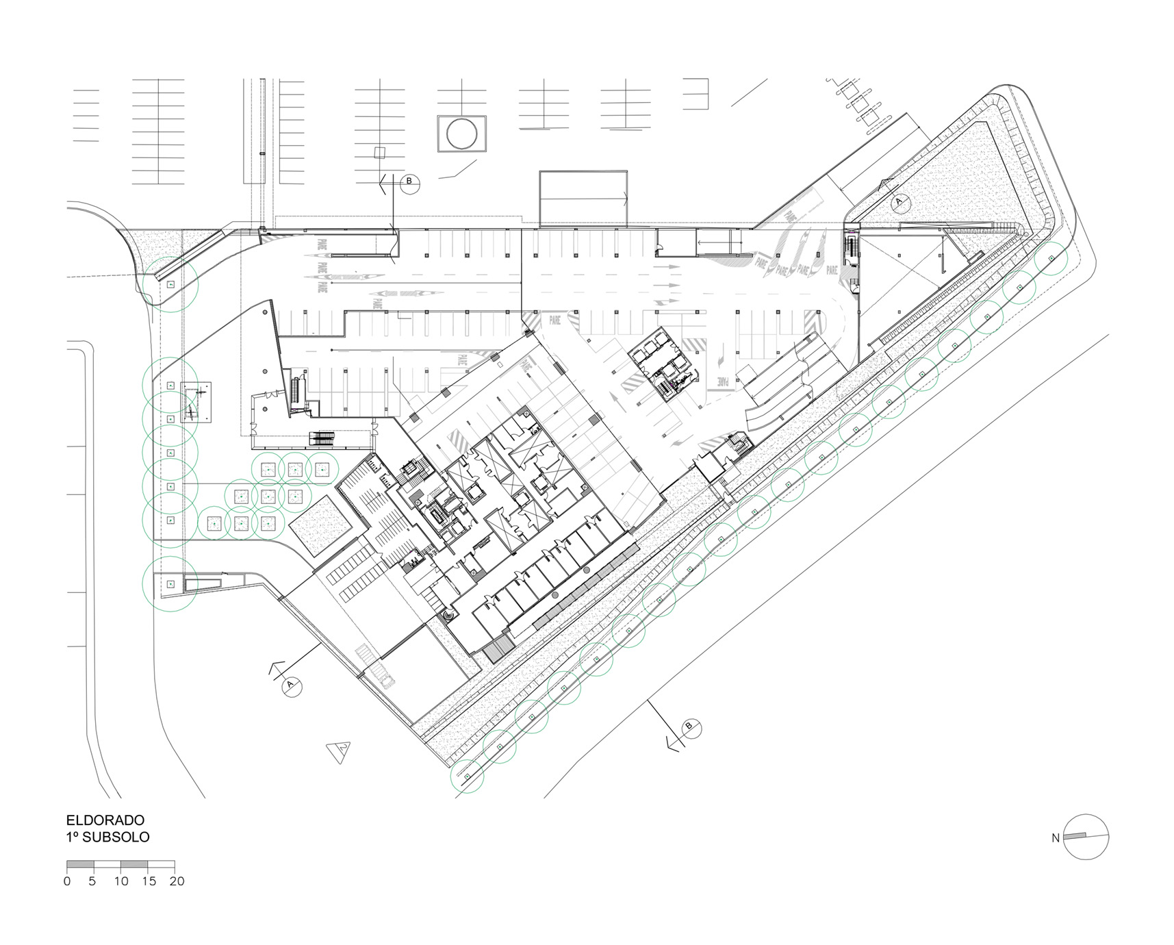
– Túnel de conexão sob a rua, entre os estacionamentos da torre com o restante do complexo

folhas de projetos analisadas

4391

etapas de projeto envolvidas

APDTEPEXLOPLPR

LD: Levantamento de dados
PN: Programa de necessidades
EV: Estudo de viabilidade
EP: Estudo preliminar
AP: Anteprojeto
PR: Pré-executivo
EX: Executivo
DT: Detalhamento
LO: Liberado para obra
PL: Projeto legal
AO: atendimento a obra
AB: As built
PB: projeto básico

disciplinas envolvidas

ficha técnica

acústico
akkerman projetos acústicos

ar-condicionado
thermoplan

automação predial
soluções inteligentes integradas

caixilharia
mário newton
schüco
adalume
rcm estruturas metálicas

combate a incêndio
ofos engenharia

consultor ar-condicionado
oswaldo bueno

consultor de instalações hidráulicas
moysés zimelmam

consultor de instalações elétrica
josé luiz martini

consultor de granito
dgg

elevadores
empro – engenharia de produção

estacionamento
ritti estacionamentos

estrutura
frança e associados
cyrillo jr. projetos de engenharia

estrutura metálica
newton nadruz
rcm estruturas metálicas

fundações
consultrix

instalações
thermoplan
enit

impermeabilização
proassp assessoria e projetos

luminotécnica
franco & fortes
studio ix

paisagismo
benedito abbud

topografia
topógrafo sérgio frazin

tráfego
michel sola consultoria