edsp | r. dr. plínio barreto

fundação getúlio vargas
status do projeto
obra finalizada
localização
são paulo, sp
tipologia
educacional
área construída
23358
escopo
AUTCOMCOODES

EV: Estudo de viabilidade
AUT: Autoria
DES: Desenvolvimento
COM: Compatibilização
COO: Coordenação

autoria
purarquitetura e cupertino arq.
incorporação
fundação getúlio vargas
construção
informov
conclusão do projeto
2024
conclusão da construção
2024

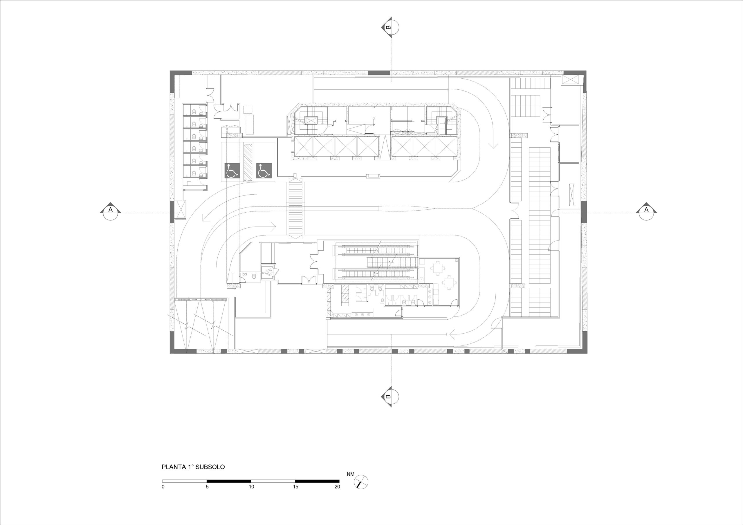
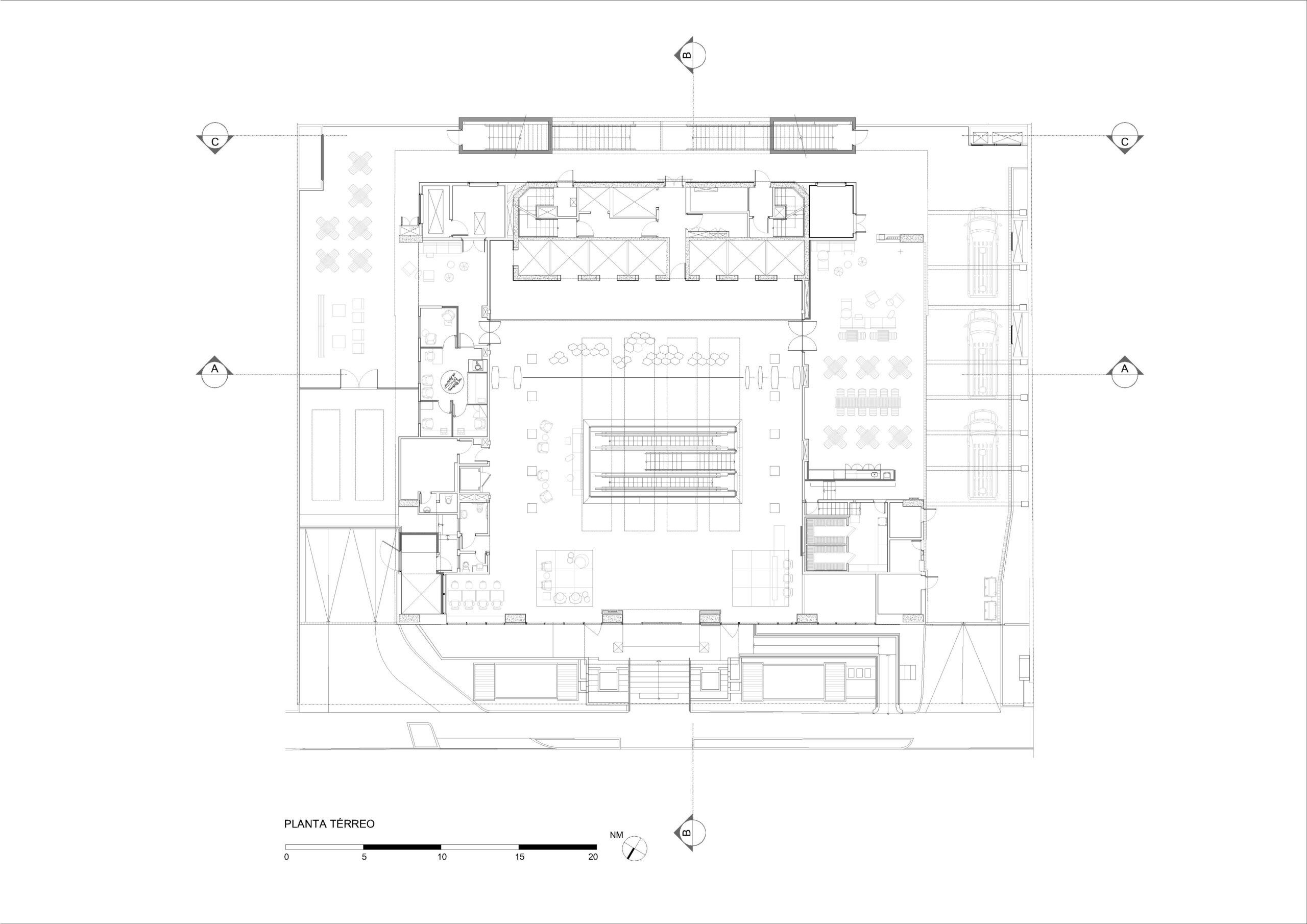
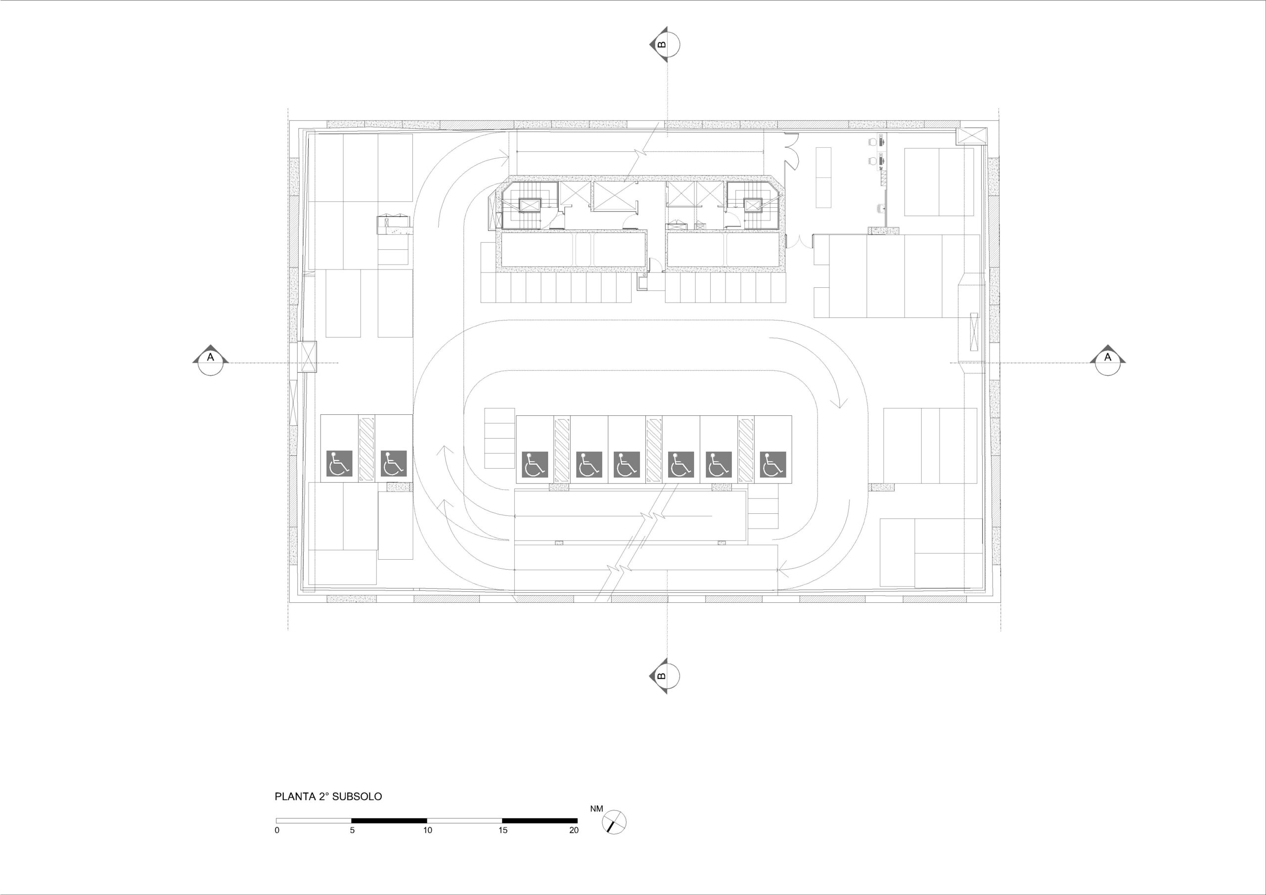
Durante a construção do nosso projeto da Faculdade de Administração, na rua Picarolo, a FGV nos contratou para implantar as Faculdades de Direito e de Economia, no edifício alugado na Rua Plinio Barreto, marginal a av. Nove de Julho. Era uma torre corporativa, projeto do Escritório Júlio Neves, em uso há dez anos. Baseados em nossa experiencia com a FGV, desenvolvemos os programas das duas escolas tratando com seus diretores e assessores. As características destes alunos e dos sistemas de ensino foram a base para podermos lançar uma ocupação que atendesse aos dois cursos. Os pavimentos tipos dispunham de um salão livre de pilares de 33 x 19 m, ideal para a nova organização das salas de aulas e dos atuais ambientes de estar/estudo nos pavimentos. Assim os andares de aula dispõem de salas flexíveis junto as janelas laterais e de um grande salão central para estudos e encontro dos alunos. Também para os ambientes das diretorias e dos pesquisadores puderam ser muito bem encaixados. A Biblioteca, que hoje é um grande salão de estudo e pesquisa, se aproveita das amplas janelas do salão. O último andar foi ocupado pelo auditório e um apoio de café integrado ao foyer e ao terraço. Pelas suas grandes dimensões o hall do térreo se ajustou bem a entrada dos alunos, e as áreas externas receberam áreas de lanche e café. No primeiro pavimento foi instalado o restaurante para todos, também usufruindo das janelas nas três fachadas.

especifidades

– Projeto de arquitetura da torre do Escritório Julio Neves, com padrão triple AAA, foi adaptado ao uso das Escolas de Economia e Direito da FGV

– Soluções de layout e ocupação atenderam as modernas demandas do uso conceituado em conjunto com a equipe da FGV

folhas de projetos analisadas

3125

etapas de projeto envolvidas

APEPEXLOPL

LD: Levantamento de dados
PN: Programa de necessidades
EV: Estudo de viabilidade
EP: Estudo preliminar
AP: Anteprojeto
PR: Pré-executivo
EX: Executivo
DT: Detalhamento
LO: Liberado para obra
PL: Projeto legal
AO: atendimento a obra
AB: As built
PB: projeto básico

disciplinas envolvidas

ficha técnica

acústica
akkerman alcoragi

ar-condicionado / elétrica / hidráulica / incêndio / sistemas eletrônicos
pqr-ma2

áudio e vídeo
sva

cozinha
roya

estrutura
kf projetos

fundações
consultrix

levantamento cadastral
ancec

orçamentos
bw engenharia

segurança patrimonial
studiolo