edifício platinum

aflalo/gasperini arquitetos
status do projeto
obra finalizada
localização
são paulo, sp
tipologia
corporativo
área construída
16898
escopo
COMCOODES

EV: Estudo de viabilidade
AUT: Autoria
DES: Desenvolvimento
COM: Compatibilização
COO: Coordenação

autoria
aflalo/gasperini arquitetos
incorporação
brasfanta
construção
tecnum construtora
conclusão do projeto
2006
conclusão da construção
2008

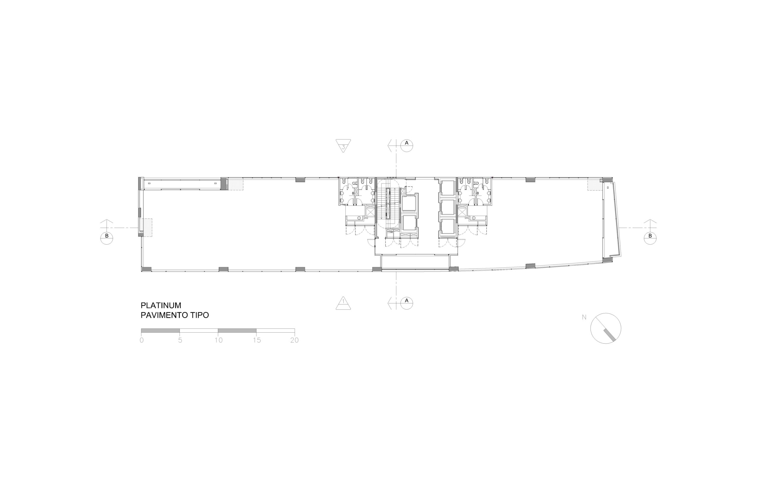
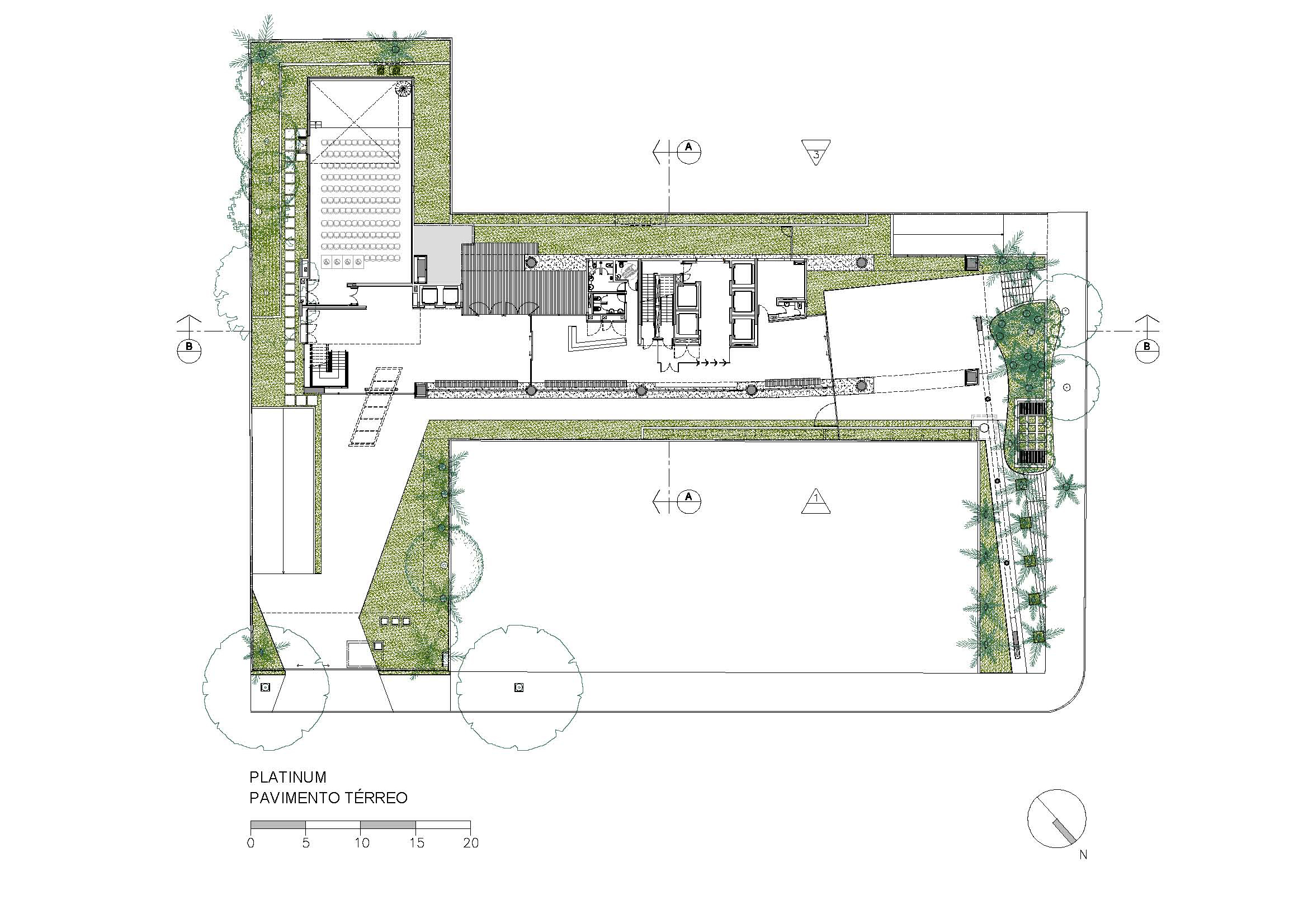
Depois de vários estudos de implantação que incorporavam várias lojas voltadas para a Alameda Santos, o incorporador não conseguiu convencer os proprietários a venderem seus lotes e a torre ficou presa a uma forma mais linear. Mesmo assim solução de projeto encontrada pelo Felipe Aflalo garante a presença do edifício na Alameda Santos. A fachada curva e envidraçada voltada para a Alameda Santos dá uma leitura muito boa do volume do prédio e sua modernidade. O pequeno lote da esquina que foi adquirido permitiu um acesso de pedestres também pela esquina. O projeto de arquitetura relocou as inúmeras arvores do terreno original, permitindo um manejo arbóreo bem-sucedido. O desenho do lobby do térreo trouxe novos elementos plásticos e se transformou num espaço de foyer para o pequeno teatro ali situado. Tivemos um desenvolvimento cuidadoso da arquitetura e de todos os projetos que coordenamos.

especifidades

– Solução de acesso de pedestres da esquina compondo com o desenho do térreo, caracterizando o prédio na Alameda Santos, apesar de o endereço ser outro

folhas de projetos analisadas

180

etapas de projeto envolvidas

APDTEPEXLOPLPR

LD: Levantamento de dados
PN: Programa de necessidades
EV: Estudo de viabilidade
EP: Estudo preliminar
AP: Anteprojeto
PR: Pré-executivo
EX: Executivo
DT: Detalhamento
LO: Liberado para obra
PL: Projeto legal
AO: atendimento a obra
AB: As built
PB: projeto básico

disciplinas envolvidas

ficha técnica

ar cond. / pressurização / vent./ exaust.
teknika projetos e consultoria

automação / dados e lógica / elétrica / hidráulica / prot. contra incêndio / seg. patrim. / sprinkler / telefone
soeng const. hidroelétrica

áudio/vídeo (consultor)
eletroequip

caixilharia
mário newton leme consultoria de caixilhos

comb. à incêndio
capitão miranda

elevador
empro engenharia de produção

estrutura
frança e associados

estrutura metálica
engebrat consultoria, engenharia e projetos

fachada pré – moldada
dgg

fundação
solonet

garagem
ico

impermeabilização
proassp

sondagem
engesolos

topografia e levantamento planialtimétrico cadastral
hs projetos e agrimensura
wgf consultoria e geotecnia