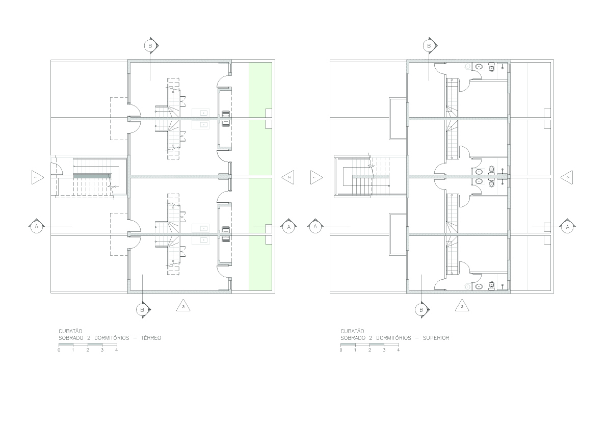
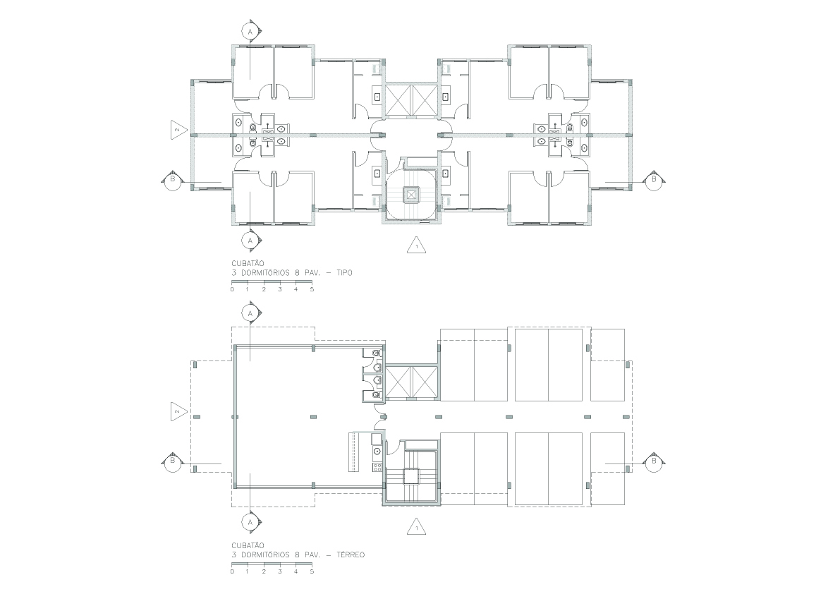
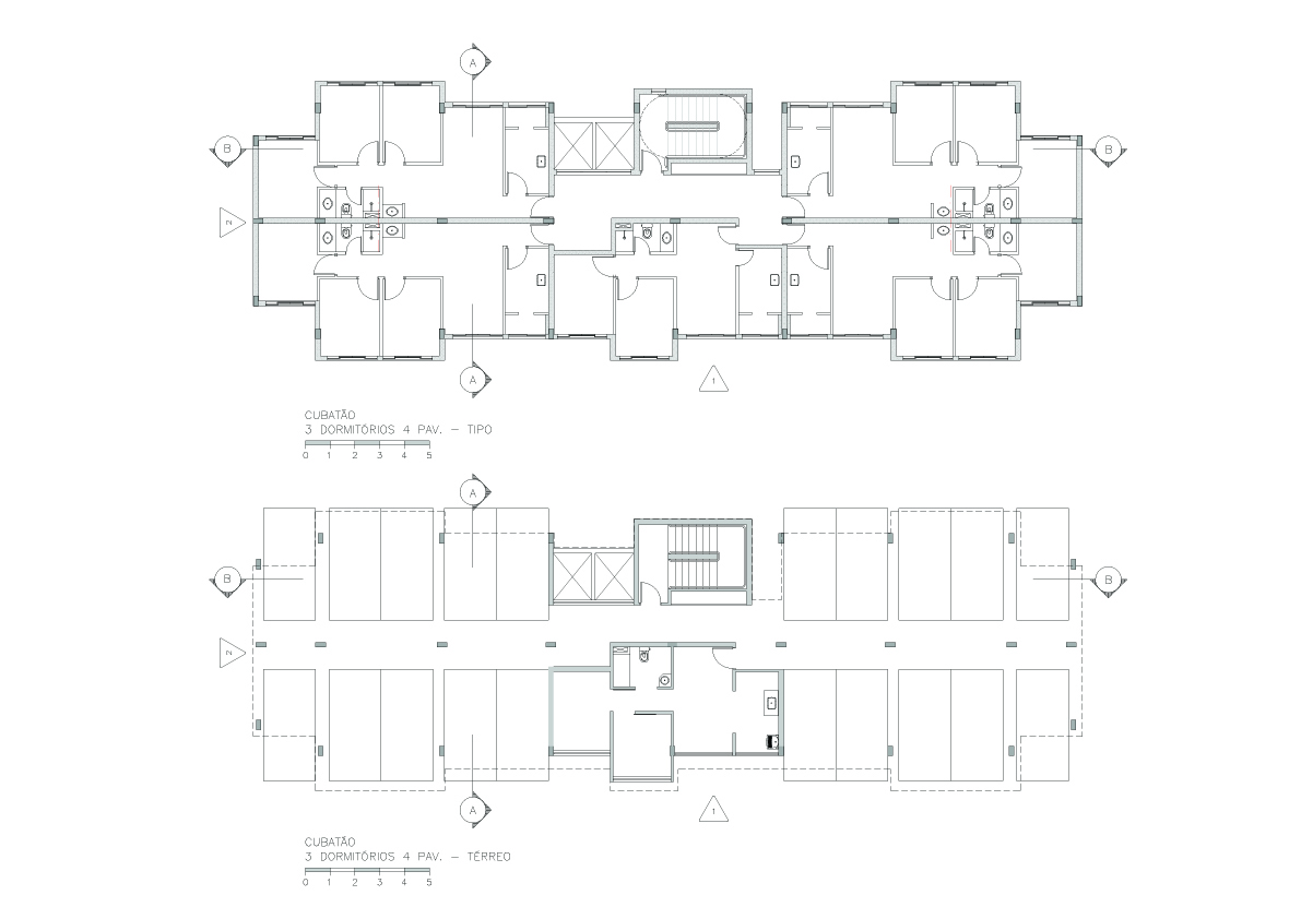
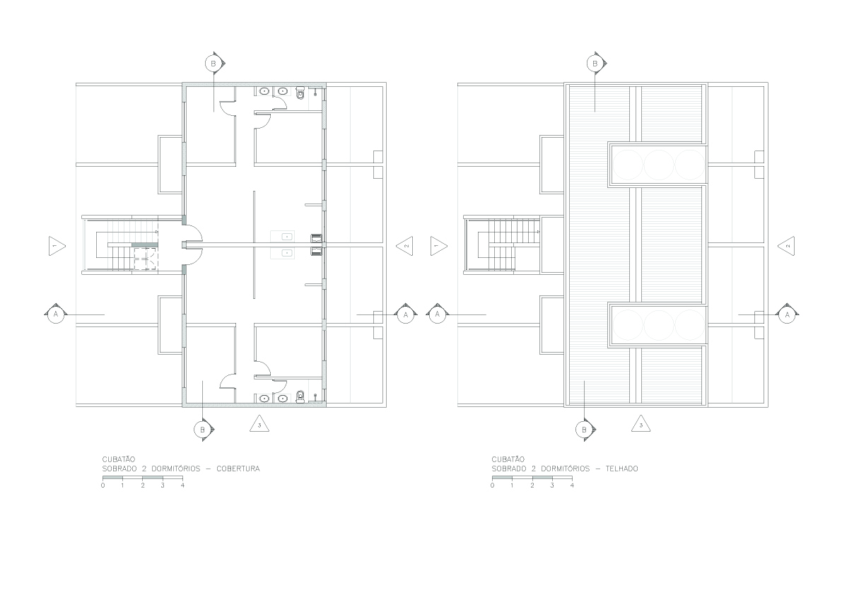
conjunto residencial rubens lara

levisky arquitetos
status do projeto
obra finalizada
localização
cubatão, sp
tipologia
residencial
área construída
180000
escopo
AUTDES

EV: Estudo de viabilidade
AUT: Autoria
DES: Desenvolvimento
COM: Compatibilização
COO: Coordenação

autoria
adriana levisky e purarquitetura
incorporação
cdhu
construção
cdhu
conclusão do projeto
2007
conclusão da construção
2010

especifidades

– Foi feito um plano urbano compondo ruas, praças, casas e edifícios residenciais

etapas de projeto envolvidas

APEPEV

LD: Levantamento de dados
PN: Programa de necessidades
EV: Estudo de viabilidade
EP: Estudo preliminar
AP: Anteprojeto
PR: Pré-executivo
EX: Executivo
DT: Detalhamento
LO: Liberado para obra
PL: Projeto legal
AO: atendimento a obra
AB: As built
PB: projeto básico

ficha técnica